Idealer Standort für Kanzleien, Praxen und Dienstleistungsunternehmen - Topfrequenzlage mit direkter Bahnhofsanbindung
€ 230.000
€ 2.190 / m²
3400 Klosterneuburg
-
nach Kaufvertrag
Beschreibung
Diese Bürofläche bietet eine seltene Gelegenheit, sich in einer der besten Lagen Klosterneuburgs zu positionieren. Die Kombination aus erstklassiger Verkehrsanbindung, hoher Frequenz und repräsentativem Umfeld macht dieses Objekt zu einer idealen Wahl für nachhaltigen unternehmerischen Erfolg. HIGHLIGHTS: -Top-Lage mit hoher Sichtbarkeit -Unmittelbare Nähe zum Bahnhof (Klosterneuburg-Weidling/S 40) -Sehr gute Verkehrsanbindung (öffentlich & individuell) -hervorragende Sicht- und Frequenzlage -Flexible Nutzungsmöglichkeiten (Büro / Praxis / Kanzlei) -Attraktives, wirtschaftsstarkes Einzugsgebiet RAUMAUFTEILUNG: vier Büroräume, Vorraum, WC, Teeküche, Abstellraum, Garderobe. Das Büro befindet sich im 1. Liftstock. AUSSTATTUNG: Lift, Kellerabteil Optional kann ein PKW-Stellplatz um zusätzlich € 15.000,- erworben werden. Ein ca. 17 m² großer...
Diese Bürofläche bietet eine seltene Gelegenheit, sich in einer der besten Lagen Klosterneuburgs zu positionieren. Die Kombination aus erstklassiger Verkehrsanbindung, hoher Frequenz und repräsentativem Umfeld macht dieses Objekt zu einer idealen Wahl für nachhaltigen unternehmerischen Erfolg.
HIGHLIGHTS:
-Top-Lage mit hoher Sichtbarkeit
-Unmittelbare Nähe zum Bahnhof (Klosterneuburg-Weidling/S 40)
-Sehr gute Verkehrsanbindung (öffentlich & individuell)
-hervorragende Sicht- und Frequenzlage
-Flexible Nutzungsmöglichkeiten (Büro / Praxis / Kanzlei)
-Attraktives, wirtschaftsstarkes Einzugsgebiet
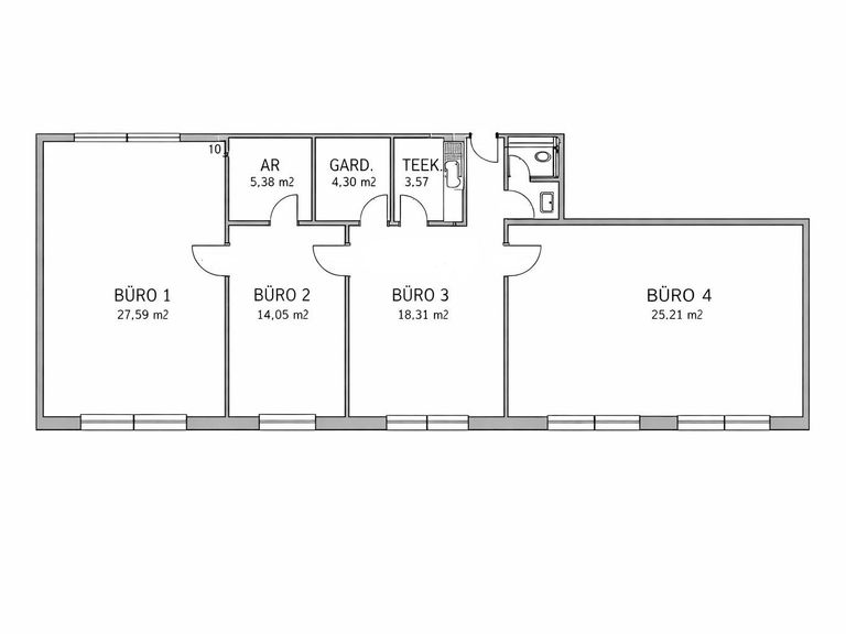
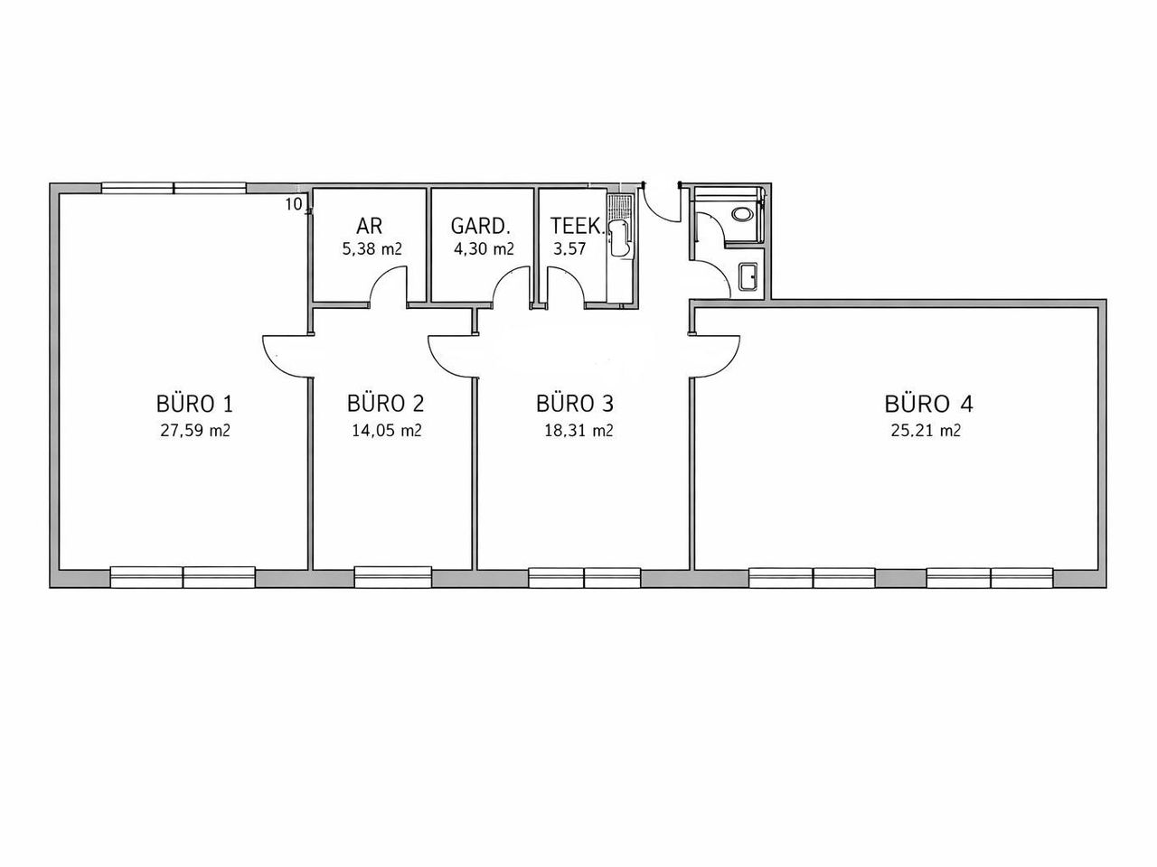
RAUMAUFTEILUNG: vier Büroräume, Vorraum, WC, Teeküche, Abstellraum, Garderobe. Das Büro befindet sich im 1. Liftstock.
AUSSTATTUNG: Lift, Kellerabteil
Optional kann ein PKW-Stellplatz um zusätzlich € 15.000,- erworben werden.
Ein ca. 17 m² großer Archivraum im Keller kann zusätzlich angemietet werden.
ENERGIEKENNZAHL: HWB 39,8
LAGE & ÖFFENTLICHE ANBINDUNG: Die Bürofläche befindet sich in der Wiener Straße 106–108 in 3400 Klosterneuburg. Die unmittelbare Bahnhofsnähe ermöglicht eine erstklassige öffentliche Erreichbarkeit mit direkter Verbindung nach Wien, während die Lage an der Wiener Straße (B14) gleichzeitig eine optimale Sichtbarkeit und Präsenz garantiert.
BETRIEBSKOSTEN: brutto inkl. Rücklage, Lift- und Heizkosten € 551,96
PREIS: € 230.000,-
Für weitere Informationen und Besichtigungen steht Ihnen Frau Mag. Claudia Winglhofer gerne unter 0664/949 39 13 zur Verfügung.
Wünschen Sie die Zusendung detaillierter Unterlagen zu dieser Immobilie benötigen wir bitte Ihre vollständigen Kontaktdaten. Ihre Daten werden nicht an Dritte weitergegeben und nach den Bestimmungen des Datenschutzgesetzes streng vertraulich behandelt.
Finden Sie uns unter: www.immobilien-moertl.at, https://www.facebook.com/ImmobilienMoertl/ und https://www.instagram.com/immobilien.moertl/
IMMOBILIEN MÖRTL - Wir verkaufen Ihre Immobilie in Wien und NÖ!
https://www.immobilien-moertl.at/1182743/Immobilienverkauf
Fragen Sie unverbindlich Ihr Finanzierungsmodell an: https://www.immobilien-moertl.at/finanzierung
HIGHLIGHTS:
-Top-Lage mit hoher Sichtbarkeit
-Unmittelbare Nähe zum Bahnhof (Klosterneuburg-Weidling/S 40)
-Sehr gute Verkehrsanbindung (öffentlich & individuell)
-hervorragende Sicht- und Frequenzlage
-Flexible Nutzungsmöglichkeiten (Büro / Praxis / Kanzlei)
-Attraktives, wirtschaftsstarkes Einzugsgebiet
RAUMAUFTEILUNG: vier Büroräume, Vorraum, WC, Teeküche, Abstellraum, Garderobe. Das Büro befindet sich im 1. Liftstock.
AUSSTATTUNG: Lift, Kellerabteil
Optional kann ein PKW-Stellplatz um zusätzlich € 15.000,- erworben werden.
Ein ca. 17 m² großer Archivraum im Keller kann zusätzlich angemietet werden.
ENERGIEKENNZAHL: HWB 39,8
LAGE & ÖFFENTLICHE ANBINDUNG: Die Bürofläche befindet sich in der Wiener Straße 106–108 in 3400 Klosterneuburg. Die unmittelbare Bahnhofsnähe ermöglicht eine erstklassige öffentliche Erreichbarkeit mit direkter Verbindung nach Wien, während die Lage an der Wiener Straße (B14) gleichzeitig eine optimale Sichtbarkeit und Präsenz garantiert.
BETRIEBSKOSTEN: brutto inkl. Rücklage, Lift- und Heizkosten € 551,96
PREIS: € 230.000,-
Für weitere Informationen und Besichtigungen steht Ihnen Frau Mag. Claudia Winglhofer gerne unter 0664/949 39 13 zur Verfügung.
Wünschen Sie die Zusendung detaillierter Unterlagen zu dieser Immobilie benötigen wir bitte Ihre vollständigen Kontaktdaten. Ihre Daten werden nicht an Dritte weitergegeben und nach den Bestimmungen des Datenschutzgesetzes streng vertraulich behandelt.
Finden Sie uns unter: www.immobilien-moertl.at, https://www.facebook.com/ImmobilienMoertl/ und https://www.instagram.com/immobilien.moertl/
IMMOBILIEN MÖRTL - Wir verkaufen Ihre Immobilie in Wien und NÖ!
https://www.immobilien-moertl.at/1182743/Immobilienverkauf
Fragen Sie unverbindlich Ihr Finanzierungsmodell an: https://www.immobilien-moertl.at/finanzierung
| Angaben gemäß gesetzlichem Erfordernis: | |||
| Heizwärmebedarf: | 84.0 kWh/(m²a) | ||
| Klasse Heizwärmebedarf: | C | ||
| Faktor Gesamtenergieeffizienz: | 1.37 | ||
Objektdaten
Ausstattung
- Zentralheizung
- Befeuerung mit Gas
- Personen Fahrstuhl
- Zentralheizung mit Gas
Zustand
- Zustand
- GEPFLEGT
- Baujahr
- ca. 1991
Flächen
- Anzahl der Zimmer
- 4
- Anzahl der sep. WCs
- 1
- Nutzfläche
- 105m²
- Bürofläche
- 105m²
Kosten
- Kaufpreis
- € 230.000,00
- Nebenkosten
- € 551,96
- Betriebskosten Brutto
- € 184,99
- Heizkosten Brutto
- € 75,50
- Sonstige Kosten Brutto
- € 153,47
Verwaltung
- Verfügbar ab
- nach Kaufvertrag
Büros zum Kaufen im Umkreis von Klosterneuburg
- Bezirk Gemeindebezirk Döbling
- Bezirk Gemeindebezirk Döbling
- Bezirk Gemeindebezirk Döbling
- Bezirk Gemeindebezirk Floridsdorf
- Bezirk Gemeindebezirk Floridsdorf
- Bezirk Gemeindebezirk Floridsdorf
- Bezirk Gemeindebezirk Währing
- Bezirk Gemeindebezirk Währing
- Bezirk Gemeindebezirk Währing
- Bezirk Gemeindebezirk Hernals
Büros zum Kaufen im Umkreis von Klosterneuburg
Büros zum Kaufen in Österreich
Andere Besucher suchen nach...
- Grundstücke kaufen in 3400 Weidlingbach
- Wohnungen kaufen in 4663 Laakirchen
- Häuser in 7471 Rechnitz
- Wohnungen in 2410 Hainburg an der Donau
- Häuser kaufen in 2432 Schwadorf
- Wohnungen kaufen in 3002 Purkersdorf
- Häuser in 3150 Wilhelmsburg
- Wohnungen kaufen in 3470 Engelmannsbrunn
- Grundstücke kaufen im Bezirk Mattersburg
- Grundstücke kaufen im Bezirk Gmunden