Attraktive Ordination oder Bürofläche im Herzen des 8. Bezirks – Toplage mit vielseitigem Nutzungspotenzial
Beschreibung
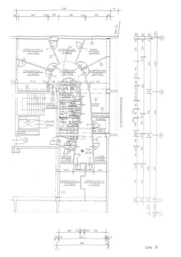
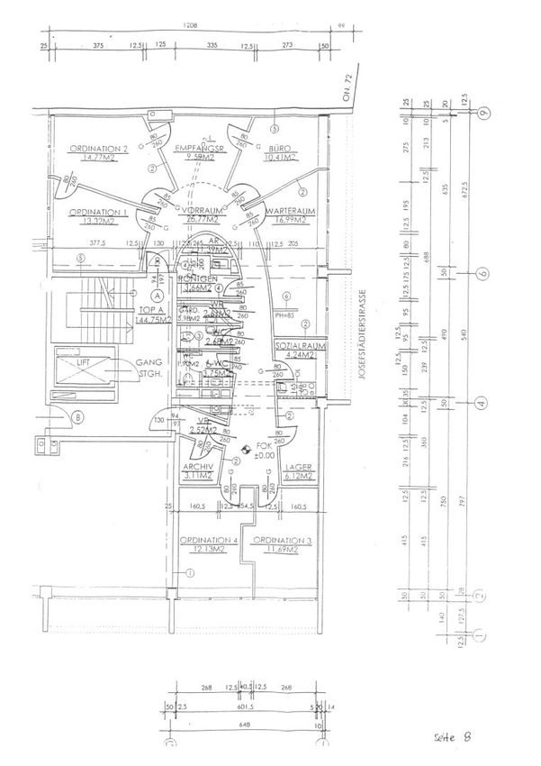
Diese äußerst gepflegte und vielseitig nutzbare Immobilie befindet sich in bester Lage des 8. Wiener Gemeindebezirks – nur einen Steinwurf vom beliebten Café Hummel entfernt. Derzeit wird die Fläche erfolgreich als Zahnarztpraxis betrieben und steht nun aufgrund einer bevorstehenden Pensionierung zum Verkauf.
Ob zur sofortigen Weiterführung als Ordination, als lukratives Anlageobjekt mit Mietpotenzial oder zur Nutzung als modernes Büro – hier eröffnen sich zahlreiche Möglichkeiten.
Highlights der Immobilie:
-
Gewerbliche Widmung – ideal für Ordination, Büro oder Praxisbetrieb
-
Beste Infrastruktur – Ärzte, Apotheken, Kliniken, Schulen sowie Einkaufsmöglichkeiten in direkter Umgebung
-
Exzellente Verkehrsanbindung – Straßenbahn direkt...
Diese äußerst gepflegte und vielseitig nutzbare Immobilie befindet sich in bester Lage des 8. Wiener Gemeindebezirks – nur einen Steinwurf vom beliebten Café Hummel entfernt. Derzeit wird die Fläche erfolgreich als Zahnarztpraxis betrieben und steht nun aufgrund einer bevorstehenden Pensionierung zum Verkauf.
Ob zur sofortigen Weiterführung als Ordination, als lukratives Anlageobjekt mit Mietpotenzial oder zur Nutzung als modernes Büro – hier eröffnen sich zahlreiche Möglichkeiten.
Highlights der Immobilie:
Gewerbliche Widmung – ideal für Ordination, Büro oder Praxisbetrieb
Beste Infrastruktur – Ärzte, Apotheken, Kliniken, Schulen sowie Einkaufsmöglichkeiten in direkter Umgebung
Exzellente Verkehrsanbindung – Straßenbahn direkt vor der Tür, die U6 nur wenige Gehminuten entfernt
Zentrale Lage – rasche Erreichbarkeit der Wiener Innenstadt
Sehr gepflegter Zustand – sofort nutzbar ohne Sanierungsaufwand
Die Immobilie bietet somit sowohl für Selbstnutzer als auch für Investoren ein hohes Maß an Flexibilität und Zukunftspotenzial. Nutzen Sie die Chance, eine etablierte Adresse in Toplage zu erwerben!
Wir weisen darauf hin, dass zwischen dem Vermittler und dem zu vermittelnden Dritten ein familiäres oder wirtschaftliches Naheverhältnis besteht.
Der Vermittler ist als Doppelmakler tätig.
Infrastruktur / Entfernungen
Gesundheit
Arzt <500m
Apotheke <500m
Klinik <500m
Krankenhaus <1.000m
Kinder & Schulen
Schule <500m
Kindergarten <500m
Universität <1.000m
Höhere Schule <500m
Nahversorgung
Supermarkt <500m
Bäckerei <500m
Einkaufszentrum <1.000m
Sonstige
Geldautomat <500m
Bank <500m
Post <500m
Polizei <500m
Verkehr
Bus <500m
U-Bahn <500m
Straßenbahn <500m
Bahnhof <500m
Autobahnanschluss <4.000m
Angaben Entfernung Luftlinie / Quelle: OpenStreetMap
Objektdaten
Ausstattung
- Klimatisiert
- Personen Fahrstuhl
Zustand
- Zustand
- GEPFLEGT
- Baujahr
- 1977
- Alter
- NEUBAU
Flächen
- Anzahl der Zimmer
- 7
- Anzahl der sep. WCs
- 2
- Nutzfläche
- 145m²
Kosten
- Kaufpreis Brutto
- € 699.000,00
- Betriebskosten
- € 284,30
- Heizkosten
- € 167,17
- Sonstige Kosten
- € 289,05
Büros zum Kaufen in Österreich
- Bezirk Gemeindebezirk Alsergrund
- Bezirk Gemeindebezirk Alsergrund
- Bezirk Gemeindebezirk Alsergrund
- Bezirk Gemeindebezirk Wieden
- Bezirk Gemeindebezirk Wieden
- Bezirk Gemeindebezirk Wieden
- Bezirk Gemeindebezirk Hernals
- Bezirk Gemeindebezirk Hernals
- Bezirk Gemeindebezirk Hernals
- Bezirk Gemeindebezirk Währing
Büros zum Kaufen in Österreich
Büros zum Kaufen in Österreich
Andere Besucher suchen nach...
- Grundstücke kaufen in 3400 Weidlingbach
- Wohnungen kaufen in 4663 Laakirchen
- Häuser in 7471 Rechnitz
- Wohnungen in 2410 Hainburg an der Donau
- Häuser kaufen in 2432 Schwadorf
- Wohnungen kaufen in 3002 Purkersdorf
- Häuser in 3150 Wilhelmsburg
- Wohnungen kaufen in 3470 Engelmannsbrunn
- Grundstücke kaufen im Bezirk Mattersburg
- Grundstücke kaufen im Bezirk Gmunden