Praxis / Ordination in absoluter Bestlage, Erstbezug nach Kernsanierung, Parterre
-
sofort
Beschreibung
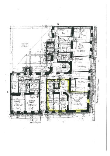
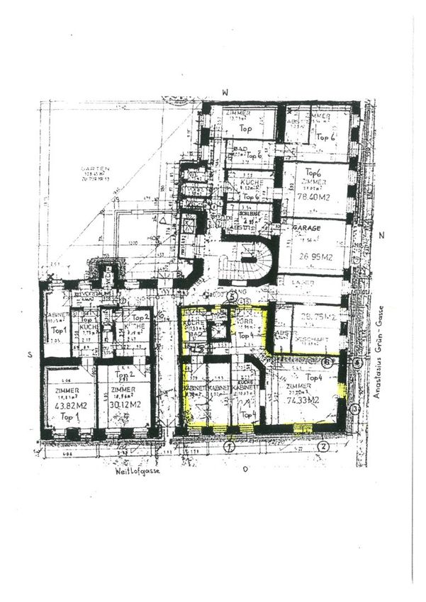
Diese helle, ruhig gelegene und ostseitig ausgerichtete, ca. 75 m² große Wohnung befindet sich im Erdgeschoß eines vollständig sanierten Gründerzeithauses in bester Lage des 18. Bezirkes und besticht durch die Raumhöhe von in etwa 3,40 m, die für ein besonderes Wohlbefinden sorgt.
Die Räume sind zentral begehbar, das große Schlafzimmer kann ohne großen Aufwand (siehe Plan) in 2 Zimmer aufgeteilt werden und eignet sich optimal für eine Ordination oder Therapieräumlichkeiten.
Die große Küche bietet genügend Platz für einen Essbereich, von hier aus gelangt man über einen offenen Durchgang über 2 Stiegen in den großzügigen Hauptraum. Dieser verfügt zudem über einen...
Diese helle, ruhig gelegene und ostseitig ausgerichtete, ca. 75 m² große Wohnung befindet sich im Erdgeschoß eines vollständig sanierten Gründerzeithauses in bester Lage des 18. Bezirkes und besticht durch die Raumhöhe von in etwa 3,40 m, die für ein besonderes Wohlbefinden sorgt.
Die Räume sind zentral begehbar, das große Schlafzimmer kann ohne großen Aufwand (siehe Plan) in 2 Zimmer aufgeteilt werden und eignet sich optimal für eine Ordination oder Therapieräumlichkeiten.
Die große Küche bietet genügend Platz für einen Essbereich, von hier aus gelangt man über einen offenen Durchgang über 2 Stiegen in den großzügigen Hauptraum. Dieser verfügt zudem über einen Zugang vom Vorzimmer aus. Ein weiterer Raum mit angrenzendem Bad ist vom Vorzimmer und der Küche aus begehbar, vom Badezimmer gelangt man ins getrennte WC. Somit könnte man das geräumige Zimmer in 2 getrennte Räume unterteilen.
Die Wohnung verfügt über ausreichend Stauraum (großzügiges Vorzimmer) sowie ein Kellerabteil.
Die Wohnung wurde im Jahr 2023 komplett saniert und mit hochwertigem Weitzer-Parkett ausgestattet. Die Wohnung ist technisch in einem sehr guten Zustand und weist niedrige Betriebskosten auf. Das Badezimmer und WC wurde lediglich teilweise saniert (neue Armaturen) ist aber durchaus in einem guten und sofort nutzbaren Zustand.
Lage:
Sie erreichen die U-Bahn Station Nußdorfer Straße lediglich in 7 Gehminuten, eine Bushaltestelle befindet sich in unmittelbarer Nähe zum Objekt. Mit dem PKW erreichen Sie in 1 Minute den Gürtel, somit ist die Verkehrsanbindung sowohl für den öffentlichen als auch für den Individualverkehr optimal!
Sämtliche Geschäfte des täglichen Bedarfs sind fußläufig erreichbar.
Die unmittelbare Nähe zum schönen Währinger Park und auch zum Türkenschanzpark bietet Erholung und ein großes Freizeitangebot direkt vor der Haustüre!
Der Vermittler ist als Doppelmakler tätig.
Objektdaten
Ausstattung
- Räume veränderbar
- Kabel/SAT-TV
- Barrierefrei
- Seniorengerecht
- Bad mit Badewanne
- Fliesenboden
- Parkettboden
- Zentralheizung
- Befeuerung mit Gas
- Massiv Bauweise
Zustand
- Zustand
- NEUWERTIG
- Baujahr
- 1900
- Alter
- ALTBAU
- HWB
- 150 kWh/m² pro Jahr
- Klasse HWB
- D
Flächen
- Anzahl der Zimmer
- 2
- Anzahl der Badezimmer
- 1
- Anzahl der sep. WCs
- 1
- Wohnfläche
- 74m²
- Nutzfläche
- 3m²
Kosten
- Kaufpreis Brutto
- € 359.000,00
- Betriebskosten
- € 139,19
- Heizkosten
- € 80,00
- Sonstige Kosten
- € 66,90
Verwaltung
- Verfügbar ab
- sofort
Büros zum Kaufen in Österreich
- Bezirk Gemeindebezirk Währing
- Bezirk Gemeindebezirk Währing
- Bezirk Gemeindebezirk Währing
- Bezirk Gemeindebezirk Hernals
- Bezirk Gemeindebezirk Hernals
- Bezirk Gemeindebezirk Hernals
- Bezirk Gemeindebezirk Döbling
- Bezirk Gemeindebezirk Döbling
- Bezirk Gemeindebezirk Döbling
- Bezirk Gemeindebezirk Ottakring
Büros zum Kaufen in Österreich
Büros zum Kaufen in Österreich
Andere Besucher suchen nach...
- Grundstücke kaufen in 3400 Weidlingbach
- Wohnungen kaufen in 4663 Laakirchen
- Häuser in 7471 Rechnitz
- Wohnungen in 2410 Hainburg an der Donau
- Häuser kaufen in 2432 Schwadorf
- Wohnungen kaufen in 3002 Purkersdorf
- Häuser in 3150 Wilhelmsburg
- Wohnungen kaufen in 3470 Engelmannsbrunn
- Grundstücke kaufen im Bezirk Mattersburg
- Grundstücke kaufen im Bezirk Gmunden