Räumlichkeiten mit Potential zum imposanten Büro - Ca. 120m2 im 1. Stock
€ 700 / Monat
€ 6 / m²
2410 Hainburg an der Donau
Beschreibung
Zur Vermietung gelangt eine Bürofläche mit ca. 120 m² Nutzfläche im 1. Obergeschoss eines historischen Bürgerhauses (Baujahr vor 1900) im Zentrum von Hainburg. Die Immobilie überzeugt durch ihre großzügigen Altbauräume mit über 3 Metern Raumhöhe und klassischem Parkettboden. Ideal geeignet für Rechtsanwälte, Steuerberater, Buchhalter oder ähnliche Dienstleistungen. Die Räumlichkeiten sind renovierungsbedürftig, bietet damit aber viel Gestaltungsspielraum für eine individuelle Nutzung. Besonderheiten: *Historisches Bürgerhaus mit Altbau-Charme. *Großzügige Raumhöhen über 3 m. *Geeignet für Dienstleister (Anwaltskanzlei, Steuerberatung, Buchhaltung, etc.). *Renovierungsbedürftig – viel Gestaltungspotenzial. *Aktuell leerstehend. Raumaufteilung: *Raum 1 (Vorzimmer) - Ca. 25 m2. *Raum 2 (Fenster Richtung Hauptplatz) - Ca. 32m2. *Raum...
Zur Vermietung gelangt eine Bürofläche mit ca. 120 m² Nutzfläche im 1. Obergeschoss eines historischen Bürgerhauses (Baujahr vor 1900) im Zentrum von Hainburg.
Die Immobilie überzeugt durch ihre großzügigen Altbauräume mit über 3 Metern Raumhöhe und klassischem Parkettboden.
Ideal geeignet für Rechtsanwälte, Steuerberater, Buchhalter oder ähnliche Dienstleistungen. Die Räumlichkeiten sind renovierungsbedürftig, bietet damit aber viel Gestaltungsspielraum für eine individuelle Nutzung.
Besonderheiten:
*Historisches Bürgerhaus mit Altbau-Charme.
*Großzügige Raumhöhen über 3 m.
*Geeignet für Dienstleister (Anwaltskanzlei, Steuerberatung, Buchhaltung, etc.).
*Renovierungsbedürftig – viel Gestaltungspotenzial.
*Aktuell leerstehend.
Raumaufteilung:
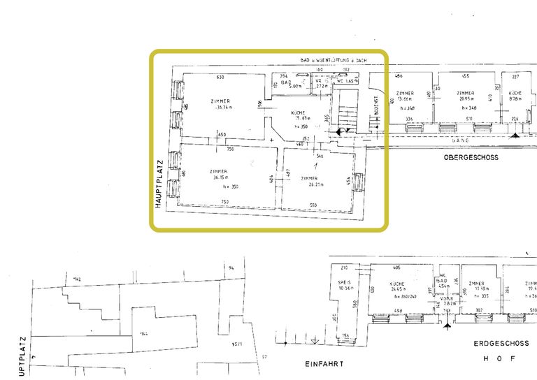
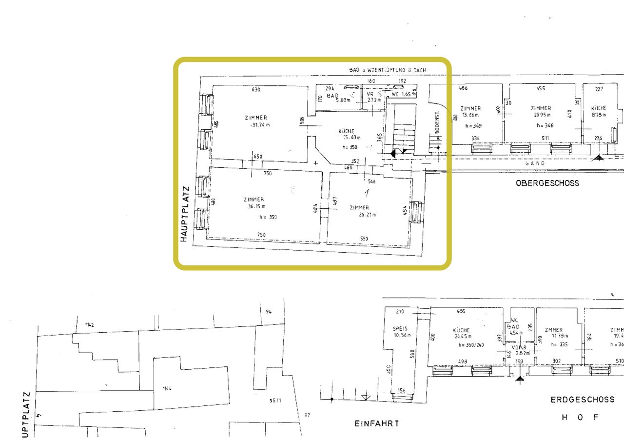
*Raum 1 (Vorzimmer) - Ca. 25 m2.
*Raum 2 (Fenster Richtung Hauptplatz) - Ca. 32m2.
*Raum 3 (Fenster Richtung Hauptplatz) - Ca. 36m2.
*Raum 4 (Fenster Richtung Innenhof) - Ca. 26m2.
Miete: VB € 700,-
Umfasst: Räumlichkeiten, unbewegliche Einrichtungsgegenstände, exkl. aller Betriebskosten (Kanalgebühren, Grundsteuer, Wasser, Abfallentsorgung, Strom, etc.).
Möbel/ Geräte können nach Bedarf dazugekauft/ gemietet werden!
Die Höhe der Miete und Kaution richtet sich nach der gewünschten Nutzung und Mietdauer.
Langfristige Mieter mit nachhaltigem Nutzungskonzept werden bevorzugt.
Kaution: 3 Bruttomonatsmieten.
Lagebeschreibung:
Die Lage kann man nur als hervorragend bezeichnen - mitten im Zentrum und doch ruhig gelegen! Direkt in der Hainburger Innenstadt am Hauptplatz. Durch die zentrale Lage ist eine gute Erreichbarkeit sowohl für Kunden als auch für Lieferanten gegeben. Nahversorgung, Gastronomie und Dienstleister befinden sich in unmittelbarer Umgebung.Vor allem die Verkehrsanbindung nach Wien/ Schwechat und die Slowakei (Bus und Schnellbahn) machen diese Stadt besonders interessant.
Nähere Informationen finden Sie unterwww.hainburg-donau.gv.at.
Die Bezirkshauptstadt Bruck an der Leitha ist ca. 10 km entfernt, Wien ist in 30 min per Auto oder auch per Zug erreichbar. Bratislava ist 20 km entfernt.
Rechtliche Hinweise!:
In Entsprechung des FAGG (Fern- und Auswärtsgeschäfte-Gesetz) und des VRUG (Verbraucherrechte-Richtlinie-Umsetzungsgesetz), ersuchen um Verständnis, dass wir von Ihnen VOR der Zusendung des Exposés die Bestätigung des sofortigen Tätigwerdens, sowie über die Aufklärung des Rücktrittsrechtes benötigen.
Darüber hinaus ist es uns leider nur mehr möglich Termine erst nach Erhalt einer schriftlichen Anfrage mit vollständigen Kontaktangaben (Name, Adresse, Telefon, Email) zu vereinbaren.
Dies gilt auch für die Weitergabe relevanter Informationen zu den Objekten.
Wir können kraft bestehenden Geschäftsgebrauchs als Doppelmakler tätig sein.
Wir ersuchen um Verständnis und freuen uns Sie demnächst als Kunde begrüßen zu dürfen.
Nur auf remax.at finden Sie neue RE/MAX Immobilien früher und vollständig, und mit der RE/MAX App sofort am Handy!
Die Immobilie überzeugt durch ihre großzügigen Altbauräume mit über 3 Metern Raumhöhe und klassischem Parkettboden.
Ideal geeignet für Rechtsanwälte, Steuerberater, Buchhalter oder ähnliche Dienstleistungen. Die Räumlichkeiten sind renovierungsbedürftig, bietet damit aber viel Gestaltungsspielraum für eine individuelle Nutzung.
Besonderheiten:
*Historisches Bürgerhaus mit Altbau-Charme.
*Großzügige Raumhöhen über 3 m.
*Geeignet für Dienstleister (Anwaltskanzlei, Steuerberatung, Buchhaltung, etc.).
*Renovierungsbedürftig – viel Gestaltungspotenzial.
*Aktuell leerstehend.
Raumaufteilung:
*Raum 1 (Vorzimmer) - Ca. 25 m2.
*Raum 2 (Fenster Richtung Hauptplatz) - Ca. 32m2.
*Raum 3 (Fenster Richtung Hauptplatz) - Ca. 36m2.
*Raum 4 (Fenster Richtung Innenhof) - Ca. 26m2.
Miete: VB € 700,-
Umfasst: Räumlichkeiten, unbewegliche Einrichtungsgegenstände, exkl. aller Betriebskosten (Kanalgebühren, Grundsteuer, Wasser, Abfallentsorgung, Strom, etc.).
Möbel/ Geräte können nach Bedarf dazugekauft/ gemietet werden!
Die Höhe der Miete und Kaution richtet sich nach der gewünschten Nutzung und Mietdauer.
Langfristige Mieter mit nachhaltigem Nutzungskonzept werden bevorzugt.
Kaution: 3 Bruttomonatsmieten.
Lagebeschreibung:
Die Lage kann man nur als hervorragend bezeichnen - mitten im Zentrum und doch ruhig gelegen! Direkt in der Hainburger Innenstadt am Hauptplatz. Durch die zentrale Lage ist eine gute Erreichbarkeit sowohl für Kunden als auch für Lieferanten gegeben. Nahversorgung, Gastronomie und Dienstleister befinden sich in unmittelbarer Umgebung.Vor allem die Verkehrsanbindung nach Wien/ Schwechat und die Slowakei (Bus und Schnellbahn) machen diese Stadt besonders interessant.
Nähere Informationen finden Sie unterwww.hainburg-donau.gv.at.
Die Bezirkshauptstadt Bruck an der Leitha ist ca. 10 km entfernt, Wien ist in 30 min per Auto oder auch per Zug erreichbar. Bratislava ist 20 km entfernt.
Rechtliche Hinweise!:
In Entsprechung des FAGG (Fern- und Auswärtsgeschäfte-Gesetz) und des VRUG (Verbraucherrechte-Richtlinie-Umsetzungsgesetz), ersuchen um Verständnis, dass wir von Ihnen VOR der Zusendung des Exposés die Bestätigung des sofortigen Tätigwerdens, sowie über die Aufklärung des Rücktrittsrechtes benötigen.
Darüber hinaus ist es uns leider nur mehr möglich Termine erst nach Erhalt einer schriftlichen Anfrage mit vollständigen Kontaktangaben (Name, Adresse, Telefon, Email) zu vereinbaren.
Dies gilt auch für die Weitergabe relevanter Informationen zu den Objekten.
Wir können kraft bestehenden Geschäftsgebrauchs als Doppelmakler tätig sein.
Wir ersuchen um Verständnis und freuen uns Sie demnächst als Kunde begrüßen zu dürfen.
Nur auf remax.at finden Sie neue RE/MAX Immobilien früher und vollständig, und mit der RE/MAX App sofort am Handy!
Objektdaten
Ausstattung
- Parkettboden
- Bus
- Eisenbahn
- Stadtzentrum
Zustand
- Baujahr
- ca. 1900
- Alter
- ALTBAU
Flächen
- Anzahl der Zimmer
- 4
- Anzahl der sep. WCs
- 1
- Nutzfläche
- 119m²
- Bürofläche
- 119m²
Kosten
- Kaltmiete
- € 700,00
- Kaution
- € 2.100,00
Verwaltung
- Verfügbar ab
- Nach Vereinbarung
Büros zum Mieten in Österreich
Büros zum Mieten in Österreich
Andere Besucher suchen nach...
- Immobilien kaufen in 2601 Sollenau
- Immobilien in 4951 Polling im Innkreis, Oberösterreich
- Immobilien in 4742 Pram, Oberösterreich kaufen oder mieten
- Häuser kaufen in 2340 Mödling, Niederösterreich
- Häuser kaufen in 9421 Gemmersdorf, Kärnten
- Wohnungen / Eigentumswohnungen kaufen in 9431 St. Stefan, Kärnten
- Häuser kaufen in Bruck an der Leitha, Niederösterreich
- Immobilien mieten in Krems an der Donau, Niederösterreich
- Häuser zum Kaufen im Bezirk St. Pölten Land, Niederösterreich
- Büro / Praxen mieten in Rohrbach, Oberösterreich