Shared Office, Kanzlei oder Firmenzentrale – hier ist alles möglich
Beschreibung
Objektbeschreibung – moderner Unternehmensstandort
Zur Vermietung gelangt eine außergewöhnlich großzügige und flexibel nutzbare Büro- und Geschäftsfläche in repräsentativer Lage von Bruck an der Mur. Das Objekt befindet sich im ehemaligen Finanzamt, eingebettet im Gebäudekomplex des Gerichts bzw. der Finanzverwaltung, und verbindet damit Seriosität und Beständigkeit mit den Anforderungen moderner Arbeitswelten.
Die Immobilie eignet sich ideal für zeitgemäße Unternehmensstrukturen, in denen klassische Büroarbeit, Kundenkontakt und flexible Nutzungskonzepte sinnvoll miteinander kombiniert werden. Die vorhandene Raumaufteilung ermöglicht sowohl klare Kanzlei- oder Verwaltungsstrukturen als auch offene, moderne Arbeitsmodelle wie Shared Offices oder hybride Büroformen.
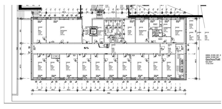
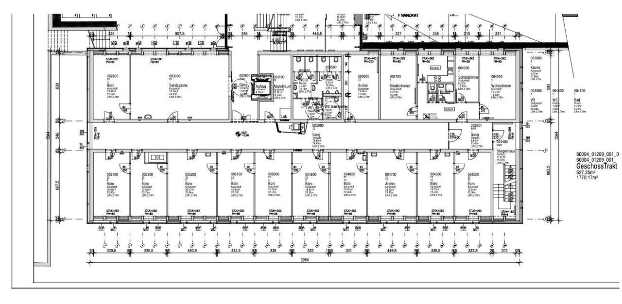
Büro- und Geschäftsfläche – ca. 417 m²
Die Einheit verfügt...
Objektbeschreibung – moderner Unternehmensstandort
Zur Vermietung gelangt eine außergewöhnlich großzügige und flexibel nutzbare Büro- und Geschäftsfläche in repräsentativer Lage von Bruck an der Mur. Das Objekt befindet sich im ehemaligen Finanzamt, eingebettet im Gebäudekomplex des Gerichts bzw. der Finanzverwaltung, und verbindet damit Seriosität und Beständigkeit mit den Anforderungen moderner Arbeitswelten.
Die Immobilie eignet sich ideal für zeitgemäße Unternehmensstrukturen, in denen klassische Büroarbeit, Kundenkontakt und flexible Nutzungskonzepte sinnvoll miteinander kombiniert werden. Die vorhandene Raumaufteilung ermöglicht sowohl klare Kanzlei- oder Verwaltungsstrukturen als auch offene, moderne Arbeitsmodelle wie Shared Offices oder hybride Büroformen.
Büro- und Geschäftsfläche – ca. 417 m²
Die Einheit verfügt über 11 separat begehbare Büroräume, die sich optimal für Einzelbüros, Abteilungen, Projektteams oder vermietbare Office-Einheiten eignen. Ergänzt wird das Raumangebot durch einen Lager- bzw. Druckerraum, der eine effiziente Organisation des Arbeitsalltags unterstützt.
Besonderes Highlight ist die großzügige Service- und Empfangszone, die als funktionales und kommunikatives Zentrum der Fläche konzipiert werden kann. Diese Zone bietet ideale Voraussetzungen für:
einen modernen Empfangs- und Repräsentationsbereich
eine zentrale Anlaufstelle für Kunden, Klienten oder Mandanten
Warte- und Begegnungszonen
Kaffeebar oder Teeküche als Treffpunkt für Mitarbeiter
informelle Besprechungs- oder Austauschbereiche
Gerade für Shared-Office- oder Co-Working-Konzepte bildet diese Fläche das Herzstück eines modernen Arbeitsumfeldes.
Der barrierearme Zugang über einen Lift sorgt für komfortable Erreichbarkeit und unterstreicht den professionellen Charakter des Standorts.
Hausmeister- / Dienstwohnung – ca. 70 m²
Die zusätzliche Hausmeister- bzw. Dienstwohnung erweitert die Nutzungsmöglichkeiten des Objekts deutlich und bietet einen echten Mehrwert für Unternehmen.
Raumaufteilung:
2 Schlafzimmer
Wohnzimmer
Separate Küche
Badezimmer
Separates WC
Die Wohnung kann flexibel genutzt werden, z. B. als:
Dienst- oder Betriebswohnung
Büro- oder Besprechungserweiterung
Rückzugs- oder Aufenthaltsbereich für Geschäftsführung
Betreuungseinheit für den Standort
Moderne Nutzungskonzepte & Zielgruppen
Die Immobilie eignet sich hervorragend für:
Moderne Kanzleien (Rechtsanwälte, Steuerberater, Notare) mit Mandantenverkehr
Unternehmen und Unternehmensberatungen mit klarer Struktur und Wachstumspotenzial
Shared Office / Co-Working-Konzepte mit fixen und flexiblen Büroeinheiten
Bürovermietung an mehrere Unternehmen unter einem Dach
Schulungs-, Seminar- oder Weiterbildungszentren
Dienstleistungs- und Beratungscluster
Die Kombination aus Einzelbüros, zentraler Servicezone und zusätzlicher Wohnung ermöglicht es, klassische Arbeitsformen und moderne New-Work-Ansätze sinnvoll zu vereinen.
Fazit
Diese Immobilie ist mehr als eine klassische Bürofläche – sie ist ein zukunftsfähiger Unternehmensstandort, der sowohl repräsentative Kanzleien als auch moderne, flexible Arbeitskonzepte optimal unterstützt. Ein Standort, der Professionalität ausstrahlt und gleichzeitig Raum für Entwicklung, Zusammenarbeit und Innovation bietet.
Der Vermittler ist als Doppelmakler tätig.
Infrastruktur / Entfernungen
Gesundheit
Arzt <250m
Apotheke <500m
Krankenhaus <1.750m
Kinder & Schulen
Schule <500m
Kindergarten <750m
Universität <4.250m
Nahversorgung
Supermarkt <250m
Bäckerei <250m
Einkaufszentrum <500m
Sonstige
Bank <250m
Geldautomat <250m
Post <250m
Polizei <4.000m
Verkehr
Bus <250m
Autobahnanschluss <750m
Bahnhof <1.000m
Flughafen <7.250m
Angaben Entfernung Luftlinie / Quelle: OpenStreetMap
Objektdaten
Ausstattung
- Räume veränderbar
- Kabelkanäle
- Bad mit Dusche
- Bad mit Pissoir
- Einbauküche
- Fliesenboden
- Kunststoffboden
- Zentralheizung
- Alternative Befeuerung
- Personen Fahrstuhl
- Flachdach
- Massiv Bauweise
Zustand
- Zustand
- GEPFLEGT
- HWB
- 100 kWh/m² pro Jahr
- Klasse HWB
- C
- fGEE
- 1.2
- Klasse fGEE
- C
Flächen
- Anzahl der Zimmer
- 11
- Anzahl der Badezimmer
- 1
- Anzahl der sep. WCs
- 3
- Wohnfläche
- 70m²
- Bürofläche
- 417m²
Kosten
- Gesamtmiete Brutto
- € 5.144,90
- Miete
- € 3.235,50
- Betriebskosten
- € 974,00
- Heizkosten
- € 243,50
- Sonstige Kosten
- € 77,92
- Umsatzsteuer
- € 906,18
Verwaltung
- Verfügbar ab
- nach Vereinbarung
- Mietdauer
- bis 5,0 Jahre
Büros zum Mieten im Umkreis von Bruck an der Mur
Büros zum Mieten in Österreich
Andere Besucher suchen nach...
- Immobilien kaufen in 2601 Sollenau
- Immobilien in 4951 Polling im Innkreis, Oberösterreich
- Immobilien in 4742 Pram, Oberösterreich kaufen oder mieten
- Häuser kaufen in 2340 Mödling, Niederösterreich
- Häuser kaufen in 9421 Gemmersdorf, Kärnten
- Wohnungen / Eigentumswohnungen kaufen in 9431 St. Stefan, Kärnten
- Häuser kaufen in Bruck an der Leitha, Niederösterreich
- Immobilien mieten in Krems an der Donau, Niederösterreich
- Häuser zum Kaufen im Bezirk St. Pölten Land, Niederösterreich
- Büro / Praxen mieten in Rohrbach, Oberösterreich