Ihr neuer Business-Standort am Millenium-Park Lustenau: 245 m² große Bürofläche zu vermieten!
-
2020
-
1. April 2026
Beschreibung
Moderne Bürofläche mit flexiblem Nutzungskonzept: Ihr neuer Business-Standort am Millenium Park in Lustenau
Wer einen zukunftsorientierten Bürostandort mit moderner Ausstattung und hervorragender Infrastruktur sucht, ist hier genau richtig: Im Glaserweg 20 in Lustenau, am bekannten Millennium Park, steht diese großzügige Bürofläche mit rund 245,19 m² zur Verfügung. Das im Jahr 2020 errichtete Gebäude überzeugt durch zeitgemäße Architektur, eine hochwertige Ausstattung und ein professionelles Arbeitsumfeld.
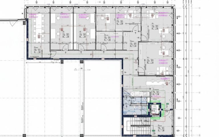
Die Bürofläche bietet eine durchdachte Struktur mit offener Kommunikationszone, mehreren Büroräumen, Besprechungsbereich sowie ergänzenden Nebenflächen und eignet sich ideal für Unternehmen, Agenturen, Kanzleien, Start-ups oder Coworking-Konzepte. Optional kann eine zusätzliche Lagerfläche mit einer Größe...
Moderne Bürofläche mit flexiblem Nutzungskonzept: Ihr neuer Business-Standort am Millenium Park in Lustenau
Wer einen zukunftsorientierten Bürostandort mit moderner Ausstattung und hervorragender Infrastruktur sucht, ist hier genau richtig: Im Glaserweg 20 in Lustenau, am bekannten Millennium Park, steht diese großzügige Bürofläche mit rund 245,19 m² zur Verfügung. Das im Jahr 2020 errichtete Gebäude überzeugt durch zeitgemäße Architektur, eine hochwertige Ausstattung und ein professionelles Arbeitsumfeld.
Die Bürofläche bietet eine durchdachte Struktur mit offener Kommunikationszone, mehreren Büroräumen, Besprechungsbereich sowie ergänzenden Nebenflächen und eignet sich ideal für Unternehmen, Agenturen, Kanzleien, Start-ups oder Coworking-Konzepte. Optional kann eine zusätzliche Lagerfläche mit einer Größe von 557,60 m² separat angemietet werden. Rund um das Gebäude stehen ausreichend Parkmöglichkeiten zur Verfügung – ein klarer Vorteil für Mitarbeiter und Besucher.
Die Lage am Millennium Park zählt zu den etabliertesten Wirtschaftsstandorten der Region und bietet beste Erreichbarkeit, eine starke Infrastruktur sowie ein professionelles Umfeld für nachhaltiges Wachstum.
Eine Bürofläche, die nicht nur Raum bietet – sondern Perspektiven für moderne Arbeitswelten.
Lage:
• Etablierte Businesslage am Millennium Park: Der Millennium Park zählt zu den bekanntesten und gefragtesten Gewerbe- und Industriestandorten in Vorarlberg und bietet ein professionelles Umfeld für Unternehmen unterschiedlichster Branchen.
• Optimale Erreichbarkeit für Mitarbeiter & Kunden: Die Lage ist sowohl mit dem Auto als auch mit öffentlichen Verkehrsmitteln sehr gut erreichbar – ideal für tägliche Arbeitswege und Kundenbesuche.
• Schnelle Anbindung an das überregionale Verkehrsnetz: Die Nähe zur Rheintal-Autobahn A14 ermöglicht kurze Wege Richtung Dornbirn, Bregenz, Feldkirch sowie in Richtung Schweiz und Liechtenstein.
• Grenznähe & internationaler Wirtschaftsraum: Die Nähe zur Schweizer Grenze macht den Standort besonders attraktiv für Unternehmen mit internationaler Ausrichtung oder grenzüberschreitenden Geschäftsbeziehungen.
• Ausgezeichnete Infrastruktur im Umfeld: Im Umfeld des Millennium Parks befinden sich zahlreiche Unternehmen, Dienstleister, Gastronomiebetriebe sowie Nahversorger – perfekt für den Arbeitsalltag.
Raumaufteilung:
• Kommunikationszone mit Teeküche
• fünf Büroräume
• Lager/Archiv
• Erschließung
• Besprechungsraum
• Toilette
• Dusche
Top-Features:
• 245,19 m² Bürofläche – Großzügig, modern und flexibel nutzbar für Unternehmen, Agenturen, Kanzleien oder Coworking-Konzepte
• Baujahr 2020 – Zeitgemäße Architektur, hochwertige Ausstattung und repräsentatives Arbeitsumfeld
• Helle Arbeitsräume – Große Fensterflächen sorgen für viel Tageslicht und eine angenehme Arbeitsatmosphäre
• Erweiterbare Lagerfläche – Zusätzliche Lagerfläche mit einer Größe von 557,60 m² kann bei Bedarf separat angemietet werden
• Ausreichend Parkplätze – Zahlreiche Abstellmöglichkeiten direkt rund um das Gebäude für Mitarbeiter und Besucher
Gesamtmietzins:
EUR 5.904,00 Mietzins Büroräumlichkeit
EUR 864,00 Betriebskosten Büroräumlichkeit
EUR 120,00 Heizkosten Büroräumlichkeit
EUR 6.888,00 Gesamtmietzins inklusive Betriebskosten
Einmalkosten:
Kaution: € 20.700 (inkl. MwSt.) per Überweisung oder mittels Bankgarantie möglich
Bearbeitungsgebühr: € 13.776,00 (inkl. MwSt.)
Finanzamt-Gebühr: € 2.479,68 (inkl. MwSt.)
Zögern Sie nicht und kontaktieren Sie uns für einen Besichtigungstermin!
Die Firma Mag. Kofler Vermögenstreuhand GmbH kann kraft bestehenden Geschäftsgebrauchs als Doppelmakler tätig sein und ist als solcher tätig. Weiter ist die Firma Mag. Kofler Vermögenstreuhand GmbH ermächtigt, bis auf Widerruf Objekte zu präsentieren. Mit dem Auftraggeber besteht ein wirtschaftliches Naheverhältnis (Immobilienverwaltung).
Noch nichts gefunden? Wir informieren Sie über geeignete Immobilienangebote noch vor allen anderen.
Legen Sie jetzt Ihren individuellen Suchagenten unter folgendem Link an. Wir schicken Ihnen passende Immobilien exklusiv vorab zu.
Suchagent anlegen - https://mag-kofler-vermoegenstreuhand.service.immo/registrieren/de
Wir weisen darauf hin, dass zwischen dem Vermittler und dem zu vermittelnden Dritten ein familiäres oder wirtschaftliches Naheverhältnis besteht.
Der Vermittler ist als Doppelmakler tätig.
Infrastruktur / Entfernungen
Gesundheit
Arzt <450m
Apotheke <775m
Krankenhaus <5.500m
Klinik <4.550m
Kinder & Schulen
Schule <725m
Kindergarten <475m
Universität <5.700m
Höhere Schule <3.100m
Nahversorgung
Supermarkt <325m
Bäckerei <1.150m
Einkaufszentrum <1.350m
Sonstige
Bank <650m
Geldautomat <650m
Post <1.400m
Polizei <1.425m
Verkehr
Bus <225m
Bahnhof <1.500m
Autobahnanschluss <2.175m
Flughafen <4.275m
Angaben Entfernung Luftlinie / Quelle: OpenStreetMap
Objektdaten
Ausstattung
- Teeküche
- Rolladen
- Bad mit Dusche
- Bad mit Pissoir
- Erdwärme
- Personen Fahrstuhl
Zustand
- Baujahr
- 2020
- HWB
- 34 kWh/m² pro Jahr
- Klasse HWB
- B
- fGEE
- 0.98
- Klasse fGEE
- B
Flächen
- Anzahl der Badezimmer
- 1
- Anzahl der sep. WCs
- 1
- Nutzfläche
- 245m²
Kosten
- Kaution
- € 20.700,00
Verwaltung
- Verfügbar ab
- 1. April 2026
Büros zum Mieten im Umkreis von Lustenau
Büros zum Mieten in Österreich
Andere Besucher suchen nach...
- Immobilien kaufen in 2601 Sollenau
- Immobilien in 4951 Polling im Innkreis, Oberösterreich
- Immobilien in 4742 Pram, Oberösterreich kaufen oder mieten
- Häuser kaufen in 2340 Mödling, Niederösterreich
- Häuser kaufen in 9421 Gemmersdorf, Kärnten
- Wohnungen / Eigentumswohnungen kaufen in 9431 St. Stefan, Kärnten
- Häuser kaufen in Bruck an der Leitha, Niederösterreich
- Immobilien mieten in Krems an der Donau, Niederösterreich
- Häuser zum Kaufen im Bezirk St. Pölten Land, Niederösterreich
- Büro / Praxen mieten in Rohrbach, Oberösterreich