Repräsentatives Büro inmitten der Grazer Innenstadt
Beschreibung
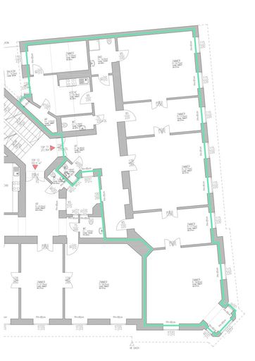
Das helle und geräumige Büro in der Neutorgasse 51, 8010 Graz, bietet die perfekte Kombination aus historischem Charme und modernen Annehmlichkeiten in zentraler Innenstadtlage.
Alle Büroräume sind mit Parkettboden ausgestattet und sorgen für eine angenehme Arbeitsatmosphäre. Die Nassräume sind mit Fliesen versehen. Das Büro ist mit getrennten WCs, einer praktischen Teeküche und einem Abstellräumen ausgestattet. Zudem verfügt das Büro über ein Badezimmer.
Alle Angaben entsprechen dem Kenntnisstand zum Zeitpunkt der Veröffentlichung. Für Fehler, Abweichungen, Irrtümer oder falsche Angaben kann keine Haftung übernommen werden
Wir weisen darauf hin, dass zwischen dem Vermittler und dem zu vermittelnden Dritten ein familiäres oder...
Das helle und geräumige Büro in der Neutorgasse 51, 8010 Graz, bietet die perfekte Kombination aus historischem Charme und modernen Annehmlichkeiten in zentraler Innenstadtlage.
Alle Büroräume sind mit Parkettboden ausgestattet und sorgen für eine angenehme Arbeitsatmosphäre. Die Nassräume sind mit Fliesen versehen. Das Büro ist mit getrennten WCs, einer praktischen Teeküche und einem Abstellräumen ausgestattet. Zudem verfügt das Büro über ein Badezimmer.
Alle Angaben entsprechen dem Kenntnisstand zum Zeitpunkt der Veröffentlichung. Für Fehler, Abweichungen, Irrtümer oder falsche Angaben kann keine Haftung übernommen werden
Wir weisen darauf hin, dass zwischen dem Vermittler und dem zu vermittelnden Dritten ein familiäres oder wirtschaftliches Naheverhältnis besteht.
Der Vermittler ist als Doppelmakler tätig.
Infrastruktur / Entfernungen
Gesundheit
Arzt <500m
Apotheke <500m
Klinik <1.000m
Krankenhaus <1.000m
Kinder & Schulen
Schule <500m
Kindergarten <500m
Universität <1.000m
Höhere Schule <1.000m
Nahversorgung
Supermarkt <500m
Bäckerei <500m
Einkaufszentrum <500m
Sonstige
Geldautomat <500m
Bank <500m
Post <500m
Polizei <500m
Verkehr
Bus <500m
Straßenbahn <500m
Autobahnanschluss <4.500m
Bahnhof <1.000m
Flughafen <9.000m
Angaben Entfernung Luftlinie / Quelle: OpenStreetMap
Objektdaten
Ausstattung
- Teeküche
- Bad mit Dusche
- Fliesenboden
- Parkettboden
- Fernwärme Heizung
- Personen Fahrstuhl
- Massiv Bauweise
Zustand
- Baujahr
- 1899
- Alter
- ALTBAU
- HWB
- 119.7 kWh/m² pro Jahr
- Klasse HWB
- D
- fGEE
- 1.44
- Klasse fGEE
- C
Flächen
- Anzahl der Zimmer
- 5
- Anzahl der Badezimmer
- 1
- Anzahl der sep. WCs
- 3
- Anzahl der Balkone
- 1
- Nutzfläche
- 218m²
Kosten
- Gesamtmiete Brutto
- € 3.599,30
- Kaution
- € 12.000,00
- Miete
- € 2.569,57
- Betriebskosten
- € 391,97
- Heizkosten
- € 326,64
- Sonstige Kosten
- € 37,88
- Umsatzsteuer
- € 665,21
Verwaltung
- Verfügbar ab
- nach Vereinbarung
Büros zum Mieten in Österreich
Büros zum Mieten in Österreich
Andere Besucher suchen nach...
- Grundstücke kaufen in 3400 Weidlingbach
- Wohnungen kaufen in 4663 Laakirchen
- Häuser in 7471 Rechnitz
- Wohnungen in 2410 Hainburg an der Donau
- Häuser kaufen in 2432 Schwadorf
- Wohnungen kaufen in 3002 Purkersdorf
- Häuser in 3150 Wilhelmsburg
- Wohnungen kaufen in 3470 Engelmannsbrunn
- Grundstücke kaufen im Bezirk Mattersburg
- Grundstücke kaufen im Bezirk Gmunden