Geschäftslokal als Ordination/Büro nutzbar - Nähe Murpark
€ 1.287 / Monat
€ 18 / m²
8042 Graz,07.Bez.:Liebenau
Beschreibung
Dieses attraktive Geschäftslokal befindet sich in einer Wohnanlage mit betreutem Wohnen !
Ideal kann das Lokal als Ordination, Praxis oder sonstige Art von Büro genutzt werden.
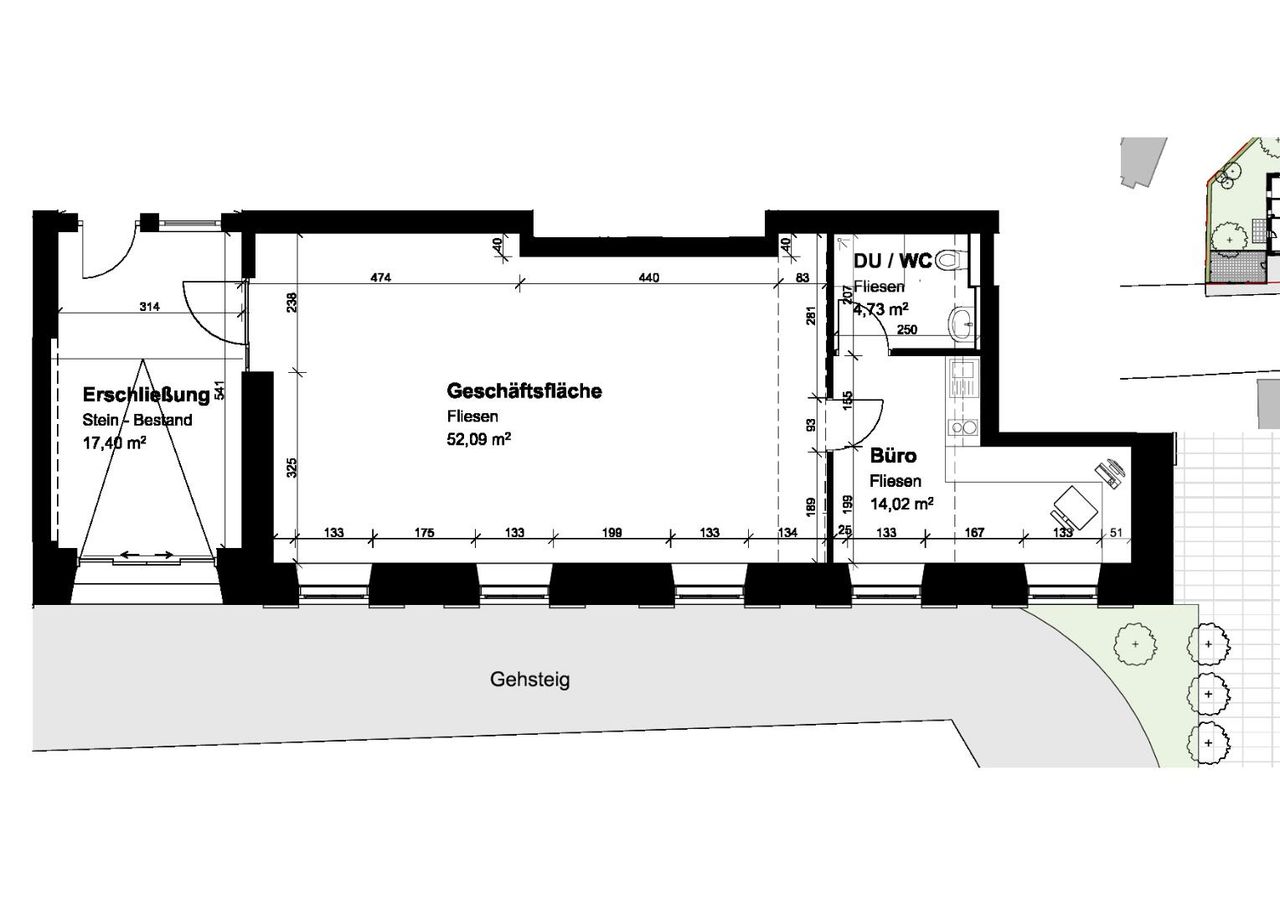
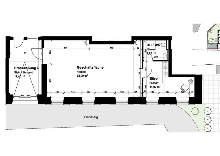
Das ca. 70m² große Gewerbelokal besteht aus einem großen Raum mit ca. 52m² und einem zweiten kleineren Raum der mit einer Teeküche ausgestattet ist. Zusätzlich ist auch ein Sanitärbereich mit einer Dusche vorhanden.
Vor dem Gebäude stehen genügend Parkplätze zur Verfügung.
Für sonstige Fragen und Besichtigungen stehe ich Ihnen gerne zur Verfügung.
Freue mich auf Ihren Anruf
Ideal kann das Lokal als Ordination, Praxis oder sonstige Art von Büro genutzt werden.
Das ca. 70m² große Gewerbelokal besteht aus einem großen Raum mit ca. 52m² und einem zweiten kleineren Raum der mit einer Teeküche ausgestattet ist. Zusätzlich ist auch ein Sanitärbereich mit einer Dusche vorhanden.
Vor dem Gebäude stehen genügend Parkplätze zur Verfügung.
Für sonstige Fragen und Besichtigungen stehe ich Ihnen gerne zur Verfügung.
Freue mich auf Ihren Anruf
| Angaben gemäß gesetzlichem Erfordernis: | |||
| Miete | € | 1072,5 | zzgl 20% USt. |
| Umsatzsteuer | € | 214,5 | |
| ------------------------------------------------------------------ | |||
| Gesamtbetrag | € | 1287 | |
| ------------------------------------------------------------------ | |||
| Heizwärmebedarf: | 32.9 kWh/(m²a) | ||
Objektdaten
Ausstattung
- Zentralheizung
- Fern Befeuerung
- Küche Möbliert
- Zentralheizung mit Fernwärme
Zustand
- Zustand
- GEPFLEGT
- Baujahr
- 2019
Flächen
- Anzahl der Zimmer
- 4
- Anzahl der sep. WCs
- 1
- Nutzfläche
- 71m²
- Bürofläche
- 71m²
Kosten
- Kaltmiete
- € 1.287,00
- Kaution
- € 5.000,00
Verwaltung
- Mietdauer
- ab 10,0 Jahre
Büros zum Mieten in Österreich
Büros zum Mieten in Österreich
Andere Besucher suchen nach...
- Grundstücke kaufen in 3400 Weidlingbach
- Wohnungen kaufen in 4663 Laakirchen
- Häuser in 7471 Rechnitz
- Wohnungen in 2410 Hainburg an der Donau
- Häuser kaufen in 2432 Schwadorf
- Wohnungen kaufen in 3002 Purkersdorf
- Häuser in 3150 Wilhelmsburg
- Wohnungen kaufen in 3470 Engelmannsbrunn
- Grundstücke kaufen im Bezirk Mattersburg
- Grundstücke kaufen im Bezirk Gmunden