#Ihr Büro nahe Hauptplatz #Pauschalmiete inkl. HK/Strom/BK #Jetzt mieten!
-
nach Umbau voraussichtl. 11/2025
Beschreibung
Willkommen in Ihrem neuen Büro / Praxis /Meeting oder Studio in Leoben, einer charmanten Stadt in der Steiermark, die für ihre historische Bergbau- und Universitätsstadt bekannt ist.
Diese erstklassige Immobilie bietet Ihnen nicht nur eine exponierte Lage, sondern auch eine hervorragende Ausstattung und ein stilvolles Design, das perfekt zu Ihrem Unternehmen passt.
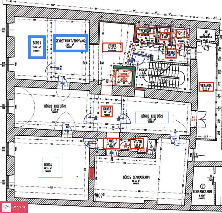
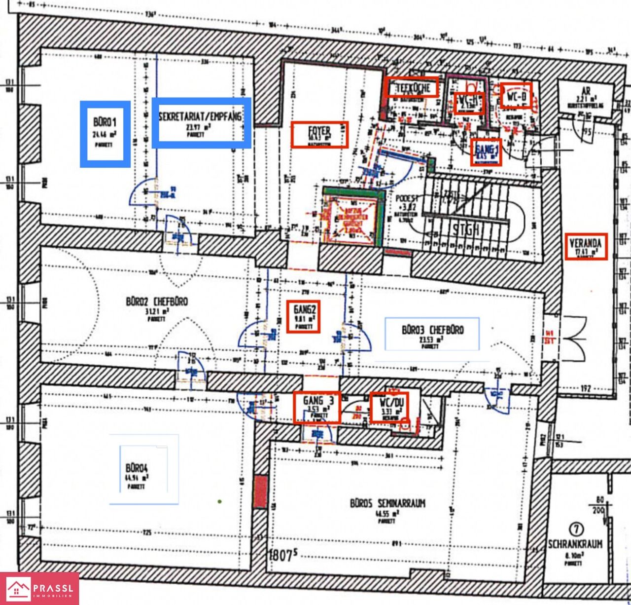
Durch einen Lift oder das moderne Stiegenhaus erreichen Sie das 1. Obergeschoss der Liegenschaft, nutzen Sie die Vorteile des Gemeinschaftsbüros.
Sie teilen sich die Allgemeinanlagen wie zwei voll ausgestattete WC's (eines davon behindertengerecht), als auch ein sep. WC mit Duschmöglichkeit sowie eine Gemeinschaftsküche mit gemütlicher Veranda...
Willkommen in Ihrem neuen Büro / Praxis /Meeting oder Studio in Leoben, einer charmanten Stadt in der Steiermark, die für ihre historische Bergbau- und Universitätsstadt bekannt ist.
Diese erstklassige Immobilie bietet Ihnen nicht nur eine exponierte Lage, sondern auch eine hervorragende Ausstattung und ein stilvolles Design, das perfekt zu Ihrem Unternehmen passt.
Durch einen Lift oder das moderne Stiegenhaus erreichen Sie das 1. Obergeschoss der Liegenschaft, nutzen Sie die Vorteile des Gemeinschaftsbüros.
Sie teilen sich die Allgemeinanlagen wie zwei voll ausgestattete WC's (eines davon behindertengerecht), als auch ein sep. WC mit Duschmöglichkeit sowie eine Gemeinschaftsküche mit gemütlicher Veranda als auch den Empfangs-/Warteraum, haben aber einen eigenes Büro oder Raum um Ihre Idee zu verwirklichen. Möchten Sie expandieren? Kein Problem. Weitere Flächen stehen auf Anfrage zur Verfügung.
Ideal für alle, die mit einer fixen Kostenkalkulation in eine Unternehmensgründung starten.
Aufteilung Gemeinschaftsflächen (ca. 67,56 m2):
- Eingangsbereich, ins 1.OG mit Personenlift oder über Stiege,
- offener Empfang mit Wartezone,
- kleine Kitchenette/Teeküche,
- gemütliche Veranda mit Sitzmöglichkeit für die Pausen,
- Kunden WC Damen/Herren,
- Dusche-WC.
Ihr eigenes Büro (Büro 1) / Emfpang verfügt über ca. 65,39 m2, ein Industrieparkett und eine helle Fensterfront zum Wohlfühlen.
Der Möblierungsvorschlag im ersten Bild wurde von der KI generiert.
Der Vermittler ist als Doppelmakler tätig.
Infrastruktur / Entfernungen
Gesundheit
Arzt <500m
Apotheke <500m
Krankenhaus <1.000m
Kinder & Schulen
Schule <500m
Kindergarten <1.000m
Universität <500m
Höhere Schule <500m
Nahversorgung
Supermarkt <500m
Bäckerei <500m
Einkaufszentrum <500m
Sonstige
Bank <500m
Geldautomat <500m
Post <500m
Polizei <500m
Verkehr
Bus <500m
Autobahnanschluss <2.500m
Bahnhof <1.000m
Flughafen <10.000m
Angaben Entfernung Luftlinie / Quelle: OpenStreetMap
Objektdaten
Ausstattung
- Klimatisiert
- Rollstuhlgerecht
- Barrierefrei
- Wintergarten
- DV Verkabelung
- Seniorengerecht
- Bad mit Dusche
- Pantry Küche
- Fliesenboden
- Parkettboden
- Zentralheizung
- Befeuerung mit Gas
- Massiv Bauweise
Dokumente / Links
Zustand
- Alter
- ALTBAU
- HWB
- 70.5 kWh/m² pro Jahr
- Klasse HWB
- C
- fGEE
- 1.14
- Klasse fGEE
- C
Flächen
- Anzahl der Zimmer
- 1
- Anzahl der Badezimmer
- 1
- Anzahl der sep. WCs
- 3
- Nutzfläche
- 68m²
- Gesamtfläche
- 116m²
- Bürofläche
- 48m²
Kosten
- Gesamtmiete Brutto
- € 999,60
- Miete
- € 833,00
- Umsatzsteuer
- € 166,60
Verwaltung
- Verfügbar ab
- nach Umbau voraussichtl. 11/2025
- Mietdauer
- bis 4,0 Jahre
Büros zum Mieten im Umkreis von Leoben
Büros zum Mieten in Österreich
Andere Besucher suchen nach...
- Grundstücke kaufen in 3400 Weidlingbach
- Wohnungen kaufen in 4663 Laakirchen
- Häuser in 7471 Rechnitz
- Wohnungen in 2410 Hainburg an der Donau
- Häuser kaufen in 2432 Schwadorf
- Wohnungen kaufen in 3002 Purkersdorf
- Häuser in 3150 Wilhelmsburg
- Wohnungen kaufen in 3470 Engelmannsbrunn
- Grundstücke kaufen im Bezirk Mattersburg
- Grundstücke kaufen im Bezirk Gmunden