Kleines Büro mit Parkettboden und Entwicklungspotenzial in Traun
-
nach Absprache
Beschreibung
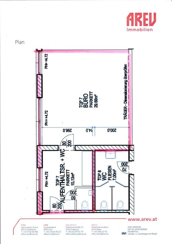
Die ca. 41 m² große Bürofläche in Traun befindet sich aktuell in einem einfachen, funktionalen Zustand und wird vom Eigentümer saniert. Bereits vorhanden ist ein Parkettboden, der der Einheit eine angenehme und warme Grundatmosphäre verleiht.
Die Fläche überzeugt durch ihre helle Ausrichtung und eine gut nutzbare Raumaufteilung, die nach Abschluss der Sanierungsarbeiten ein zeitgemäßes und professionelles Arbeitsumfeld bietet.
Eine Toilette sowie eine kleine Teeküche sind in der Einheit integriert und sorgen für praktischen Komfort im Büroalltag.
Nach der Renovierung entsteht hier ein kompaktes, gepflegtes Büro, ideal für Einzelunternehmer oder kleine Teams, die eine effiziente Fläche mit ansprechender Grundausstattung suchen.
Die...
Die ca. 41 m² große Bürofläche in Traun befindet sich aktuell in einem einfachen, funktionalen Zustand und wird vom Eigentümer saniert. Bereits vorhanden ist ein Parkettboden, der der Einheit eine angenehme und warme Grundatmosphäre verleiht.
Die Fläche überzeugt durch ihre helle Ausrichtung und eine gut nutzbare Raumaufteilung, die nach Abschluss der Sanierungsarbeiten ein zeitgemäßes und professionelles Arbeitsumfeld bietet.
Eine Toilette sowie eine kleine Teeküche sind in der Einheit integriert und sorgen für praktischen Komfort im Büroalltag.
Nach der Renovierung entsteht hier ein kompaktes, gepflegtes Büro, ideal für Einzelunternehmer oder kleine Teams, die eine effiziente Fläche mit ansprechender Grundausstattung suchen.
Die Heizkosten betragen dzt € 34,03 zzgl. der gesetzlich vorgeschriebenen USt.
Unverbindliches, freibleibendes Angebot. Informationen nach bestem Wissen und Gewissen vom Abgeber erhalten - für die Richtigkeit wird keine Haftung übernommen. Mündliche Nebenabreden zum angebotenen Objekt bedürfen zu Ihrer Wirksamkeit der Schriftform. Irrtümer, Druckfehler und Änderungen vorbehalten. Es besteht zwischen dem Vermittler und dem Abgeber ein wirtschaftliches Naheverhältnis.
Wir weisen darauf hin, dass zwischen dem Vermittler und dem zu vermittelnden Dritten ein familiäres oder wirtschaftliches Naheverhältnis besteht.
Der Vermittler ist als Doppelmakler tätig.
Infrastruktur / Entfernungen
Gesundheit
Arzt <150m
Apotheke <450m
Klinik <1.050m
Krankenhaus <5.275m
Kinder & Schulen
Kindergarten <1.100m
Schule <475m
Universität <3.350m
Höhere Schule <7.425m
Nahversorgung
Supermarkt <75m
Bäckerei <25m
Einkaufszentrum <1.925m
Sonstige
Bank <400m
Geldautomat <400m
Post <2.025m
Polizei <2.325m
Verkehr
Bus <25m
Straßenbahn <1.750m
Bahnhof <450m
Autobahnanschluss <2.725m
Flughafen <5.225m
Angaben Entfernung Luftlinie / Quelle: OpenStreetMap
Objektdaten
Flächen
- Nutzfläche
- 41m²
Kosten
- Gesamtmiete Brutto
- € 413,28
- Miete
- € 278,80
- Betriebskosten
- € 65,60
- Umsatzsteuer
- € 68,88
Verwaltung
- Verfügbar ab
- nach Absprache
- Mietdauer
- bis 5,0 Jahre
Büros zum Mieten im Umkreis von Traun
Büros zum Mieten in Österreich
Andere Besucher suchen nach...
- Immobilien kaufen in 2601 Sollenau
- Immobilien in 4951 Polling im Innkreis, Oberösterreich
- Immobilien in 4742 Pram, Oberösterreich kaufen oder mieten
- Häuser kaufen in 2340 Mödling, Niederösterreich
- Häuser kaufen in 9421 Gemmersdorf, Kärnten
- Wohnungen / Eigentumswohnungen kaufen in 9431 St. Stefan, Kärnten
- Häuser kaufen in Bruck an der Leitha, Niederösterreich
- Immobilien mieten in Krems an der Donau, Niederösterreich
- Häuser zum Kaufen im Bezirk St. Pölten Land, Niederösterreich
- Büro / Praxen mieten in Rohrbach, Oberösterreich