DIE PERFEKTE BÜROFLÄCHE MIT UNBEZAHLBAREM BLICK - 7.OG
-
01.01.2026
Beschreibung
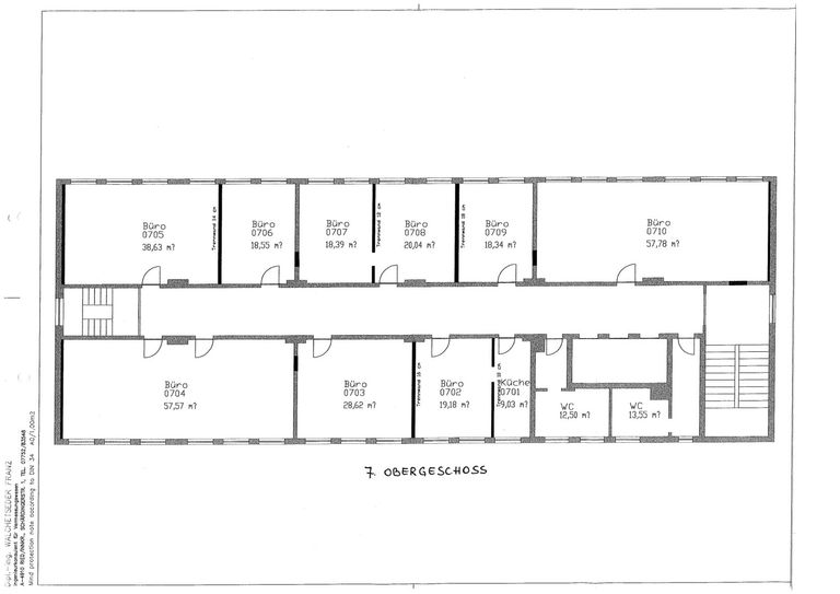
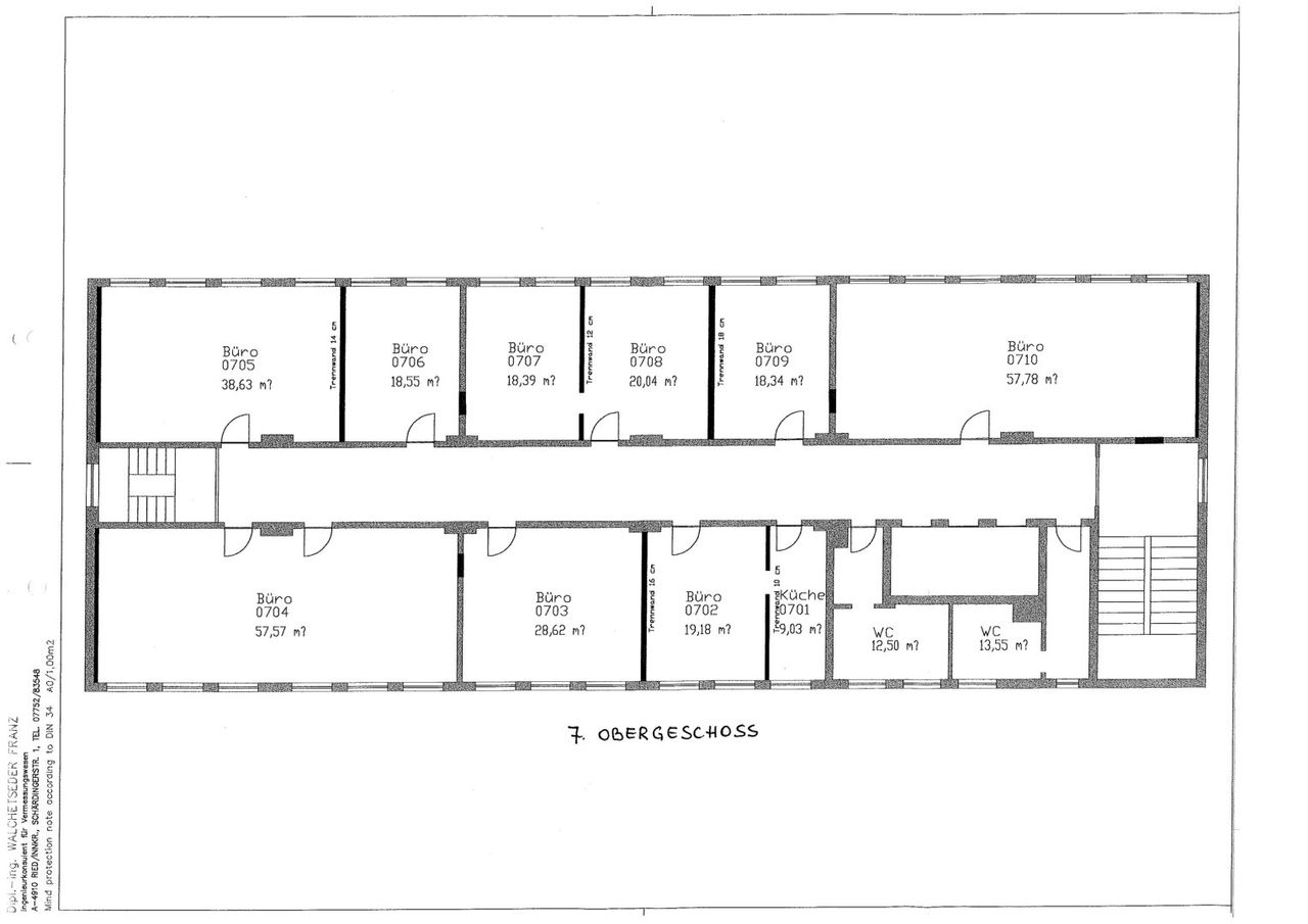
Willkommen in Ihrer neuen Bürofläche im Herzen von Linz, Oberösterreich! Diese beeindruckende Immobilie befindet sich in der 7. Etage eines modernen Gebäudes und bietet Ihnen eine großzügige Fläche von 380 m², die ideal für Ihre geschäftlichen Bedürfnisse geeignet ist.
Mit einer monatlichen Miete von 6.924,00 € investieren Sie in einen Standort, der nicht nur durch seine Lage besticht, sondern auch durch seine vielseitigen Nutzungsmöglichkeiten. Ob als Büro oder als Praxis – hier finden Sie den perfekten Raum, um Ihre Ideen zu verwirklichen und Ihr Unternehmen zum Blühen zu bringen.
Die großzügige Bürofläche überzeugt durch ihre durchdachte Raumaufteilung und das helle,...
Willkommen in Ihrer neuen Bürofläche im Herzen von Linz, Oberösterreich! Diese beeindruckende Immobilie befindet sich in der 7. Etage eines modernen Gebäudes und bietet Ihnen eine großzügige Fläche von 380 m², die ideal für Ihre geschäftlichen Bedürfnisse geeignet ist.
Mit einer monatlichen Miete von 6.924,00 € investieren Sie in einen Standort, der nicht nur durch seine Lage besticht, sondern auch durch seine vielseitigen Nutzungsmöglichkeiten. Ob als Büro oder als Praxis – hier finden Sie den perfekten Raum, um Ihre Ideen zu verwirklichen und Ihr Unternehmen zum Blühen zu bringen.
Die großzügige Bürofläche überzeugt durch ihre durchdachte Raumaufteilung und das helle, einladende Ambiente. Eine hochwertige Einbauküche steht Ihnen zur Verfügung, sodass Sie in Ihrer Pause oder bei Meetings kulinarische Köstlichkeiten genießen können. Der Personenaufzug sorgt für einen bequemen Zugang zu Ihrer Etage und ermöglicht einen reibungslosen Ablauf – sowohl für Sie als auch für Ihre Kunden.
Die Verkehrsanbindung könnte nicht besser sein: Sie erreichen die öffentlichen Verkehrsmittel mühelos, sei es mit dem Bus oder zu Fuß zum Bahnhof, und auch der Autobahnanschluss ist in unmittelbarer Nähe. Dies gewährleistet sowohl Ihren Mitarbeitern als auch Ihren Kunden eine einfache Anreise und besten Zugang zu Ihrer Immobilie.
Die Umgebung bietet Ihnen alles, was Sie für den Arbeitsalltag benötigen. In der Nähe finden Sie einen Kindergarten, Schulen, einen Supermarkt und eine Bäckerei. So ist nicht nur für Ihre Verpflegung gesorgt, sondern auch für die Bedürfnisse Ihrer Mitarbeiter – die ideale Voraussetzung für eine angenehme und produktive Arbeitsatmosphäre.
Nutzen Sie die Möglichkeit, in einer der besten Lagen von Linz zu arbeiten! Diese Büro- oder Praxisfläche ist eine Rarität und wird nicht lange auf sich warten lassen. Überzeugen Sie sich selbst von den Vorzügen dieser Immobilie und vereinbaren Sie noch heute einen Besichtigungstermin. Lassen Sie uns gemeinsam Ihre Visionen verwirklichen und den nächsten Schritt in Ihrem geschäftlichen Erfolg gehen!
Wir weisen darauf hin, dass zwischen dem Vermittler und dem zu vermittelnden Dritten ein familiäres oder wirtschaftliches Naheverhältnis besteht.
Der Vermittler ist als Doppelmakler tätig.
Infrastruktur / Entfernungen
Gesundheit
Arzt <1.750m
Apotheke <1.225m
Klinik <1.675m
Krankenhaus <2.100m
Kinder & Schulen
Kindergarten <825m
Schule <750m
Universität <1.875m
Höhere Schule <2.850m
Nahversorgung
Supermarkt <975m
Bäckerei <475m
Einkaufszentrum <2.275m
Sonstige
Bank <100m
Geldautomat <425m
Post <1.625m
Polizei <1.575m
Verkehr
Bus <75m
Straßenbahn <1.325m
Bahnhof <150m
Autobahnanschluss <450m
Flughafen <1.425m
Angaben Entfernung Luftlinie / Quelle: OpenStreetMap
Objektdaten
Ausstattung
- Einbauküche
- Personen Fahrstuhl
Zustand
- HWB
- 94.42 kWh/m² pro Jahr
Flächen
- Gesamtfläche
- 380m²
- Bürofläche
- 278m²
Kosten
- Gesamtmiete Brutto
- € 6.924,00
- Miete
- € 3.900,00
- Betriebskosten
- € 1.870,00
- Umsatzsteuer
- € 1.154,00
Verwaltung
- Verfügbar ab
- 01.01.2026, ab 01. 01. 2026
Büros zum Mieten in Österreich
Büros zum Mieten in Österreich
Andere Besucher suchen nach...
- Grundstücke kaufen in 3400 Weidlingbach
- Wohnungen kaufen in 4663 Laakirchen
- Häuser in 7471 Rechnitz
- Wohnungen in 2410 Hainburg an der Donau
- Häuser kaufen in 2432 Schwadorf
- Wohnungen kaufen in 3002 Purkersdorf
- Häuser in 3150 Wilhelmsburg
- Wohnungen kaufen in 3470 Engelmannsbrunn
- Grundstücke kaufen im Bezirk Mattersburg
- Grundstücke kaufen im Bezirk Gmunden