Neu sanierte Bürofläche mit 260 m² am Schillerpark! Tiefgarage!
€ 5.484 / Monat
€ 21 / m²
4020 Linz
Beschreibung
PARKPLÄTZE - KLIMA - LIFT - BAHNHOF QUICKFACTS Nutzfläche: Büro 1 mit ca. 98,26 m² und Büro 2 mit ca. 258,90 m² oder gesamt ca. 358,17 m² Stockwerk: Zwischengeschoss mit Lift Parkplätze: hauseigene Tiefgarage Nettomiete / m²: ab € 14,00 Bezugstermin: nach Vereinbarung OBJEKTBESCHREIBUNG Dieses klimatisierte Büroobjekt im Zwischengeschoss eines Bürogebäudes bietet einen attraktiven Standort für verschiedenste Unternehmen. Grundrissvarianten mit ca. 98 m² (6-8 Personen), ca. 259 m² (15 Personen) oder ca. 260 m² (20 Personen) können noch mitgeplant werden. LAGE & VERKEHRSANBINDUNG Durch die Nähe zur Shoppingmeile Landstraße ist dieses Mietobjekt perfekt mit der Straßenbahn erreichbar. Es besteht die...
PARKPLÄTZE - KLIMA - LIFT - BAHNHOF
QUICKFACTS
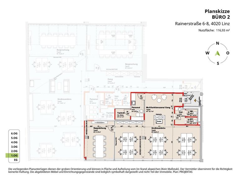
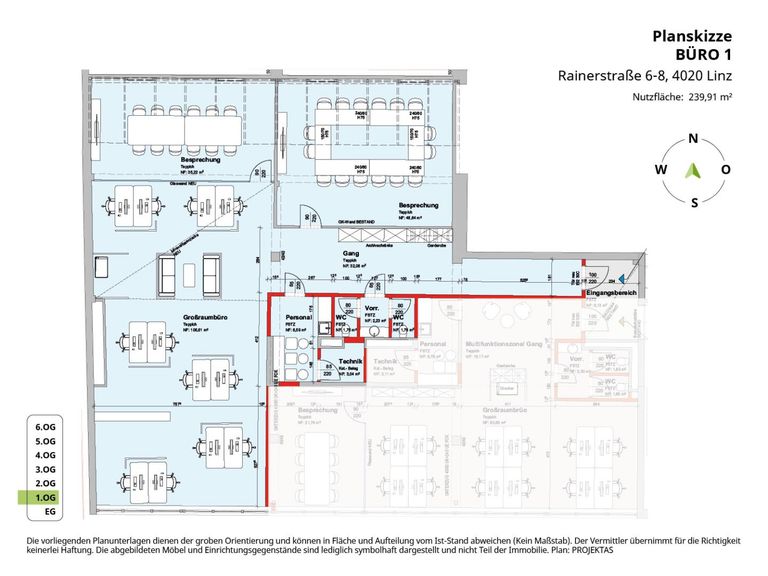
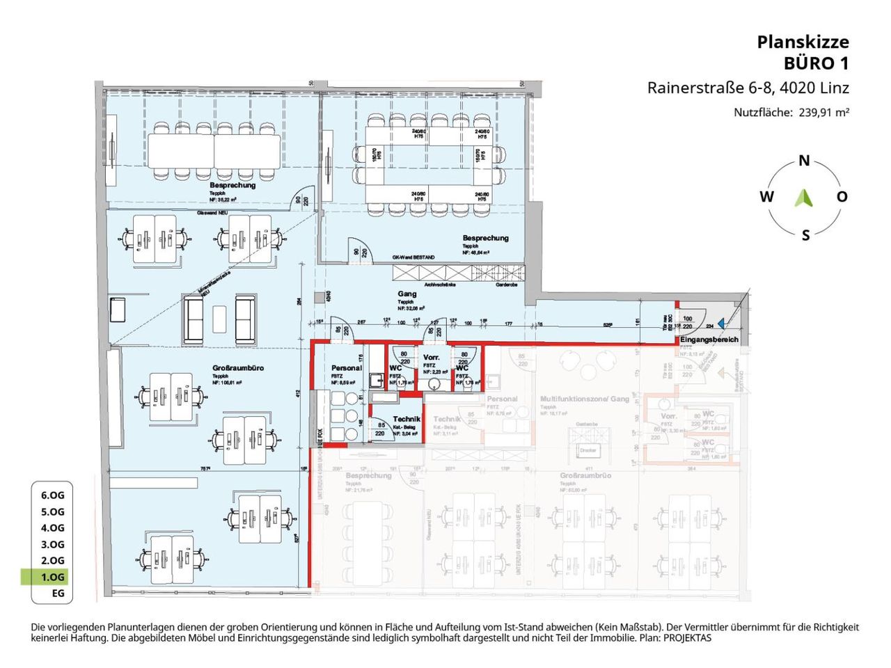
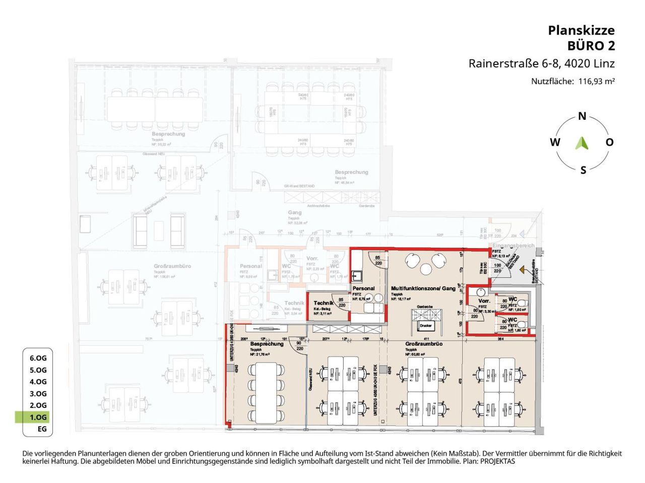
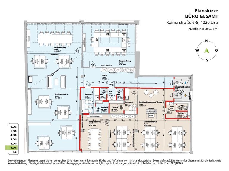
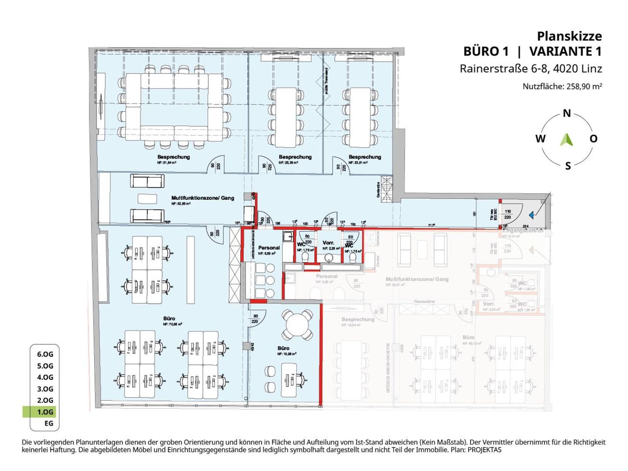
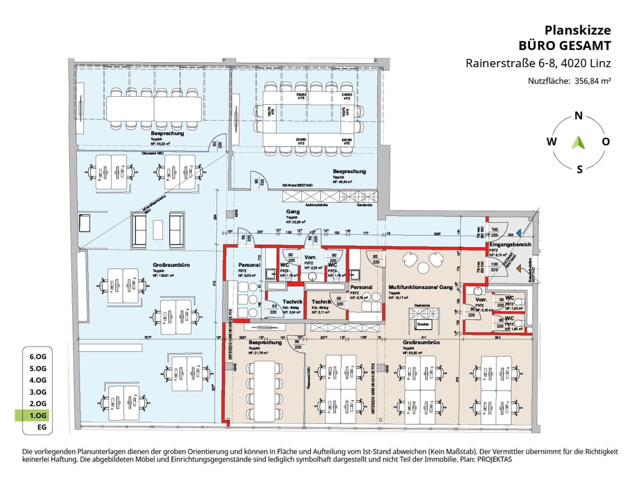
Nutzfläche: Büro 1 mit ca. 98,26 m² und Büro 2 mit ca. 258,90 m² oder gesamt ca. 358,17 m²
Stockwerk: Zwischengeschoss mit Lift
Parkplätze: hauseigene Tiefgarage
Nettomiete / m²: ab € 14,00
Bezugstermin: nach Vereinbarung
OBJEKTBESCHREIBUNG
Dieses klimatisierte Büroobjekt im Zwischengeschoss eines Bürogebäudes bietet einen attraktiven Standort für verschiedenste Unternehmen.
Grundrissvarianten mit ca. 98 m² (6-8 Personen), ca. 259 m² (15 Personen) oder ca. 260 m² (20 Personen) können noch mitgeplant werden.
LAGE & VERKEHRSANBINDUNG
Durch die Nähe zur Shoppingmeile Landstraße ist dieses Mietobjekt perfekt mit der Straßenbahn erreichbar. Es besteht die Möglichkeit in der hauseigenen Tiefgarage Parkplätze um € 125,00 netto zzgl. Betriebskosten anzumieten. Parkmöglichkeiten für Kunden befinden sich in der umliegenden Kurzparkzone und öffentlichen Parkgaragen.
AUSSTATTUNG
Zustand: gut
Boden: Parkett oder Teppich
Decke: abgehängt
Klima: zentral
Fenster: öffenbar
Sonnenschutz: innen
Teeküche: vorhanden
Lift: vorhanden
Beleuchtung: teilweise vorhanden
KONDITIONEN (NETTO)
Miete: ab € 14,00 / m² / Monat
Betriebskosten: € 3,65 / m² / Monat
Heizungskosten: nach Verbrauch
Strom: nach Verbrauch
Befristung: nach Vereinbarung
Kaution: 3 - 6 BMM
Provision: 3 BMM
Zögern Sie nicht uns bei etwaigen Rückfragen oder zur Vereinbarung eines unverbindlichen Besichtigungs- bzw. Beratungstermines zu kontaktieren. Unser Team steht Ihnen gerne zur Verfügung! Ihr Ansprechpartner: Herr Claudio Feistritzer (0664 / 12 88 000 bzw. 0732 / 77 0 88 5-22)
PS: Zahlreiche weitere Immobilien finden Sie auf unserer Homepage unter www.projektas.at
Hinweis: Wir verarbeiten personenbezogene Daten zu geschäftlichen Zwecken. Nähere Informationen finden Sie unter www.projektas.at
QUICKFACTS
Nutzfläche: Büro 1 mit ca. 98,26 m² und Büro 2 mit ca. 258,90 m² oder gesamt ca. 358,17 m²
Stockwerk: Zwischengeschoss mit Lift
Parkplätze: hauseigene Tiefgarage
Nettomiete / m²: ab € 14,00
Bezugstermin: nach Vereinbarung
OBJEKTBESCHREIBUNG
Dieses klimatisierte Büroobjekt im Zwischengeschoss eines Bürogebäudes bietet einen attraktiven Standort für verschiedenste Unternehmen.
Grundrissvarianten mit ca. 98 m² (6-8 Personen), ca. 259 m² (15 Personen) oder ca. 260 m² (20 Personen) können noch mitgeplant werden.
LAGE & VERKEHRSANBINDUNG
Durch die Nähe zur Shoppingmeile Landstraße ist dieses Mietobjekt perfekt mit der Straßenbahn erreichbar. Es besteht die Möglichkeit in der hauseigenen Tiefgarage Parkplätze um € 125,00 netto zzgl. Betriebskosten anzumieten. Parkmöglichkeiten für Kunden befinden sich in der umliegenden Kurzparkzone und öffentlichen Parkgaragen.
AUSSTATTUNG
Zustand: gut
Boden: Parkett oder Teppich
Decke: abgehängt
Klima: zentral
Fenster: öffenbar
Sonnenschutz: innen
Teeküche: vorhanden
Lift: vorhanden
Beleuchtung: teilweise vorhanden
KONDITIONEN (NETTO)
Miete: ab € 14,00 / m² / Monat
Betriebskosten: € 3,65 / m² / Monat
Heizungskosten: nach Verbrauch
Strom: nach Verbrauch
Befristung: nach Vereinbarung
Kaution: 3 - 6 BMM
Provision: 3 BMM
Zögern Sie nicht uns bei etwaigen Rückfragen oder zur Vereinbarung eines unverbindlichen Besichtigungs- bzw. Beratungstermines zu kontaktieren. Unser Team steht Ihnen gerne zur Verfügung! Ihr Ansprechpartner: Herr Claudio Feistritzer (0664 / 12 88 000 bzw. 0732 / 77 0 88 5-22)
PS: Zahlreiche weitere Immobilien finden Sie auf unserer Homepage unter www.projektas.at
Hinweis: Wir verarbeiten personenbezogene Daten zu geschäftlichen Zwecken. Nähere Informationen finden Sie unter www.projektas.at
| Angaben gemäß gesetzlichem Erfordernis: | |||
| Miete | € | 3625 | zzgl 20% USt. |
| Betriebskosten | € | 945 | zzgl 20% USt. |
| Umsatzsteuer | € | 914 | |
| ------------------------------------------------------------------ | |||
| Gesamtbetrag | € | 5484 | |
| ------------------------------------------------------------------ | |||
| Heizwärmebedarf: | 49.91 kWh/(m²a) | ||
| Klasse Heizwärmebedarf: | B | ||
Objektdaten
Ausstattung
- Klimatisiert
- Teeküche
- Parkettboden
- Zentralheizung
- Fern Befeuerung
- Personen Fahrstuhl
- Bus
- Stadtzentrum
- Straßenbahn
- Zentralheizung mit Fernwärme
Dokumente / Links
- Planskizze
- Planskizze Büro 1 - Variante 2
- Planskizze Büro 2 - Variante 1
- Planskizze Büro 2 - Variante 2
- Planskizze Büro gesamt - Variante 1
- Planskizze Büro gesamt - Variante 2
- Planskizze Büro 1 - Variante 1
Zustand
- Zustand
- GEPFLEGT
- Baujahr
- ca. 1991
Flächen
- Stellplätze
- 10
- Nutzfläche
- 259m²
- Bürofläche
- 259m²
Kosten
- Kaltmiete
- € 5.484,00
- Nebenkosten
- € 1.134,00
- Kaution
- € 17.000,00
- Betriebskosten Brutto
- € 1.134,00
Verwaltung
- Mietdauer
- 5,0 Jahre bis 10,0 Jahre
Büros zum Mieten in Österreich
Büros zum Mieten in Österreich
Andere Besucher suchen nach...
- Grundstücke kaufen in 3400 Weidlingbach
- Wohnungen kaufen in 4663 Laakirchen
- Häuser in 7471 Rechnitz
- Wohnungen in 2410 Hainburg an der Donau
- Häuser kaufen in 2432 Schwadorf
- Wohnungen kaufen in 3002 Purkersdorf
- Häuser in 3150 Wilhelmsburg
- Wohnungen kaufen in 3470 Engelmannsbrunn
- Grundstücke kaufen im Bezirk Mattersburg
- Grundstücke kaufen im Bezirk Gmunden