Zentrale und neu sanierte Büro-/Ordinationsfläche nähe Promenade in Linz zu vermieten!
Beschreibung
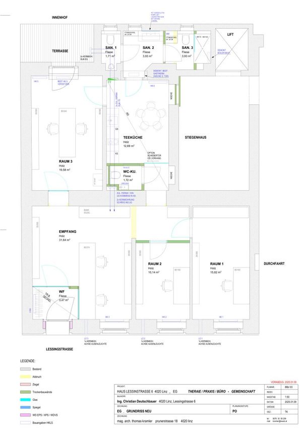
Sanierte Gemeinschaftsordination/Büro in bester Linzer Innenstadtlage zu vermieten!
Diese zentral gelegene Praxisfläche nahe dem Schlossberg bietet auf ca. 15,82m² Nutzfläche ideale Bedingungen für Ihre berufliche Entfaltung. Diese Räumlichkeit befindet sich im Erdgeschoss eines repräsentativen Altbaus und beeindrucken durch einen unverwechselbaren Charme. Die Fläche gewährleistet eine barrierefreie Zugänglichkeit.
Der großzügige Empfangsbereich, die Teeküche sowie die drei WC-Anlagen stehen allen Mietern zur gemeinschaftlichen Nutzung zur Verfügung. Diese gemeinsamen Flächen umfassen ca. 60m².
Die Praxis wurde vom Vermieter umfassend saniert und bietet Ihnen die Möglichkeit, Ihre zukünftigen Räumlichkeiten in einem hochwertigen und modernen Zustand zu übernehmen.
AUFTEILUNG Gesamt: - Eingangsbereich - 3x Praxisräume...
Sanierte Gemeinschaftsordination/Büro in bester Linzer Innenstadtlage zu vermieten!
Diese zentral gelegene Praxisfläche nahe dem Schlossberg bietet auf ca. 15,82m² Nutzfläche ideale Bedingungen für Ihre berufliche Entfaltung. Diese Räumlichkeit befindet sich im Erdgeschoss eines repräsentativen Altbaus und beeindrucken durch einen unverwechselbaren Charme. Die Fläche gewährleistet eine barrierefreie Zugänglichkeit.
Der großzügige Empfangsbereich, die Teeküche sowie die drei WC-Anlagen stehen allen Mietern zur gemeinschaftlichen Nutzung zur Verfügung. Diese gemeinsamen Flächen umfassen ca. 60m².
Die Praxis wurde vom Vermieter umfassend saniert und bietet Ihnen die Möglichkeit, Ihre zukünftigen Räumlichkeiten in einem hochwertigen und modernen Zustand zu übernehmen.
AUFTEILUNG Gesamt:
- Eingangsbereich
- 3x Praxisräume
- 3x separate Toiletten
- Teeküche
Dank der erstklassigen Lage profitieren sowohl Ihre MitarbeiterInnen als auch PatientInnen von einer hervorragenden Erreichbarkeit. Öffentliche Verkehrsmittel (Straßenbahnhaltestelle TAUBENMARKT und HAUPTPLATZ), zahlreiche Einkaufsmöglichkeiten (LANDSTRASSE und PROMENADE) und Freizeitangebote sind bequem zu Fuß erreichbar. Der Linzer Schlosspark, ideal für eine erholsame Pause, liegt nur 300 Meter entfernt.
Ein Standort mit unverwechselbarem Potenzial – bereit für Ihre erfolgreiche Praxis!
KONDITIONEN:
- Mietkosten monatl. brutto: € 662,25
- Betriebskosten-Akonto monatl. brutto: € 87,75
= GESAMTMIETE monatl. brutto: € 750,00 (inkl. Betriebskosten; exkl. Heizung und Strom)
Die monatlichen Kosten für Heizung und Strom werden je nach Verbrauch direkt mit dem Versorgungsunternehmen abgerechnet.
Kaution: 4.500,00€
Wir freuen uns auf Ihre Anfrage!
Entdecken Sie dieses und weitere spannende Immobilienangebote auf unserer Homepage unter www.nextimmobilien.at!
Unverbindliches, freibleibendes Angebot. Informationen nach bestem Wissen und Gewissen vom Abgeber erhalten - für die Richtigkeit wird keine Haftung übernommen. Mündliche Nebenabreden zum angebotenen Objekt bedürfen zu Ihrer Wirksamkeit der Schriftform. Für sämtliche behördliche Genehmigungen und Auflagen hat die MieterIn selbst Sorge zu tragen. Irrtümer, Druckfehler und Änderungen vorbehalten. Besichtigungen und Beratungen erfolgen kostenlos, lediglich im Falle einer erfolgreichen Vermittlungstätigkeit ist die gesetzliche bzw. angeführte Provision in Höhe von 3 Bruttomonatsmiete zzgl. 20% USt. zur Zahlung fällig. Der Vermittler ist als Doppelmakler tätig.
Information zum Datenschutz unter www.nextimmobilien.at/datenschutz
Infrastruktur / Entfernungen
Gesundheit
Arzt <500m
Apotheke <500m
Klinik <500m
Krankenhaus <1.000m
Kinder & Schulen
Kindergarten <1.000m
Schule <500m
Universität <500m
Höhere Schule <1.000m
Nahversorgung
Supermarkt <500m
Bäckerei <500m
Einkaufszentrum <500m
Sonstige
Bank <500m
Geldautomat <500m
Post <1.000m
Polizei <500m
Verkehr
Bus <500m
Straßenbahn <500m
Bahnhof <1.000m
Autobahnanschluss <1.500m
Flughafen <4.000m
Angaben Entfernung Luftlinie / Quelle: OpenStreetMap
Objektdaten
Ausstattung
- Barrierefrei
- Einbauküche
- Etage Heizung
- Befeuerung mit Gas
- Personen Fahrstuhl
Zustand
- Zustand
- VOLL_SANIERT
- Alter
- ALTBAU
- HWB
- 65 kWh/m² pro Jahr
- Klasse HWB
- C
Flächen
- Anzahl der Zimmer
- 1
- Anzahl der sep. WCs
- 3
- Nutzfläche
- 16m²
Kosten
- Kaution
- € 4.500,00
- Miete
- € 662,25
- Betriebskosten
- € 87,75
Verwaltung
- Verfügbar ab
- nach Vereinbarung
Büros zum Mieten in Österreich
Büros zum Mieten in Österreich
Andere Besucher suchen nach...
- Grundstücke kaufen in 3400 Weidlingbach
- Wohnungen kaufen in 4663 Laakirchen
- Häuser in 7471 Rechnitz
- Wohnungen in 2410 Hainburg an der Donau
- Häuser kaufen in 2432 Schwadorf
- Wohnungen kaufen in 3002 Purkersdorf
- Häuser in 3150 Wilhelmsburg
- Wohnungen kaufen in 3470 Engelmannsbrunn
- Grundstücke kaufen im Bezirk Mattersburg
- Grundstücke kaufen im Bezirk Gmunden