Moderne Büroeinheit in zentraler Lage in Linz/Urfahr zu vermieten!
-
01.06.2026
Beschreibung
Klimatisierte Bürofläche in Linz/Urfahr zu vermieten!
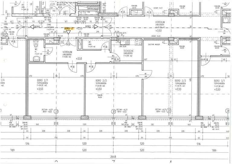
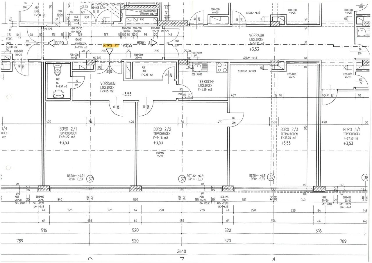
Diese ca. 102,35 m² große Büroeinheit im ersten Obergeschoss überzeugt durch ihre helle, freundliche Atmosphäre und eine funktionale Raumaufteilung. Sie ist kurzfristig verfügbar und bietet sich somit sowohl für Eigennutzer als auch für Anleger an.
Das Büro wird unmöbliert übergeben und ermöglicht somit eine individuelle Gestaltung ganz nach Ihren Anforderungen. Die Aufteilung in drei gut nutzbare Büroräume, ergänzt durch einen Empfangsbereich, eine separate Küche, ein WC, einen Abstellraum sowie einen eigenen Serverraum schafft optimale Voraussetzungen für unterschiedlichste Nutzungskonzepte, etwa als Kanzlei, Arzt- oder Therapiepraxis oder Unternehmensbüro.
Dank dieser Flexibilität eignet sich die Einheit sowohl...
Klimatisierte Bürofläche in Linz/Urfahr zu vermieten!
Diese ca. 102,35 m² große Büroeinheit im ersten Obergeschoss überzeugt durch ihre helle, freundliche Atmosphäre und eine funktionale Raumaufteilung. Sie ist kurzfristig verfügbar und bietet sich somit sowohl für Eigennutzer als auch für Anleger an.
Das Büro wird unmöbliert übergeben und ermöglicht somit eine individuelle Gestaltung ganz nach Ihren Anforderungen. Die Aufteilung in drei gut nutzbare Büroräume, ergänzt durch einen Empfangsbereich, eine separate Küche, ein WC, einen Abstellraum sowie einen eigenen Serverraum schafft optimale Voraussetzungen für unterschiedlichste Nutzungskonzepte, etwa als Kanzlei, Arzt- oder Therapiepraxis oder Unternehmensbüro.
Dank dieser Flexibilität eignet sich die Einheit sowohl zur sofortigen Eigennutzung als auch als interessante Anlageimmobilie mit Vermietungspotenzial.
Ein besonderes Highlight ist die prominente Werbefläche an der Gebäudefront. Sie bietet Ihrem Unternehmen eine hohe Sichtbarkeit und starke Außenwirkung – ein klarer Vorteil für Kundenfrequenz und Markenpräsenz.
Für zusätzlichen Komfort sorgt die vorhandene Klimaanlage, die ein angenehmes Arbeitsklima gewährleistet. Der einladende Empfangsbereich unterstreicht zudem den professionellen Charakter der Einheit und sorgt für einen überzeugenden ersten Eindruck.
In unmittelbarer Umgebung befinden sich Tiefgaragenstellplätze, die bei Bedarf angemietet werden können. Die Tiefgaragenstellplätze befinden sich in der Grünmarkt-Tiefgarage. Der Tagesmaximaltarif (07:00–20:00 Uhr) beträgt € 15,50. Weitere Parkprodukte, wie beispielsweise Wochen- oder Dauerparkkarten, sind direkt bei der Parkgarage am Grünmarkt anzufragen.
Die Lage in der Rudolfstraße punktet mit einer hervorragenden Infrastruktur: Öffentliche Verkehrsmittel wie Straßenbahn und Bus sind in wenigen Gehminuten erreichbar. Zudem befinden sich in unmittelbarer Umgebung Tiefgaragenstellplätze, die bei Bedarf angemietet werden können.
KONDITIONEN:
- Hauptmietzins monatl. netto: € 1.023,50 zzgl. 20% USt
- Betriebskosten-Akonto monatl. netto: € 227,24 zzgl. 20% USt (exkl. Heizung, Strom)
- Wasserkosten-Akonto monatl. netto: € 39,56 zzgl. 20% USt
Die monatlichen Heiz- und Stromkosten werden je nach Verbrauch direkt vom Versorgungsunternehmen abgerechnet.
Im Preis inkludiert ist eine Werbetafel, welche sich auf der Vorderseite des Gebäudes befindet.
Kaution: 3 Bruttomonatsmieten
Wir freuen uns über Ihre Anfrage!
Entdecken Sie dieses und weitere spannende Immobilienangebote auf unserer Homepage unter www.nextimmobilien.at!
Unverbindliches, freibleibendes Angebot. Informationen nach bestem Wissen und Gewissen vom Abgeber erhalten - für die Richtigkeit wird keine Haftung übernommen. Mündliche Nebenabreden zum angebotenen Objekt bedürfen zu Ihrer Wirksamkeit der Schriftform.
Für sämtliche behördliche Genehmigungen und Auflagen hat die MieterIn selbst Sorge zu tragen.
Irrtümer, Druckfehler und Änderungen vorbehalten. Besichtigungen und Beratungen erfolgen kostenlos, lediglich im Falle einer erfolgreichen Vermittlungstätigkeit ist die gesetzliche bzw. angeführte Provision in Höhe von 3 Bruttomonatsmieten zzgl. 20% USt. zur Zahlung fällig. Es besteht zwischen dem Vermittler und dem Abgeber ein wirtschaftliches Naheverhältnis. Der Vermittler ist als Doppelmakler tätig.
Information zum Datenschutz unter www.nextimmobilien.at/datenschutz
Infrastruktur / Entfernungen
Gesundheit
Arzt <500m
Apotheke <500m
Klinik <1.000m
Krankenhaus <1.500m
Kinder & Schulen
Schule <500m
Kindergarten <500m
Universität <500m
Höhere Schule <1.500m
Nahversorgung
Supermarkt <500m
Bäckerei <500m
Einkaufszentrum <500m
Sonstige
Bank <500m
Geldautomat <500m
Post <500m
Polizei <500m
Verkehr
Bus <500m
Straßenbahn <500m
Bahnhof <500m
Autobahnanschluss <1.500m
Flughafen <4.500m
Angaben Entfernung Luftlinie / Quelle: OpenStreetMap
Objektdaten
Ausstattung
- Klimatisiert
- Barrierefrei
- Einbauküche
- Fernwärme Heizung
- Personen Fahrstuhl
Zustand
- HWB
- 90.8 kWh/m² pro Jahr
- Klasse HWB
- C
Flächen
- Anzahl der Zimmer
- 3
- Anzahl der sep. WCs
- 1
- Nutzfläche
- 102m²
Kosten
- Gesamtmiete Brutto
- € 1.500,89
- Miete
- € 1.023,50
- Betriebskosten
- € 227,24
- Umsatzsteuer
- € 250,15
Verwaltung
- Verfügbar ab
- 01.06.2026, ab 01. 06. 2026
Büros zum Mieten in Österreich
Büros zum Mieten in Österreich
Büros zum Mieten in Österreich
Andere Besucher suchen nach...
- Grundstücke kaufen in 3400 Weidlingbach
- Wohnungen kaufen in 4663 Laakirchen
- Häuser in 7471 Rechnitz
- Wohnungen in 2410 Hainburg an der Donau
- Häuser kaufen in 2432 Schwadorf
- Wohnungen kaufen in 3002 Purkersdorf
- Häuser in 3150 Wilhelmsburg
- Wohnungen kaufen in 3470 Engelmannsbrunn
- Grundstücke kaufen im Bezirk Mattersburg
- Grundstücke kaufen im Bezirk Gmunden