Modernes 2-Zimmerbüro in der Lederfabrik
Beschreibung
Diese charmante Büro- oder Praxisfläche in der 2. Etage eines historischen Fabrikgebäudes.
Das Büro überzeugt durch eine geräumige Zimmeraufteilung und ein freundliches Ambiente, also ideale Voraussetzungen um Kunden zu empfangen.
Die Heiz-und Stromkosten werden vom Vermieter bzw. der Hausverwaltung vorgeschrieben und abgerechnet. Es sind ausreichend Parkplätze für Sie und Ihre Kunden vorhanden.
Dieses Objekt bietet die Möglichkeit an einem einzigartigen Standort Fuß zu fassen und sich im Linzer Geschäftsraum zu etablieren
Wir weisen darauf hin, dass zwischen dem Vermittler und dem zu vermittelnden Dritten ein familiäres oder wirtschaftliches Naheverhältnis besteht.
Der Vermittler ist als Doppelmakler tätig.
Infrastruktur...
Diese charmante Büro- oder Praxisfläche in der 2. Etage eines historischen Fabrikgebäudes.
Das Büro überzeugt durch eine geräumige Zimmeraufteilung und ein freundliches Ambiente, also ideale Voraussetzungen um Kunden zu empfangen.
Die Heiz-und Stromkosten werden vom Vermieter bzw. der Hausverwaltung vorgeschrieben und abgerechnet. Es sind ausreichend Parkplätze für Sie und Ihre Kunden vorhanden.
Dieses Objekt bietet die Möglichkeit an einem einzigartigen Standort Fuß zu fassen und sich im Linzer Geschäftsraum zu etablieren
Wir weisen darauf hin, dass zwischen dem Vermittler und dem zu vermittelnden Dritten ein familiäres oder wirtschaftliches Naheverhältnis besteht.
Der Vermittler ist als Doppelmakler tätig.
Infrastruktur / Entfernungen
Gesundheit
Arzt <25m
Apotheke <2.400m
Krankenhaus <5.575m
Klinik <3.875m
Kinder & Schulen
Schule <2.250m
Kindergarten <1.600m
Universität <2.975m
Höhere Schule <2.775m
Nahversorgung
Supermarkt <2.275m
Bäckerei <2.050m
Einkaufszentrum <3.575m
Sonstige
Bank <2.325m
Geldautomat <2.325m
Post <2.525m
Polizei <3.275m
Verkehr
Bus <525m
Straßenbahn <2.375m
Bahnhof <3.450m
Autobahnanschluss <3.400m
Flughafen <7.175m
Angaben Entfernung Luftlinie / Quelle: OpenStreetMap
Objektdaten
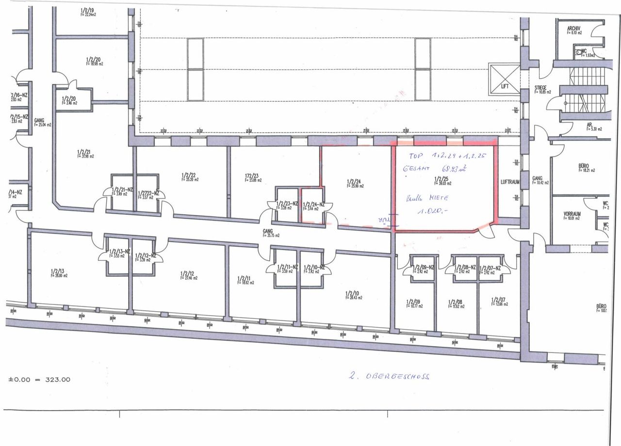
Flächen
- Anzahl der Zimmer
- 2
- Nutzfläche
- 69m²
Kosten
- Gesamtmiete Brutto
- € 1.276,42
- Miete
- € 850,00
- Betriebskosten
- € 213,68
- Umsatzsteuer
- € 212,74
Verwaltung
- Mietdauer
- bis 5,0 Jahre
Büros zum Mieten in Österreich
Büros zum Mieten in Österreich
Büros zum Mieten in Österreich
Andere Besucher suchen nach...
- Grundstücke kaufen in 3400 Weidlingbach
- Wohnungen kaufen in 4663 Laakirchen
- Häuser in 7471 Rechnitz
- Wohnungen in 2410 Hainburg an der Donau
- Häuser kaufen in 2432 Schwadorf
- Wohnungen kaufen in 3002 Purkersdorf
- Häuser in 3150 Wilhelmsburg
- Wohnungen kaufen in 3470 Engelmannsbrunn
- Grundstücke kaufen im Bezirk Mattersburg
- Grundstücke kaufen im Bezirk Gmunden