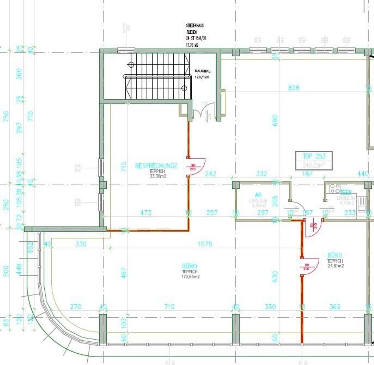
Bürofläche (240m²) wird saniert übergeben- ab sofort zu mieten im IKANO OFFICE PARK 2351 Wiener Neudorf - 253
-
sofort
Beschreibung
Der zwischen 1992 - 1997 errichtete und 2020 - 2021 modernisierte IKANO OFFICE PARK besteht aus zwei Baukörpern, die durch einen Verbindungstrakt miteinander verbunden sind. Das Objekt am Rande des Industriezentrums Wien Süd bietet auf sieben Etagen 11.600 m² flexible Büroflächen sowie 338 Pkw-Stellplätze, davon 81 in der hauseigenen Tiefgarage. Für den Individualverkehr ist der IKANO OFFICE PARK über die am Objekt vorbeiführende B 17 sowie die nur 500 m entfernte Südautobahn A2 bestens erreichbar. Die öffentliche Verkehrsanbindung erfolgt primär über die Wiener Lokalbahn (Badner Bahn), deren Station „Griesfeld“ unmittelbar beim Objekt liegt.
Derzeit noch unsaniert und wird nach Absprache...
Der zwischen 1992 - 1997 errichtete und 2020 - 2021 modernisierte IKANO OFFICE PARK besteht aus zwei Baukörpern, die durch einen Verbindungstrakt miteinander verbunden sind. Das Objekt am Rande des Industriezentrums Wien Süd bietet auf sieben Etagen 11.600 m² flexible Büroflächen sowie 338 Pkw-Stellplätze, davon 81 in der hauseigenen Tiefgarage. Für den Individualverkehr ist der IKANO OFFICE PARK über die am Objekt vorbeiführende B 17 sowie die nur 500 m entfernte Südautobahn A2 bestens erreichbar. Die öffentliche Verkehrsanbindung erfolgt primär über die Wiener Lokalbahn (Badner Bahn), deren Station „Griesfeld“ unmittelbar beim Objekt liegt.
Derzeit noch unsaniert und wird nach Absprache mit Ihnen saniert an Sie übergeben !
Hinweis gemäß Energieausweisvorlagegesetz: Ein Energieausweis wurde vom Eigentümer bzw. Verkäufer, nach unserer Aufklärung über die generell geltende Vorlagepflicht, sowie Aufforderung zu seiner Erstellung noch nicht vorgelegt. Daher gilt zumindest eine dem Alter und der Art des Gebäudes entsprechende Gesamtenergieeffizienz als vereinbart. Wir übernehmen keinerlei Gewähr oder Haftung für die tatsächliche Energieeffizienz der angebotenen Immobilie.
Infrastruktur / Entfernungen
Gesundheit
Arzt <500m
Apotheke <750m
Krankenhaus <1.750m
Klinik <2.250m
Kinder & Schulen
Kindergarten <500m
Schule <1.250m
Höhere Schule <1.750m
Nahversorgung
Supermarkt <250m
Bäckerei <1.000m
Einkaufszentrum <1.000m
Sonstige
Bank <1.000m
Geldautomat <1.000m
Post <250m
Polizei <1.000m
Verkehr
Bus <250m
U-Bahn <5.750m
Bahnhof <250m
Straßenbahn <3.750m
Autobahnanschluss <1.750m
Angaben Entfernung Luftlinie / Quelle: OpenStreetMap
Objektdaten
Ausstattung
- Barrierefrei
- Teppichboden
- Linoleumboden
- Etage Heizung
- Personen Fahrstuhl
- Lasten Fahrstuhl
- Flachdach
- Klimatisiert
Zustand
- Zustand
- MODERNISIERT
- Baujahr
- 1997
- Alter
- NEUBAU
Flächen
- Anzahl der Zimmer
- 3
- Nutzfläche
- 240m²
- Bürofläche
- 240m²
Kosten
- Gesamtmiete Brutto
- € 4.151,57
- Miete
- € 2.160,00
- Betriebskosten
- € 1.299,64
- Heizkosten
- € 137,28
- Umsatzsteuer
- € 719,39
Verwaltung
- Verfügbar ab
- sofort
Büros zum Mieten im Umkreis von Wiener Neudorf
Büros zum Mieten im Umkreis von Wiener Neudorf
Büros zum Mieten in Österreich
Andere Besucher suchen nach...
- Grundstücke kaufen in 3400 Weidlingbach
- Wohnungen kaufen in 4663 Laakirchen
- Häuser in 7471 Rechnitz
- Wohnungen in 2410 Hainburg an der Donau
- Häuser kaufen in 2432 Schwadorf
- Wohnungen kaufen in 3002 Purkersdorf
- Häuser in 3150 Wilhelmsburg
- Wohnungen kaufen in 3470 Engelmannsbrunn
- Grundstücke kaufen im Bezirk Mattersburg
- Grundstücke kaufen im Bezirk Gmunden