Moderne Gewerbefläche in Wiener Neudorf
Beschreibung
Sie suchen nach einem modernen und repräsentativen Büro, der sowohl zentral gelegen als auch gut erreichbar ist? Dann haben wir genau das Richtige für Sie! Das Bürogebäude befindet sich in der idyllischen Stadt Wiener Neudorf im schönen Niederösterreich, welches Ihnen alle Vorteile eines idealen Arbeitsortes bietet.
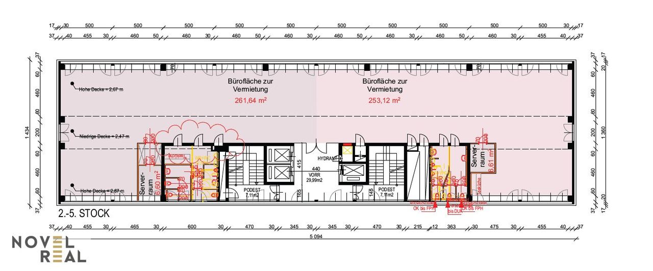
Das Büro umfasst insgesamt 253m². Hier haben Sie die Möglichkeit, Ihre Geschäftsideen in einem modernen und professionellen Umfeld umzusetzen. Es besteht ebenfalls die Möglichkeit nur die Hälfte der Fläche anzumieten.
Zusätzlich verfügt der Standort über ausreichend Parkplätze für Sie und Ihre Kunden. Somit wird auch die Parkplatzsuche zum Kinderspiel und Sie können sich voll...
Sie suchen nach einem modernen und repräsentativen Büro, der sowohl zentral gelegen als auch gut erreichbar ist? Dann haben wir genau das Richtige für Sie! Das Bürogebäude befindet sich in der idyllischen Stadt Wiener Neudorf im schönen Niederösterreich, welches Ihnen alle Vorteile eines idealen Arbeitsortes bietet.
Das Büro umfasst insgesamt 253m². Hier haben Sie die Möglichkeit, Ihre Geschäftsideen in einem modernen und professionellen Umfeld umzusetzen. Es besteht ebenfalls die Möglichkeit nur die Hälfte der Fläche anzumieten.
Zusätzlich verfügt der Standort über ausreichend Parkplätze für Sie und Ihre Kunden. Somit wird auch die Parkplatzsuche zum Kinderspiel und Sie können sich voll und ganz auf Ihr Geschäft konzentrieren.
Die Räume befinden sich derzeit im Rohbauzustand. Die Raumgestaltung bleibt flexibel.
Der Mieter kann die Bürofläche auf eigene Kosten und nach eigenen Vorstellungen selbst fertigstellen.
- Der Nettomietpreis im unrenovierten Zustand beträgt EUR 2.531,20 zzgl. BK und MwSt.
Büroflächen, pro Stockwerk 514,76m²:
- 2.OG Büro verfügbar
- 3.OG Büro verfügbar
- 4.OG Büro verfügbar
- 5.OG Büro verfügbar
Doch nicht nur die Immobilie selbst ist überzeugend, auch die Lage ist ein wahrer Pluspunkt. Die Verkehrsanbindung ist optimal, sowohl mit dem Auto als auch mit öffentlichen Verkehrsmitteln. Eine Bushaltestelle befindet sich direkt vor der Tür und der Bahnhof ist nur wenige Gehminuten entfernt. Auch der Autobahnanschluss ist schnell und bequem zu erreichen, wodurch Sie und Ihre Kunden eine unkomplizierte Anreise haben. Überzeugt? Dann zögern Sie nicht und vereinbaren Sie noch heute einen Besichtigungstermin.
Infrastruktur / Entfernungen
Gesundheit
Arzt <1.000m
Apotheke <1.000m
Klinik <3.000m
Krankenhaus <2.000m
Kinder & Schulen
Schule <1.000m
Kindergarten <1.000m
Höhere Schule <3.500m
Universität <9.000m
Nahversorgung
Supermarkt <1.000m
Bäckerei <1.000m
Einkaufszentrum <1.000m
Sonstige
Bank <1.000m
Geldautomat <1.000m
Post <1.000m
Polizei <1.000m
Verkehr
Bus <500m
U-Bahn <4.500m
Straßenbahn <5.500m
Bahnhof <1.000m
Autobahnanschluss <500m
Angaben Entfernung Luftlinie / Quelle: OpenStreetMap
Objektdaten
Zustand
- Alter
- NEUBAU
- HWB
- 105 kWh/m² pro Jahr
- Klasse HWB
- D
Flächen
- Bürofläche
- 253m²
Kosten
- Miete
- € 2.531,20
Verwaltung
- Verfügbar ab
- Nach Vereinbarung
- Mietdauer
- bis 10,0 Jahre
Büros zum Mieten im Umkreis von Wiener Neudorf
Büros zum Mieten im Umkreis von Wiener Neudorf
Büros zum Mieten in Österreich
Andere Besucher suchen nach...
- Grundstücke kaufen in 3400 Weidlingbach
- Wohnungen kaufen in 4663 Laakirchen
- Häuser in 7471 Rechnitz
- Wohnungen in 2410 Hainburg an der Donau
- Häuser kaufen in 2432 Schwadorf
- Wohnungen kaufen in 3002 Purkersdorf
- Häuser in 3150 Wilhelmsburg
- Wohnungen kaufen in 3470 Engelmannsbrunn
- Grundstücke kaufen im Bezirk Mattersburg
- Grundstücke kaufen im Bezirk Gmunden