Knittelfeld: Vielseitig nutzbare Liegenschaft mit 10 Räumen – ideal für Büro, Praxis oder Therapiezentrum
Beschreibung
Ehemalige Büroliegenschaft / frühere physiotherapeutische Einrichtung
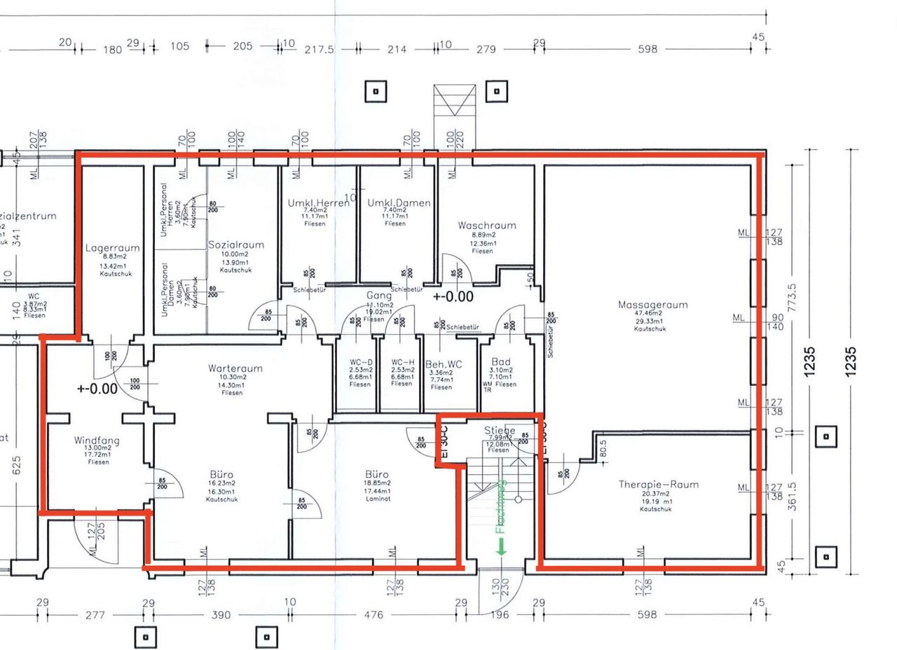
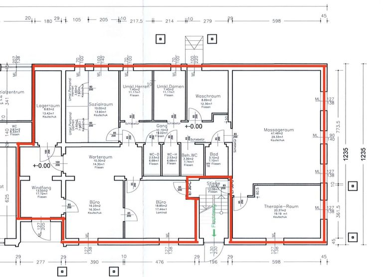
Nutzfläche: ca. 197 m² Zimmeranzahl: 10 flexibel nutzbare Räume Besonderheiten: Gemeinschaftsraum, Handwaschbecken in mehreren Räumen, Serverraum, barrierefreies WC
Ihre neue Wirkungsstätte – funktional & wandelbar
Diese großzügige Liegenschaft bietet ideale Voraussetzungen für zahlreiche Nutzungsmöglichkeiten: ob als Praxiszentrum, Bürofläche, Bildungseinrichtung oder Therapiehaus – hier können individuelle Konzepte umgesetzt werden. Die vielseitige Raumaufteilung erlaubt Einzel- oder Teamnutzung sowie Kombinationen aus offenen und geschlossenen Arbeitsbereichen.
Raumaufteilung im Überblick
-
10 individuell nutzbare Räume – auch kombinierbar für Großraumbüros oder Gruppenbereiche
-
Mehrere Räume mit Handwaschbecken – optimal für medizinische oder...
Ehemalige Büroliegenschaft / frühere physiotherapeutische Einrichtung
Nutzfläche: ca. 197 m²
Zimmeranzahl: 10 flexibel nutzbare Räume
Besonderheiten: Gemeinschaftsraum, Handwaschbecken in mehreren Räumen, Serverraum, barrierefreies WC
Ihre neue Wirkungsstätte – funktional & wandelbar
Diese großzügige Liegenschaft bietet ideale Voraussetzungen für zahlreiche Nutzungsmöglichkeiten: ob als Praxiszentrum, Bürofläche, Bildungseinrichtung oder Therapiehaus – hier können individuelle Konzepte umgesetzt werden. Die vielseitige Raumaufteilung erlaubt Einzel- oder Teamnutzung sowie Kombinationen aus offenen und geschlossenen Arbeitsbereichen.
Raumaufteilung im Überblick
10 individuell nutzbare Räume – auch kombinierbar für Großraumbüros oder Gruppenbereiche
Mehrere Räume mit Handwaschbecken – optimal für medizinische oder therapeutische Anforderungen
Großzügiger Gemeinschaftsraum – ideal als Aufenthalts-, Besprechungs- oder Seminarraum
Separater Serverraum für IT-Infrastruktur
Damen- und Herren-WCs sowie ein barrierefreies, rollstuhlgerechtes WC
Nutzungsideen & Entwicklungsmöglichkeiten
Praxisgemeinschaft oder Therapiezentrum
Einzel- oder Gruppenordinationen
Bürogemeinschaft für Start-ups, Steuerberater, Architekten, etc.
Schulungsräume oder Bildungszentrum (z. B. für Sprachkurse oder Erwachsenenbildung)
Kombination aus Kundenempfang vorne und Verwaltung im rückwärtigen Bereich
Ihre Vorteile auf einen Blick
Bestehende Infrastruktur für Gesundheits- und Bürobereiche
Barrierefreier Zugang und behindertengerechtes WC
Serverraum und moderne EDV-Vorbereitung
Lichtdurchflutete Räume mit guter Belichtung
Zentrale Lage mit idealer Verkehrsanbindung und hoher Sichtbarkeit
Hohe Flexibilität bei Raumaufteilung und Gestaltung
Hinweis gemäß Energieausweisvorlagegesetz: Ein Energieausweis wurde vom Eigentümer bzw. Verkäufer, nach unserer Aufklärung über die generell geltende Vorlagepflicht, sowie Aufforderung zu seiner Erstellung noch nicht vorgelegt. Daher gilt zumindest eine dem Alter und der Art des Gebäudes entsprechende Gesamtenergieeffizienz als vereinbart. Wir übernehmen keinerlei Gewähr oder Haftung für die tatsächliche Energieeffizienz der angebotenen Immobilie.
Der Vermittler ist als Doppelmakler tätig.
Infrastruktur / Entfernungen
Gesundheit
Arzt <750m
Apotheke <1.000m
Krankenhaus <1.000m
Kinder & Schulen
Schule <1.000m
Kindergarten <500m
Nahversorgung
Supermarkt <500m
Bäckerei <1.250m
Einkaufszentrum <5.250m
Sonstige
Bank <500m
Geldautomat <500m
Post <1.250m
Polizei <1.750m
Verkehr
Bus <500m
Autobahnanschluss <1.750m
Bahnhof <2.000m
Flughafen <5.750m
Angaben Entfernung Luftlinie / Quelle: OpenStreetMap
Objektdaten
Ausstattung
- Fliesenboden
- Kunststoffboden
Flächen
- Anzahl der sep. WCs
- 3
- Nutzfläche
- 197m²
Kosten
- Gesamtmiete Brutto
- € 2.067,13
- Miete
- € 990,67
- Betriebskosten
- € 333,65
- Heizkosten
- € 161,60
- Sonstige Kosten
- € 398,29
- Umsatzsteuer
- € 376,84
Büros zum Mieten im Umkreis von Knittelfeld
Büros zum Mieten im Umkreis von Knittelfeld
Büros zum Mieten in Österreich
Andere Besucher suchen nach...
- Grundstücke kaufen in 3400 Weidlingbach
- Wohnungen kaufen in 4663 Laakirchen
- Häuser in 7471 Rechnitz
- Wohnungen in 2410 Hainburg an der Donau
- Häuser kaufen in 2432 Schwadorf
- Wohnungen kaufen in 3002 Purkersdorf
- Häuser in 3150 Wilhelmsburg
- Wohnungen kaufen in 3470 Engelmannsbrunn
- Grundstücke kaufen im Bezirk Mattersburg
- Grundstücke kaufen im Bezirk Gmunden