Große Büroeinheit über zwei Etagen mit moderner Ausstattung in Pinsdorf zu mieten!
Beschreibung
Große Büroeinheit über zwei Etagen mit moderner Ausstattung in Pinsdorf zu mieten!
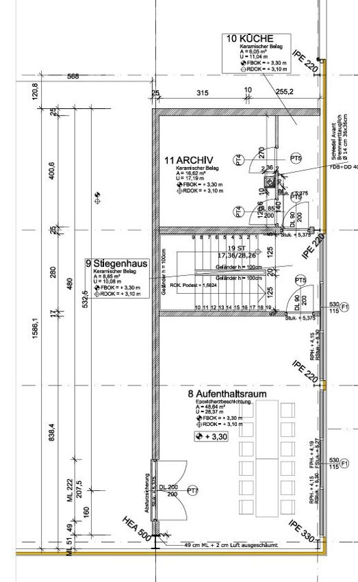
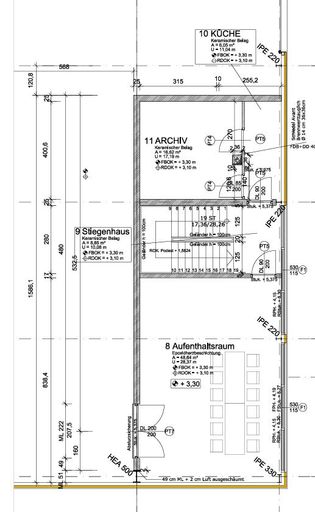
In Pinsdorf gelangt eine attraktive Büroeinheit zur Vermietung, die sowohl ein Büro im Erdgeschoss mit 48,64 m² als auch ein Büro im Obergeschoss mit 71,31 m² inklusive integrierter Küche umfasst. Die Kombination beider Flächen bietet flexible Nutzungsmöglichkeiten und eignet sich ideal für Unternehmen, die getrennte Arbeits- und Besprechungsbereiche benötigen oder eine Aufteilung nach Abteilungen wünschen.
Das Büro im Erdgeschoss ist hell und funktional geschnitten und kann optimal für Verwaltung, Empfang oder Kundenkontakt genutzt werden. Das Obergeschoss-Büro überzeugt durch einen großzügigen Schnitt und die integrierte Küche, die als Pausen-...
Große Büroeinheit über zwei Etagen mit moderner Ausstattung in Pinsdorf zu mieten!
In Pinsdorf gelangt eine attraktive Büroeinheit zur Vermietung, die sowohl ein Büro im Erdgeschoss mit 48,64 m² als auch ein Büro im Obergeschoss mit 71,31 m² inklusive integrierter Küche umfasst. Die Kombination beider Flächen bietet flexible Nutzungsmöglichkeiten und eignet sich ideal für Unternehmen, die getrennte Arbeits- und Besprechungsbereiche benötigen oder eine Aufteilung nach Abteilungen wünschen.
Das Büro im Erdgeschoss ist hell und funktional geschnitten und kann optimal für Verwaltung, Empfang oder Kundenkontakt genutzt werden. Das Obergeschoss-Büro überzeugt durch einen großzügigen Schnitt und die integrierte Küche, die als Pausen- oder Besprechungsbereich dient und den Arbeitsalltag komfortabel gestaltet. Sanitäre Einrichtungen für Damen und Herren befinden sich in der Gewerbehalle und stehen den Mietern beider Büros zur Verfügung.
Für Mitarbeiter und Besucher sind ausreichend Parkplätze vorhanden, die eine unkomplizierte An- und Abfahrt ermöglichen. Die Beheizung des Gebäudes erfolgt über eine zentrale Gasheizung.
Die Betriebskosten sind transparent gestaltet und beinhalten Wasser- und Kanalgebühren, Rauchfangkehrer, Zählermiete für Wasser, anteiligen Strom und Heizung nach Quadratmeterschlüssel, regelmäßige Überprüfungen der Feuerlöscher sowie der Hallen- und Zufahrtstore, Schneeräumungen, Grünanlagenpflege, Parkplatzreinigung, Grundsteuer, Gebäudeversicherung und die Reinigung der Allgemeinflächen.
Zusätzlich können bei Bedarf verschiedene Dienstleistungen direkt über den Vermieter in Anspruch genommen werden, darunter Lagerarbeiten, Stapler- und Traktorarbeiten, Winterdienste oder Transportleistungen mit einem E-Citan. Dies ermöglicht eine flexible Reaktion auf kurzfristige betriebliche Anforderungen. Die detaillierte Preisliste entnehmen Sie bitte dem Anhang.
Lage
Die Lage in Pinsdorf überzeugt durch ihre zentrale und verkehrsgünstige Position. Die Nähe zu Gmunden sowie die gute Anbindung an das regionale und überregionale Straßennetz machen die Liegenschaft sowohl für Mitarbeiter und Kunden als auch für Lieferanten besonders attraktiv.
Sie haben Interesse?
Ansehen lohnt sich - wir freuen uns über Ihr Interesse! Für weitere Fragen stehen wir Ihnen gerne unter der Rufnummer 0664 398 34 62 zur Verfügung. Auf Wunsch stellen wir gerne einen Kontakt zu Finanzierungsexperten her.
Rechtliche Informationen
Bitte beachten Sie, dass wir aufgrund unserer ALLEINBEAUFTRAGUNG und Nachweispflicht für den Abgeber ausschließlich Anfragen unter Angabe Ihrer VOLLSTÄNDIGEN DATEN bearbeiten können (NAME, ANSCHRIFT, E-MAIL, TELEFONNUMMER).
Explizit weisen wir darauf hin, dass alle Angaben nach bestem Wissen erstellt wurden. Irrtümer, Druckfehler und Änderungen vorbehalten.
Für Auskünfte und Angaben, die uns von Seiten der Eigentümer und Dritten zur Verfügung gestellt wurden, können wir keine Haftung übernehmen. Besichtigungen und Beratungen erfolgen kostenlos, lediglich im Falle einer erfolgreichen Vermittlung ist die gesetzliche Provision zur Zahlung fällig.
Der Immobilienmakler erklärt, dass er - entgegen dem in der Immobilienwirtschaft üblichen Geschäftsgebrauch den Doppelmaklers - einseitig nur für den Vermieter tätig ist.
Haben Sie die richtige Immobilie noch nicht gefunden?
Dann registriere dich hier: https://girkinger-immobilien.at/suchagent/#section-2-113717
Der Vermittler ist als Doppelmakler tätig.
Infrastruktur / Entfernungen
Gesundheit
Arzt <2.500m
Apotheke <2.500m
Krankenhaus <4.500m
Klinik <4.500m
Kinder & Schulen
Schule <3.000m
Kindergarten <3.000m
Höhere Schule <9.500m
Nahversorgung
Supermarkt <2.500m
Bäckerei <3.500m
Einkaufszentrum <4.000m
Sonstige
Bank <3.000m
Geldautomat <3.000m
Post <3.500m
Polizei <5.000m
Verkehr
Bus <500m
Straßenbahn <4.000m
Bahnhof <2.500m
Autobahnanschluss <1.500m
Flughafen <9.000m
Angaben Entfernung Luftlinie / Quelle: OpenStreetMap
Objektdaten
Ausstattung
- Einbauküche
- Befeuerung mit Gas
Zustand
- Baujahr
- 2008
- HWB
- 376.7 kWh/m² pro Jahr
- Klasse HWB
- G
Flächen
- Anzahl der Zimmer
- 2
- Anzahl der sep. WCs
- 2
- Nutzfläche
- 120m²
Kosten
- Gesamtmiete Brutto
- € 1.223,50
- Miete
- € 923,62
- Betriebskosten
- € 95,97
- Umsatzsteuer
- € 203,91
Verwaltung
- Mietdauer
- bis 3,0 Jahre
Büros zum Mieten im Umkreis von Pinsdorf
Büros zum Mieten im Umkreis von Pinsdorf
Büros zum Mieten in Österreich
Andere Besucher suchen nach...
- Grundstücke kaufen in 3400 Weidlingbach
- Wohnungen kaufen in 4663 Laakirchen
- Häuser in 7471 Rechnitz
- Wohnungen in 2410 Hainburg an der Donau
- Häuser kaufen in 2432 Schwadorf
- Wohnungen kaufen in 3002 Purkersdorf
- Häuser in 3150 Wilhelmsburg
- Wohnungen kaufen in 3470 Engelmannsbrunn
- Grundstücke kaufen im Bezirk Mattersburg
- Grundstücke kaufen im Bezirk Gmunden