Mitten im Herzen der Salzburger Altstadt verbindet dieses charmante Büro/Kanzlei/Ordination Historie & Moderne!
-
sofort
Beschreibung
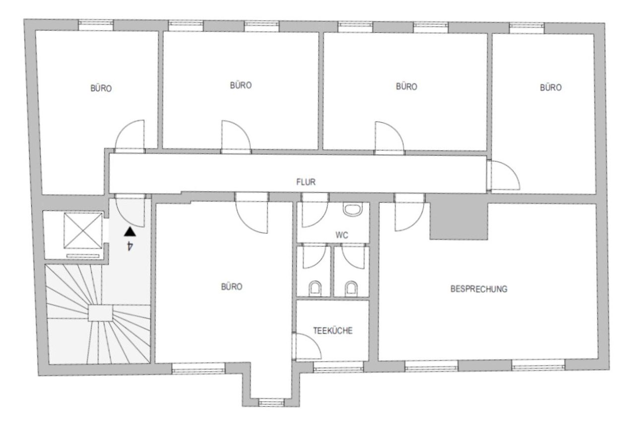
Büro / Kanzlei / Ordination mit Charakter und Funktion
Die Bürofläche liegt im 3. Obergeschoss (mit Lift) eines stilvollen Altstadthauses und überzeugt durch ein durchdachtes Raumkonzept und ist ideal für ein Büro / Kanzlei / Ordination:
- 6 getrennt begehbare Räume entlang eines zentralen Ganges
- 4 Räume mit Blick zur Straße, 2 großzügige Räume zum ruhigen Innenhof
- Adaptierungen sowie neue Bodenbeläge sind nach Rücksprache mit Vermieter möglich
- Sanitäreinheit mit 2 WCs und Waschgelegenheit
- Teeküche mit Kühlschrank und Herd
- Barrierefrei mit Lift
Attraktive Lage & perfekte Infrastruktur
Die Büroeinheit befindet...
Büro / Kanzlei / Ordination mit Charakter und Funktion
Die Bürofläche liegt im 3. Obergeschoss (mit Lift) eines stilvollen Altstadthauses und überzeugt durch ein durchdachtes Raumkonzept und ist ideal für ein Büro / Kanzlei / Ordination:
- 6 getrennt begehbare Räume entlang eines zentralen Ganges
- 4 Räume mit Blick zur Straße, 2 großzügige Räume zum ruhigen Innenhof
- Adaptierungen sowie neue Bodenbeläge sind nach Rücksprache mit Vermieter möglich
- Sanitäreinheit mit 2 WCs und Waschgelegenheit
- Teeküche mit Kühlschrank und Herd
- Barrierefrei mit Lift
Attraktive Lage & perfekte Infrastruktur
Die Büroeinheit befindet sich in absoluter Bestlage nahe dem Ferdinand-Hanusch-Platz – einem der zentralen Verkehrsknotenpunkte der Stadt.
- Parkmöglichkeiten: Die Altstadt- bzw. Mönchsberggarage liegt nur ca. 150 m entfernt
- Öffentliche Anbindung: In nur ca. 170 m erreichen Sie den Hanuschplatz mit optimaler Anbindung an sämtliche innerstädtische Buslinien
- Kulinarisches Umfeld: Zahlreiche Cafés, Restaurants und Lokale bieten ideale Möglichkeiten für den schnellen Business-Lunch oder das gepflegte Geschäftsessen
Fazit
Ein idealer Standort für Unternehmen, die Repräsentation, zentrale Lage und optimale Infrastruktur in der Salzburger Altstadt vereinen möchten.
Unverbindliches, freibleibendes Angebot. Informationen nach bestem Wissen und Gewissen vom Abgeber erhalten - für die Richtigkeit wird keine Haftung übernommen. Mündliche Nebenabreden zum angebotenen Objekt bedürfen zu Ihrer Wirksamkeit der Schriftform. Für sämtliche behördliche Genehmigungen und Auflagen hat die MieterIn selbst Sorge zu tragen. Irrtümer, Druckfehler und Änderungen vorbehalten. Besichtigungen und Beratungen erfolgen kostenlos, lediglich im Falle einer erfolgreichen Vermittlungstätigkeit ist die gesetzliche bzw. angeführte Provision in Höhe von 3 Bruttomonatsmieten zzgl. 20% USt. zur Zahlung fällig. Der Vermittler ist als Doppelmakler tätig. Es besteht zwischen dem Vermittler und dem Abgeber ein wirtschaftliches Naheverhältnis. Information zum Datenschutz unter www.nextimmobilien.at/datenschutz
Objektdaten
Ausstattung
- Zentralheizung
- Fernwärme Heizung
- Personen Fahrstuhl
Zustand
- Baujahr
- 1650
- Alter
- ALTBAU
- HWB
- 95.7 kWh/m² pro Jahr
- Klasse HWB
- C
- fGEE
- 1.81
- Klasse fGEE
- D
Flächen
- Anzahl der Zimmer
- 6
- Anzahl der sep. WCs
- 2
- Bürofläche
- 154m²
Kosten
- Gesamtmiete Brutto
- € 2.547,93
- Miete
- € 1.688,50
- Betriebskosten
- € 392,32
- Heizkosten
- € 165,98
- Sonstige Kosten
- € 42,46
- Umsatzsteuer
- € 457,85
Verwaltung
- Verfügbar ab
- sofort
- Mietdauer
- bis 10,0 Jahre
Büros zum Mieten in Österreich
Büros zum Mieten in Österreich
Büros zum Mieten in Österreich
Andere Besucher suchen nach...
- Grundstücke kaufen in 3400 Weidlingbach
- Wohnungen kaufen in 4663 Laakirchen
- Häuser in 7471 Rechnitz
- Wohnungen in 2410 Hainburg an der Donau
- Häuser kaufen in 2432 Schwadorf
- Wohnungen kaufen in 3002 Purkersdorf
- Häuser in 3150 Wilhelmsburg
- Wohnungen kaufen in 3470 Engelmannsbrunn
- Grundstücke kaufen im Bezirk Mattersburg
- Grundstücke kaufen im Bezirk Gmunden