Modernes Bürohaus mit flexibel gestaltbaren Großraumbüros im Industriepark St. Veit
€ 5.136 / Monat
€ 12 / m²
9300 St. Veit an der Glan
-
sofort
Beschreibung
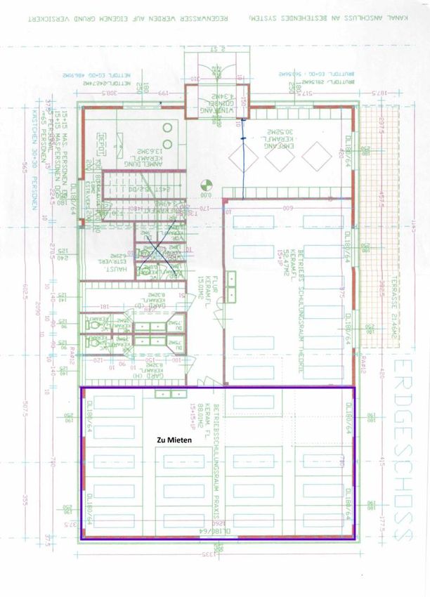
Im etablierten Industriepark St. Veit erwartet Sie ein helles und vielseitig nutzbares Bürohaus mit insgesamt 426 m² Nutzfläche, verteilt auf zwei Stockwerke. Die Immobilie eignet sich ideal für unterschiedlichste Geschäftsmodelle und überzeugt durch flexible Raumkonzepte. Raumaufteilung: Im Erdgeschoss befinden sich ein großzügiger Empfangsbereich sowie drei weitere Büroräume. Einer davon ist ein frei gestaltbares Großraumbüro, das unterschiedlichsten Anforderungen angepasst werden kann. Im Obergeschoss finden Sie eine Küche sowie vier Büros – auch hier ist eines davon ein großes, offen gestaltbares Büro, das flexibel nutzbar ist. Auf beiden Etagen stehen jeweils zwei moderne Badezimmer mit Dusche und WC zur Verfügung. Vielfältige Nutzungsmöglichkeiten:...
Im etablierten Industriepark St. Veit erwartet Sie ein helles und vielseitig nutzbares Bürohaus mit insgesamt 426 m² Nutzfläche, verteilt auf zwei Stockwerke. Die Immobilie eignet sich ideal für unterschiedlichste Geschäftsmodelle und überzeugt durch flexible Raumkonzepte.
Raumaufteilung:
Im Erdgeschoss befinden sich ein großzügiger Empfangsbereich sowie drei weitere Büroräume. Einer davon ist ein frei gestaltbares Großraumbüro, das unterschiedlichsten Anforderungen angepasst werden kann.
Im Obergeschoss finden Sie eine Küche sowie vier Büros – auch hier ist eines davon ein großes, offen gestaltbares Büro, das flexibel nutzbar ist.
Auf beiden Etagen stehen jeweils zwei moderne Badezimmer mit Dusche und WC zur Verfügung.
Vielfältige Nutzungsmöglichkeiten:
- Klassische Büronutzung oder Co-Working-Space
- Praxis für Beratung, Therapie oder Gesundheit
- Kreativ-Atelier, Studio oder Schulungsräume
- Showroom oder Vertriebsbüro
- Start-up-Zentrale oder Projektbüro
Besondere Highlights:
Die großzügige Terrasse im Erdgeschoss bietet zusätzlichen Raum für Meetings, Pausen oder kreatives Arbeiten im Freien.
Beheizt wird das gesamte Gebäude energieeffizient mittels Wärmepumpe.
Zum Büro gehören auch 9 Parkplätze.
Die Betriebskosten werden gesondert bekannt gegeben
Lage:
Die zentrale Position im Industriepark St. Veit bietet eine hervorragende Anbindung an das regionale wie auch überregionale Verkehrsnetz. Die Infrastruktur ist bestens ausgebaut, umgeben von Unternehmen, Dienstleistern und wichtigen Einrichtungen.
Besichtigungen sind ausschließlich nach vorheriger Terminvereinbarung möglich.
Raumaufteilung:
Im Erdgeschoss befinden sich ein großzügiger Empfangsbereich sowie drei weitere Büroräume. Einer davon ist ein frei gestaltbares Großraumbüro, das unterschiedlichsten Anforderungen angepasst werden kann.
Im Obergeschoss finden Sie eine Küche sowie vier Büros – auch hier ist eines davon ein großes, offen gestaltbares Büro, das flexibel nutzbar ist.
Auf beiden Etagen stehen jeweils zwei moderne Badezimmer mit Dusche und WC zur Verfügung.
Vielfältige Nutzungsmöglichkeiten:
- Klassische Büronutzung oder Co-Working-Space
- Praxis für Beratung, Therapie oder Gesundheit
- Kreativ-Atelier, Studio oder Schulungsräume
- Showroom oder Vertriebsbüro
- Start-up-Zentrale oder Projektbüro
Besondere Highlights:
Die großzügige Terrasse im Erdgeschoss bietet zusätzlichen Raum für Meetings, Pausen oder kreatives Arbeiten im Freien.
Beheizt wird das gesamte Gebäude energieeffizient mittels Wärmepumpe.
Zum Büro gehören auch 9 Parkplätze.
Die Betriebskosten werden gesondert bekannt gegeben
Lage:
Die zentrale Position im Industriepark St. Veit bietet eine hervorragende Anbindung an das regionale wie auch überregionale Verkehrsnetz. Die Infrastruktur ist bestens ausgebaut, umgeben von Unternehmen, Dienstleistern und wichtigen Einrichtungen.
Besichtigungen sind ausschließlich nach vorheriger Terminvereinbarung möglich.
| Angaben gemäß gesetzlichem Erfordernis: | |||
| Miete | € | 4280 | zzgl 20% USt. |
| Umsatzsteuer | € | 856 | |
| ------------------------------------------------------------------ | |||
| Gesamtbetrag | € | 5136 | |
| ------------------------------------------------------------------ | |||
| Heizwärmebedarf: | 66.0 kWh/(m²a) | ||
| Klasse Heizwärmebedarf: | C | ||
| Faktor Gesamtenergieeffizienz: | 0.9 | ||
| Klasse Faktor Gesamtenergieeffizienz: | B | ||
Objektdaten
Ausstattung
- Teeküche
- Zentralheizung
- Erdwärme
- Bus
- Sonstiges
- Stadtzentrum
- Zentralheizung mit Wärmepumpe
Dokumente / Links
Zustand
- Zustand
- GEPFLEGT
- Baujahr
- ca. 2003
- Alter
- NEUBAU
Flächen
- Anzahl der Zimmer
- 9
- Anzahl der sep. WCs
- 4
- Anzahl der Terrassen
- 1
- Stellplätze
- 9
- Nutzfläche
- 426m²
- Bürofläche
- 426m²
- Terrassenfläche
- 1m²
Kosten
- Kaltmiete
- € 5.136,00
- Kaution
- € 15.000,00
Verwaltung
- Verfügbar ab
- sofort
Büros zum Mieten im Umkreis von St. Veit an der Glan
Büros zum Mieten im Umkreis von St. Veit an der Glan
Büros zum Mieten in Österreich
Andere Besucher suchen nach...
- Grundstücke kaufen in 3400 Weidlingbach
- Wohnungen kaufen in 4663 Laakirchen
- Häuser in 7471 Rechnitz
- Wohnungen in 2410 Hainburg an der Donau
- Häuser kaufen in 2432 Schwadorf
- Wohnungen kaufen in 3002 Purkersdorf
- Häuser in 3150 Wilhelmsburg
- Wohnungen kaufen in 3470 Engelmannsbrunn
- Grundstücke kaufen im Bezirk Mattersburg
- Grundstücke kaufen im Bezirk Gmunden