Arbeiten am Puls von Weidling – Büro mit bester Anbindung und viel Tageslicht!
-
sofort
Beschreibung
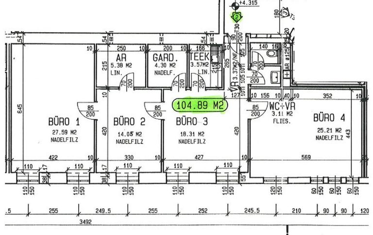
Direkt beim Bahnhof Weidling, mit perfekter Anbindung und gut sichtbar von außen, wartet dieses rund 105 m² große Büro auf neue Ideen. Die Fläche liegt im 1. Obergeschoss eines gepflegten Hauses – bequem erreichbar mit dem Lift – und bietet alles, was ein funktionaler Bürostandort braucht.
Die Raumaufteilung ist durchdacht: Zwei großzügige Büros an den Außenseiten bieten viel Platz, dazwischen zwei kleinere, aber gut nutzbare Räume – ideal für Teamarbeit, Besprechung oder konzentriertes Arbeiten. Zusätzlich gibt es eine Teeküche, ein WC, eine Garderobe sowie einen Abstellraum.
Große Fensterflächen bringen Licht in alle Räume. Farblich dominiert derzeit Blau – wer möchte,...
Direkt beim Bahnhof Weidling, mit perfekter Anbindung und gut sichtbar von außen, wartet dieses rund 105 m² große Büro auf neue Ideen. Die Fläche liegt im 1. Obergeschoss eines gepflegten Hauses – bequem erreichbar mit dem Lift – und bietet alles, was ein funktionaler Bürostandort braucht.
Die Raumaufteilung ist durchdacht:
Zwei großzügige Büros an den Außenseiten bieten viel Platz, dazwischen zwei kleinere, aber gut nutzbare Räume – ideal für Teamarbeit, Besprechung oder konzentriertes Arbeiten. Zusätzlich gibt es eine Teeküche, ein WC, eine Garderobe sowie einen Abstellraum.
Große Fensterflächen bringen Licht in alle Räume. Farblich dominiert derzeit Blau – wer möchte, kann sich hier gestalterisch austoben und dem Büro einen neuen Anstrich verpassen.
Das Wichtigste auf einen Blick:
- Fläche: ca. 105 m²
- Stockwerk: 1. OG, Lift vorhanden
- Räume: 4 Büroräume, Teeküche, WC, Garderobe, Abstellraum
- Fenster: großzügige Fensterflächen
- Lage: direkt beim Bahnhof Weidling – sehr gute Infrastruktur, zentrale Lage
- Verfügbarkeit: ab sofort
- Mietdauer: mindestens 5 Jahre, gerne länger
- Miete: € 838,96 zzgl. USt
- Betriebskosten: € 267,37 zzgl. USt
Fazit:
Ob Start-up, Agentur oder Praxis – wer einen gut erreichbaren, funktionalen Standort sucht, ist hier genau richtig. Wir freuen uns auf Ihre Anfrage!
Die Miete: € 838,96
Hinweis gemäß Energieausweisvorlagegesetz: Ein Energieausweis wurde vom Eigentümer bzw. Verkäufer, nach unserer Aufklärung über die generell geltende Vorlagepflicht, sowie Aufforderung zu seiner Erstellung noch nicht vorgelegt. Daher gilt zumindest eine dem Alter und der Art des Gebäudes entsprechende Gesamtenergieeffizienz als vereinbart. Wir übernehmen keinerlei Gewähr oder Haftung für die tatsächliche Energieeffizienz der angebotenen Immobilie.
Sie möchten Ihr Haus, Ihre Wohnung oder Ihr Grundstück bewerten lassen?
Nützen Sie unsere Aktion bis 31.03.2026: Statt € 490,-- bis Ende März kostenlos!
Vereinbaren Sie gleich einen Termin unter: bewertung@remax-magic.at
Objektdaten
Ausstattung
- Räume veränderbar
- Rollstuhlgerecht
- Teeküche
- Seniorengerecht
- Fliesenboden
- Teppichboden
- Personen Fahrstuhl
Zustand
- Zustand
- GEPFLEGT
Flächen
- Anzahl der Zimmer
- 4
- Anzahl der sep. WCs
- 1
- Nutzfläche
- 105m²
- Bürofläche
- 85m²
Kosten
- Gesamtmiete Brutto
- € 1.327,59
- Miete
- € 838,96
- Betriebskosten
- € 267,37
- Umsatzsteuer
- € 221,26
Verwaltung
- Verfügbar ab
- sofort
- Mietdauer
- bis 5,0 Jahre
Büros zum Mieten im Umkreis von Klosterneuburg
- Bezirk Gemeindebezirk Döbling
- Bezirk Gemeindebezirk Döbling
- Bezirk Gemeindebezirk Döbling
- Bezirk Gemeindebezirk Brigittenau
- Bezirk Gemeindebezirk Brigittenau
- Bezirk Gemeindebezirk Brigittenau
- Bezirk Gemeindebezirk Alsergrund
- Bezirk Gemeindebezirk Alsergrund
- Bezirk Gemeindebezirk Alsergrund
- Bezirk Gemeindebezirk Floridsdorf
Büros zum Mieten im Umkreis von Klosterneuburg
Büros zum Mieten in Österreich
Andere Besucher suchen nach...
- Grundstücke kaufen in 3400 Weidlingbach
- Wohnungen kaufen in 4663 Laakirchen
- Häuser in 7471 Rechnitz
- Wohnungen in 2410 Hainburg an der Donau
- Häuser kaufen in 2432 Schwadorf
- Wohnungen kaufen in 3002 Purkersdorf
- Häuser in 3150 Wilhelmsburg
- Wohnungen kaufen in 3470 Engelmannsbrunn
- Grundstücke kaufen im Bezirk Mattersburg
- Grundstücke kaufen im Bezirk Gmunden