Büroräumlichkeiten im großartiger Lage von Klosterneuburg!
Beschreibung
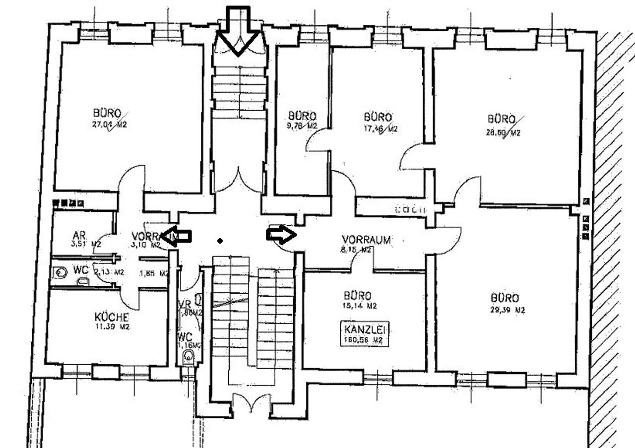
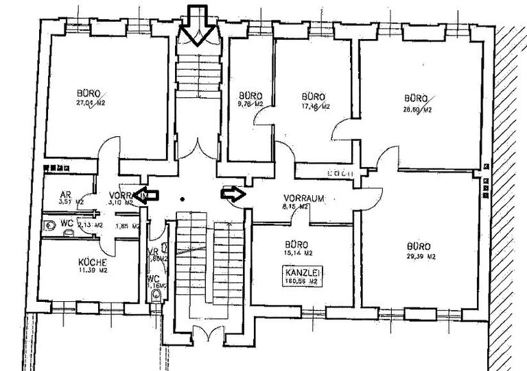
Zur Vermietung gelangt diese rund 160m² große Bürofläche in zentraler, sehr guter Lage von Klosterneuburg. Sie verfügt über 6 Zimmer und eine Küche, 2 separate Toiletten sowie über einen Abstellraum. Die Fläche umfasst das gesamte Erdgeschoß (Parterre) eines sehr gepflegten, 2 geschoßigen Altbaus. Über eine Treppe gelangt man in das Stiegenhaus, wo sich die 2 Eingänge zu den getrennten Einheiten befinden. Einerseits bilden 5 Räume einen Einheit und auf der anderen Seite bilden ein Büroraum, eine Küche, ein Abstellraum sowie eine separate Toilette eine Einheit. Die ehemaligen Kanzleiräumlichkeiten befinden sich in einem gebrauchten Zustand. Ob Mietreduktion während der Umbauten oder...
Zur Vermietung gelangt diese rund 160m² große Bürofläche in zentraler, sehr guter Lage von Klosterneuburg. Sie verfügt über 6 Zimmer und eine Küche, 2 separate Toiletten sowie über einen Abstellraum. Die Fläche umfasst das gesamte Erdgeschoß (Parterre) eines sehr gepflegten, 2 geschoßigen Altbaus. Über eine Treppe gelangt man in das Stiegenhaus, wo sich die 2 Eingänge zu den getrennten Einheiten befinden. Einerseits bilden 5 Räume einen Einheit und auf der anderen Seite bilden ein Büroraum, eine Küche, ein Abstellraum sowie eine separate Toilette eine Einheit. Die ehemaligen Kanzleiräumlichkeiten befinden sich in einem gebrauchten Zustand.
Ob Mietreduktion während der Umbauten oder eine Investitionskostenbeteiligung seitens des Eigentümers - Der Vermieter ist an einer fairen Lösung für beide Seiten interessiert und für konstruktive Gespräche bereit!
Aufteilung:
Einheit 1:
- Vorzimmer
- 5 Büroräume
Einheit 2:
- Vorraum
- Küche
- Abstellraum
- Toilette
- Büroraum
Hinweis gemäß Energieausweisvorlagegesetz: Ein Energieausweis wurde vom Eigentümer bzw. Verkäufer, nach unserer Aufklärung über die generell geltende Vorlagepflicht, sowie Aufforderung zu seiner Erstellung noch nicht vorgelegt. Daher gilt zumindest eine dem Alter und der Art des Gebäudes entsprechende Gesamtenergieeffizienz als vereinbart. Wir übernehmen keinerlei Gewähr oder Haftung für die tatsächliche Energieeffizienz der angebotenen Immobilie.
Wir weisen darauf hin, dass zwischen dem Vermittler und dem zu vermittelnden Dritten ein familiäres oder wirtschaftliches Naheverhältnis besteht.
Der Vermittler ist als Doppelmakler tätig.
Infrastruktur / Entfernungen
Gesundheit
Arzt <500m
Apotheke <500m
Klinik <4.500m
Krankenhaus <1.000m
Kinder & Schulen
Schule <500m
Kindergarten <500m
Universität <3.500m
Höhere Schule <6.500m
Nahversorgung
Supermarkt <500m
Bäckerei <500m
Einkaufszentrum <4.000m
Sonstige
Bank <500m
Geldautomat <500m
Post <500m
Polizei <500m
Verkehr
Bus <500m
Straßenbahn <4.500m
U-Bahn <7.000m
Bahnhof <500m
Autobahnanschluss <3.000m
Angaben Entfernung Luftlinie / Quelle: OpenStreetMap
Objektdaten
Ausstattung
- Gäste-WC
- Einbauküche
- Fliesenboden
- Parkettboden
- Etage Heizung
- Befeuerung mit Gas
Zustand
- Alter
- ALTBAU
Flächen
- Anzahl der Zimmer
- 6
- Anzahl der sep. WCs
- 2
- Nutzfläche
- 161m²
- Bürofläche
- 161m²
Kosten
- Gesamtmiete Brutto
- € 2.523,31
- Kaution
- € 7.569,93
- Miete
- € 1.605,60
- Betriebskosten
- € 497,16
- Umsatzsteuer
- € 420,55
Verwaltung
- Verfügbar ab
- nach Vereinbarung
- Mietdauer
- bis 5,0 Jahre
Büros zum Mieten im Umkreis von Klosterneuburg
- Bezirk Gemeindebezirk Döbling
- Bezirk Gemeindebezirk Döbling
- Bezirk Gemeindebezirk Döbling
- Bezirk Gemeindebezirk Brigittenau
- Bezirk Gemeindebezirk Brigittenau
- Bezirk Gemeindebezirk Brigittenau
- Bezirk Gemeindebezirk Alsergrund
- Bezirk Gemeindebezirk Alsergrund
- Bezirk Gemeindebezirk Alsergrund
- Bezirk Gemeindebezirk Floridsdorf
Büros zum Mieten im Umkreis von Klosterneuburg
Büros zum Mieten in Österreich
Andere Besucher suchen nach...
- Grundstücke kaufen in 3400 Weidlingbach
- Wohnungen kaufen in 4663 Laakirchen
- Häuser in 7471 Rechnitz
- Wohnungen in 2410 Hainburg an der Donau
- Häuser kaufen in 2432 Schwadorf
- Wohnungen kaufen in 3002 Purkersdorf
- Häuser in 3150 Wilhelmsburg
- Wohnungen kaufen in 3470 Engelmannsbrunn
- Grundstücke kaufen im Bezirk Mattersburg
- Grundstücke kaufen im Bezirk Gmunden