Büro/Praxis - Räume in Tulln, frisch renoviert!
-
sofort
Beschreibung
Zur Vermietung stehen Büro/Praxis Räume in Tulln, unweit von Hauptplatz und Rosenarcade entfernt.
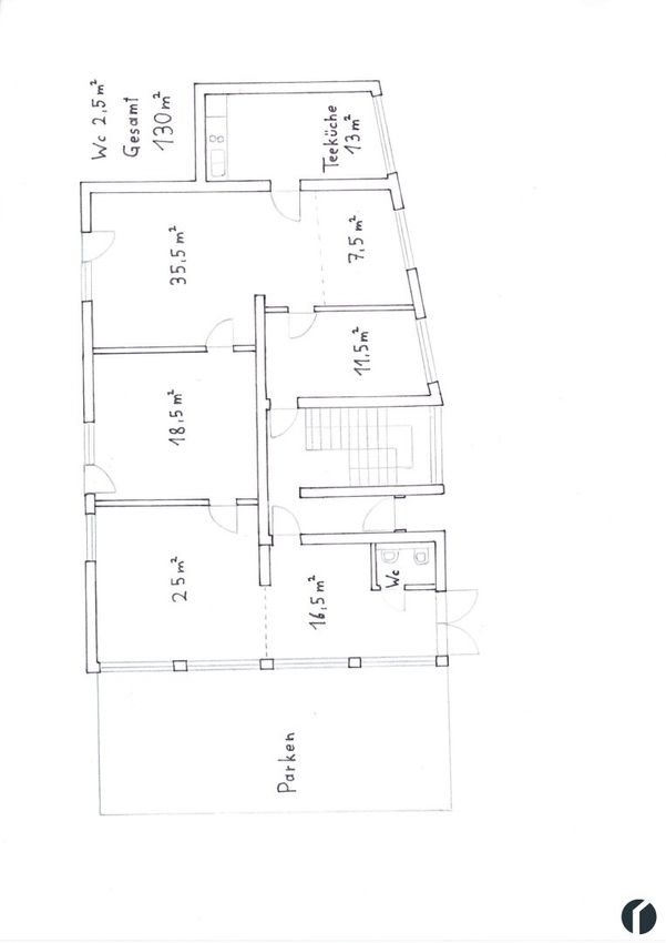
Die insgesamt ca. 130m² große Bürofläche wurde soeben frisch renoviert und befindet sich im Erdgeschoß mit barrierefreiem Zugang. Von den Vormietern zurückgeblieben sind EDV und Lan-Steckplätze in fast jedem Raum, gebündelt für die Installation eines Serverschrankes. Die Räumlichkeiten setzen sich wie folgt zusammen:
- Eingangsbereich mit separater Toilette
- 4 Räume
- 1 Teeküche bzw. Aufenthaltsraum
- 1 Windfang als möglicher 2. Eingangsbereich
Im Mietpreis inbegriffen ist außerdem die alleinige Benutzung von 3 Parkplätzen vor dem Geschäft. Weitere Parkmöglichkeiten gibt es nur ca. 100 Meter entfernt in der...
Zur Vermietung stehen Büro/Praxis Räume in Tulln, unweit von Hauptplatz und Rosenarcade entfernt.
Die insgesamt ca. 130m² große Bürofläche wurde soeben frisch renoviert und befindet sich im Erdgeschoß mit barrierefreiem Zugang. Von den Vormietern zurückgeblieben sind EDV und Lan-Steckplätze in fast jedem Raum, gebündelt für die Installation eines Serverschrankes.
Die Räumlichkeiten setzen sich wie folgt zusammen:
- Eingangsbereich mit separater Toilette
- 4 Räume
- 1 Teeküche bzw. Aufenthaltsraum
- 1 Windfang als möglicher 2. Eingangsbereich
Im Mietpreis inbegriffen ist außerdem die alleinige Benutzung von 3 Parkplätzen vor dem Geschäft.
Weitere Parkmöglichkeiten gibt es nur ca. 100 Meter entfernt in der Kurzparkzone vor der Egon Schiele Volksschule.
Tiefgaragenstellplätze zu mieten finden Sie eine Querstraße weiter, hier der Link dazu https://www.immobilien86.at/objektdetail/10191467
Die Räume sind alle mit Fliesenboden ausgestattet, in der Teeküche wurde ein Linoleum verlegt. Geheizt wird mit einer Gasetagenheizung und Radiatoren. Den Vertrag mit Strom und Gasanbieter schließen Sie selbst ab.
Hinweis: Die Angaben zu dieser Immobilie sind ohne Gewähr. Auf Grund der Nachweispflicht gegenüber dem Eigentümer ersuchen wir Sie um Verständnis, dass wir nur Anfragen mit vollständiger Anschrift und Telefonnummer bearbeiten können, sowie keine Auskünfte betreffend Objektunterlagen und der genauen Liegenschaftsadresse erteilen können. Wir weisen darauf hin, daß aufgrund wiederholter Beauftragung zur Vermieterseite ein wirtschaftliches Naheverhältnis besteht.
Der Vermittler ist als Doppelmakler tätig.
Infrastruktur / Entfernungen
Gesundheit
Arzt <500m
Apotheke <500m
Klinik <6.500m
Krankenhaus <1.500m
Kinder & Schulen
Schule <500m
Kindergarten <500m
Universität <1.500m
Höhere Schule <1.500m
Nahversorgung
Supermarkt <500m
Bäckerei <500m
Einkaufszentrum <500m
Sonstige
Bank <500m
Geldautomat <500m
Post <500m
Polizei <1.000m
Verkehr
Bus <500m
Bahnhof <500m
Autobahnanschluss <4.000m
Flughafen <5.000m
Angaben Entfernung Luftlinie / Quelle: OpenStreetMap
Objektdaten
Ausstattung
- Barrierefrei
- DV Verkabelung
- Teeküche
- Kabelkanäle
- Fliesenboden
- Linoleumboden
- Zentralheizung
- Befeuerung mit Gas
- Massiv Bauweise
Zustand
- Zustand
- GEPFLEGT
- HWB
- 119 kWh/m² pro Jahr
- Klasse HWB
- C
Flächen
- Anzahl der Zimmer
- 6
- Anzahl der sep. WCs
- 1
- Stellplätze
- 3
- Nutzfläche
- 130m²
Kosten
- Gesamtmiete Brutto
- € 2.352,00
- Kaution
- € 7.056,00
- Miete
- € 1.800,00
- Betriebskosten
- € 160,00
- Umsatzsteuer
- € 392,00
Verwaltung
- Verfügbar ab
- sofort
- Mietdauer
- bis 3,0 Jahre
Büros zum Mieten im Umkreis von Tulln an der Donau
Büros zum Mieten im Umkreis von Tulln an der Donau
Büros zum Mieten in Österreich
Andere Besucher suchen nach...
- Grundstücke kaufen in 3400 Weidlingbach
- Wohnungen kaufen in 4663 Laakirchen
- Häuser in 7471 Rechnitz
- Wohnungen in 2410 Hainburg an der Donau
- Häuser kaufen in 2432 Schwadorf
- Wohnungen kaufen in 3002 Purkersdorf
- Häuser in 3150 Wilhelmsburg
- Wohnungen kaufen in 3470 Engelmannsbrunn
- Grundstücke kaufen im Bezirk Mattersburg
- Grundstücke kaufen im Bezirk Gmunden