Modernes Büro im Herzen von Tulln
-
01.05.2026
Beschreibung
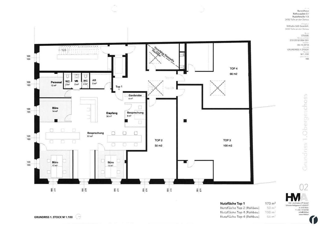
Zur Vermietung kommt ab 1.5.2026 ein modernes, großzügiges Großraumbüro mit ca. 173 m² Bürofläche im 1. Liftstock in zentraler Lage in Tulln.
Das erst 2019 neu errichtete repräsentative Großraumbüro im Barockhaus in attraktiver Innenstadtlage verfügt über einen offenen Empfangsbereich, 3 separate Büroräume und einen Besprechungsraum. Die Teeküche präsentiert sich modern und ist funktional ausgestattet mit 2-Platten-Kochfeld, Mikrowelle, Geschirrspüler, Spülbecken und einer Kühl-Gefrierkombination. Ein Garderobenreich, getrennte WC-Einheiten, teilweise innenliegende Rollos, flexible Steckerleisten und blendfreie Rasterdeckenleuchten sorgen für ein angenehmes und funktionales Arbeitsumfeld.
Die Vermietung erfolgt unbefristet, mit einem beidseitigen Kündigungsverzicht von 5 Jahren.
Energiekosten-Akonto: • Gas: 211,06 € •...
Zur Vermietung kommt ab 1.5.2026 ein modernes, großzügiges Großraumbüro mit ca. 173 m² Bürofläche im 1. Liftstock in zentraler Lage in Tulln.
Das erst 2019 neu errichtete repräsentative Großraumbüro im Barockhaus in attraktiver Innenstadtlage verfügt über einen offenen Empfangsbereich, 3 separate Büroräume und einen Besprechungsraum.
Die Teeküche präsentiert sich modern und ist funktional ausgestattet mit 2-Platten-Kochfeld, Mikrowelle, Geschirrspüler, Spülbecken und einer Kühl-Gefrierkombination.
Ein Garderobenreich, getrennte WC-Einheiten, teilweise innenliegende Rollos, flexible Steckerleisten und blendfreie Rasterdeckenleuchten sorgen für ein angenehmes und funktionales Arbeitsumfeld.
Die Vermietung erfolgt unbefristet, mit einem beidseitigen Kündigungsverzicht von 5 Jahren.
Energiekosten-Akonto:
• Gas: 211,06 €
• Strom: 69,20 €
Die zentrale Lage mit guter umliegender Infrastruktur in unmittelbarer Nähe der Parkgarage Albrechtsgasse und Parkgarage Hauptplatz bietet Ihnen eine gute Erreichbarkeit sowie Parkmöglichkeiten (1 Stunde gratis Parken in der Parkgarage Albrechtsgasse, 1/2 Stunde gratis in der Hauptplatz Garage).
Hinweis: Die Angaben zu dieser Immobilie sind ohne Gewähr. Auf Grund der Nachweispflicht gegenüber dem Eigentümer ersuchen wir Sie um Verständnis, dass wir nur Anfragen mit vollständiger Anschrift und Telefonnummer bearbeiten können, sowie keine Auskünfte betreffend Objektunterlagen und der genauen Liegenschaftsadresse erteilen können.
Infrastruktur / Entfernungen
Gesundheit
Arzt <500m
Apotheke <500m
Klinik <6.000m
Krankenhaus <1.500m
Kinder & Schulen
Schule <500m
Kindergarten <500m
Universität <1.500m
Höhere Schule <1.500m
Nahversorgung
Supermarkt <500m
Bäckerei <500m
Einkaufszentrum <500m
Sonstige
Bank <500m
Geldautomat <500m
Post <500m
Polizei <500m
Verkehr
Bus <500m
Bahnhof <500m
Autobahnanschluss <4.000m
Flughafen <5.000m
Angaben Entfernung Luftlinie / Quelle: OpenStreetMap
Objektdaten
Ausstattung
- Barrierefrei
- Teeküche
- Laminatboden
- Befeuerung mit Gas
- Personen Fahrstuhl
Flächen
- Anzahl der Zimmer
- 5
- Anzahl der sep. WCs
- 2
- Bürofläche
- 173m²
Kosten
- Gesamtmiete Brutto
- € 3.946,00
- Kaution
- € 11.838,00
- Miete
- € 3.000,00
- Betriebskosten
- € 346,00
- Umsatzsteuer
- € 600,00
Verwaltung
- Verfügbar ab
- 01.05.2026
Büros zum Mieten im Umkreis von Tulln an der Donau
Büros zum Mieten im Umkreis von Tulln an der Donau
Büros zum Mieten in Österreich
Andere Besucher suchen nach...
- Grundstücke kaufen in 3400 Weidlingbach
- Wohnungen kaufen in 4663 Laakirchen
- Häuser in 7471 Rechnitz
- Wohnungen in 2410 Hainburg an der Donau
- Häuser kaufen in 2432 Schwadorf
- Wohnungen kaufen in 3002 Purkersdorf
- Häuser in 3150 Wilhelmsburg
- Wohnungen kaufen in 3470 Engelmannsbrunn
- Grundstücke kaufen im Bezirk Mattersburg
- Grundstücke kaufen im Bezirk Gmunden