Schöne Büro/Praxis- bzw. Kanzleiräumlichkeiten im Zentrum
-
ab sofort
Beschreibung
Zur Vermietung kommen wunderschöne Büro-/Praxis-/Kanzleiräumlichkeiten mit 3 Zimmern im Zentrum von Tulln in unmittelbarer Nähe zum Hauptplatz.
Die Räumlichkeiten wurden mit einem eleganten und zugleich pflegeleichten Vinylboden in Eichenoptik ausgestattet, renoviert und frisch ausgemalt. Es wurde eine moderne Teeküche (samt Geschirrspüler, Mikrowelle und Kochkeramikfeld) installiert. Das Objekt verfügt über eine WC-Anlage mit getrennten Toiletten. Sämtliche Räume sind durch die großen Fenster bestens mit Tageslicht versorgt.
Im Souterrain befinden sich weitere Räumlichkeiten, die Ihnen mit den anderen Mietern der Praxis im Erdgeschoss zur gemeinsamen Nutzung zur Verfügung stehen, nämlich eine Küche mit Sitzecke, eine Dusche sowie ein weiterer Raum...
Zur Vermietung kommen wunderschöne Büro-/Praxis-/Kanzleiräumlichkeiten mit 3 Zimmern im Zentrum von Tulln in unmittelbarer Nähe zum Hauptplatz.
Die Räumlichkeiten wurden mit einem eleganten und zugleich pflegeleichten Vinylboden in Eichenoptik ausgestattet, renoviert und frisch ausgemalt. Es wurde eine moderne Teeküche (samt Geschirrspüler, Mikrowelle und Kochkeramikfeld) installiert. Das Objekt verfügt über eine WC-Anlage mit getrennten Toiletten. Sämtliche Räume sind durch die großen Fenster bestens mit Tageslicht versorgt.
Im Souterrain befinden sich weitere Räumlichkeiten, die Ihnen mit den anderen Mietern der Praxis im Erdgeschoss zur gemeinsamen Nutzung zur Verfügung stehen, nämlich eine Küche mit Sitzecke, eine Dusche sowie ein weiterer Raum mit Spinden für die Mitarbeiter sowie die Möglichkeit eine Waschmaschine anzuschließen.
Geheizt wird mit einer Gas Zentralheizung, die Kosten dafür werden mittels monatlichem Akonto aliquot vorgeschrieben. Die Kosten für Strom werden ebenfalls anteilsmäßig verrechnet. Der Mietvertrag wird auf unbefristete Zeit abgeschlossen.
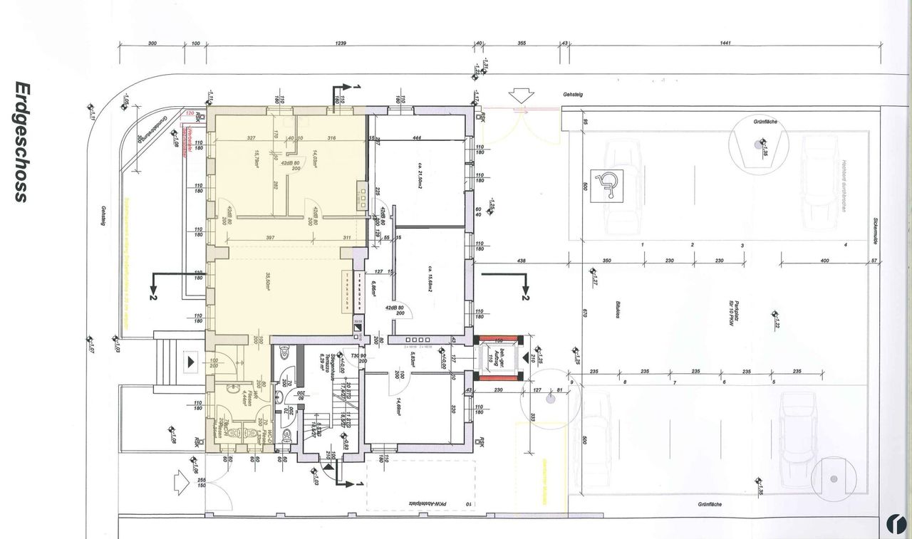
Top 1a: 77m2 besteht aus 3 Räumen sowie WC Anlage mit getrennten Toiletten im Erdgeschoss
monatliches Energiekosten Akonto:
Heizungsakonto netto € 188,33
Stromakonto € 42,40
Parkplätze:
Von den sich im Hof befindlichen Parkplätze stehen 4 Parkplätze zur optionalen Miete zur Verfügung. Die Kosten dafür betragen pro Parkplatz 42,04 zzgl. 20% Ust. Der Parkplatz ist durch ein elektrisches Einfahrtstor versperrt, das sich mittels Fernbedienung öffnen lässt.
Lage:
Die Nähe zum Hauptplatz, der dort befindlichen Tiefgarage sowie den vielen Geschäften und den Kaffeehäusern bietet auch den Kunden die Möglichkeit eventuelle Wartezeiten für Einkäufe etc. zu verwenden. Zur wunderschönen Donaulände gelangt man zu Fuß in ca. 5 Minuten.
Hinweis: Die Angaben zu dieser Immobilie sind ohne Gewähr. Wir weisen darauf hin, dass aufgrund wiederholter Beauftragung zur Vermieterseite ein wirtschaftliches Naheverhältnis besteht.
Der Vermittler ist als Doppelmakler tätig.
Infrastruktur / Entfernungen
Gesundheit
Arzt <500m
Apotheke <500m
Klinik <6.000m
Krankenhaus <2.000m
Kinder & Schulen
Schule <500m
Kindergarten <500m
Universität <2.000m
Höhere Schule <1.500m
Nahversorgung
Supermarkt <500m
Bäckerei <500m
Einkaufszentrum <500m
Sonstige
Bank <500m
Geldautomat <500m
Post <1.000m
Polizei <500m
Verkehr
Bus <500m
Bahnhof <1.000m
Autobahnanschluss <4.000m
Flughafen <5.500m
Angaben Entfernung Luftlinie / Quelle: OpenStreetMap
Objektdaten
Ausstattung
- Teeküche
- Fliesenboden
- Kunststoffboden
- Zentralheizung
- Befeuerung mit Gas
- Massiv Bauweise
Dokumente / Links
- Gemeinschaftsräume im Untergeschoß.pdf
- Plan Top 1a EG.pdf
- Plan Top1b EG.pdf
- Gesamtplan EG.pdf
- Dokument 1
Zustand
- Alter
- ALTBAU
- HWB
- 74.6 kWh/m² pro Jahr
- Klasse HWB
- C
Flächen
- Anzahl der Zimmer
- 3
- Anzahl der Badezimmer
- 1
- Anzahl der sep. WCs
- 2
- Stellplätze
- 4
- Nutzfläche
- 107m²
- Bürofläche
- 77m²
Kosten
- Gesamtmiete Brutto
- € 1.600,80
- Kaution
- € 4.802,40
- Miete
- € 1.074,00
- Betriebskosten
- € 260,00
- Umsatzsteuer
- € 266,80
Verwaltung
- Verfügbar ab
- ab sofort
Büros zum Mieten im Umkreis von Tulln an der Donau
Büros zum Mieten im Umkreis von Tulln an der Donau
Büros zum Mieten in Österreich
Andere Besucher suchen nach...
- Grundstücke kaufen in 3400 Weidlingbach
- Wohnungen kaufen in 4663 Laakirchen
- Häuser in 7471 Rechnitz
- Wohnungen in 2410 Hainburg an der Donau
- Häuser kaufen in 2432 Schwadorf
- Wohnungen kaufen in 3002 Purkersdorf
- Häuser in 3150 Wilhelmsburg
- Wohnungen kaufen in 3470 Engelmannsbrunn
- Grundstücke kaufen im Bezirk Mattersburg
- Grundstücke kaufen im Bezirk Gmunden