Shared Office mit Altbaufeeling im Herzen von Tulln
-
ab sofort
Beschreibung
Zur Vermietung gelangt ein eleganter Büroraum im Shared Office im 1. Stock eines Geschäftshauses in der Wiener Straße. Die sehr schön ausgestattete Räumlichkeit im denkmalgeschützten Gebäude bietet modernes Arbeiten im eleganten, historischen Ambiente. Der schöne Fischgrät Parkett und die hohen Räume, Details wie das historische Fenster mit Ornament Rahmen, die restaurierten Türstöcke, all das macht den Charme dieser wunderbaren Räumlichkeit aus. Die Technik, Küche, Bad und WC Anlage sind aber auf dem neuesten Stand, so dass das Arbeiten zum Vergnügen wird.
Die zentrale Lage in unmittelbarer Nähe der Parkgarage Albrechtsgasse bietet Ihnen eine gute Erreichbarkeit sowie Parkmöglichkeiten (1 Stunde...
Zur Vermietung gelangt ein eleganter Büroraum im Shared Office im 1. Stock eines Geschäftshauses in der Wiener Straße. Die sehr schön ausgestattete Räumlichkeit im denkmalgeschützten Gebäude bietet modernes Arbeiten im eleganten, historischen Ambiente. Der schöne Fischgrät Parkett und die hohen Räume, Details wie das historische Fenster mit Ornament Rahmen, die restaurierten Türstöcke, all das macht den Charme dieser wunderbaren Räumlichkeit aus. Die Technik, Küche, Bad und WC Anlage sind aber auf dem neuesten Stand, so dass das Arbeiten zum Vergnügen wird.
Die zentrale Lage in unmittelbarer Nähe der Parkgarage Albrechtsgasse bietet Ihnen eine gute Erreichbarkeit sowie Parkmöglichkeiten (1 Stunde gratis Parken in der Parkgarage Albrechtsgasse).
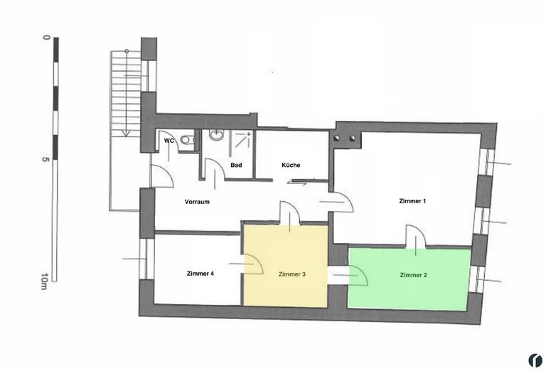
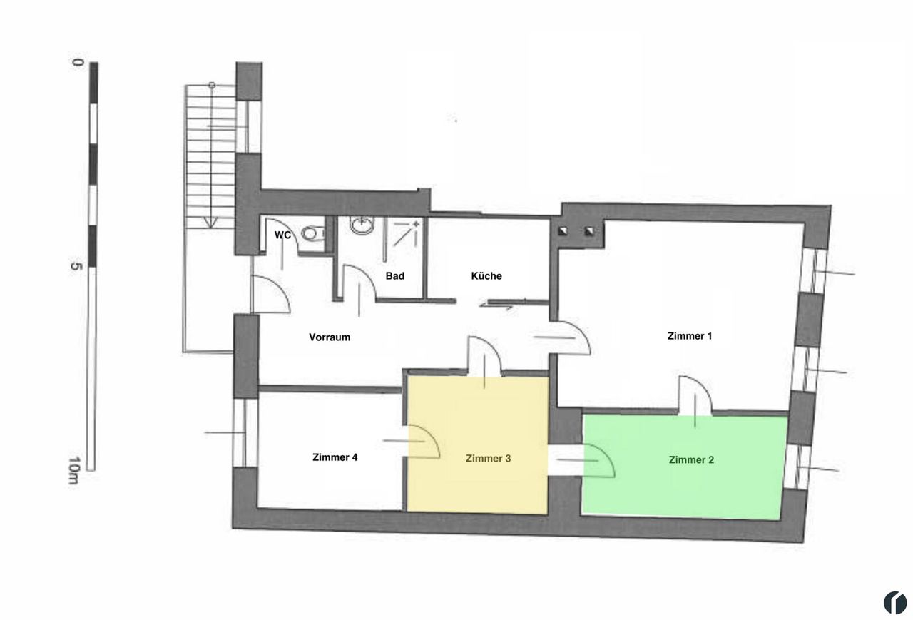
Der ca. 13 m2 große Raum verfügt über Fischgrät-Parkettboden sowie ein großes Fenster mit Blick auf die Wiener Straße.
Die All-inclusive Bruttomonatsmiete für diesen Raum beträgt € 450,- inkl. 20 % Ust., Betriebskosten, Strom, Gas sowie Reinigung und 80MBit-Internetanschluss. Befristung auf 4 Jahre. Der Raum wird ausschließlich zur Nutzung als Büro ohne Kundenverkehr vermietet.
Die Gemeinschaftsräume bieten Ihnen ein Vorzimmer mit Garderobe, eine Küche mit allen Geräten (Herd, Geschirrspüler, Dunstabzug, Kühl- Gefrierkombination, Mikrowelle), ein Bad mit Dusche sowie ein WC mit Handwaschbecken. Auch die vor der Eingangstüre liegende ca. 5 m2 Terrasse kann von allen Mietern genutzt werden.
Technische Details:
- Heizung: Gastherme, Radiatoren in den Zimmern, Fußbodenheizung im Vorraum, Bad und Küche
- Internet: A1 Glasfaser
- Böden: Fliesen in Holzoptik, Fischgrät-Parkett
- Fenster: Innenjalousien, 2-fach verglaste Holzfenster
Hinweis: Die Angaben zu dieser Immobilie sind ohne Gewähr. Auf Grund der Nachweispflicht gegenüber dem Eigentümer ersuchen wir Sie um Verständnis, dass wir nur Anfragen mit vollständiger Anschrift und Telefonnummer bearbeiten können, sowie keine Auskünfte betreffend Objektunterlagen und der genauen Liegenschaftsadresse erteilen können.
Der Vermittler ist als Doppelmakler tätig.
Infrastruktur / Entfernungen
Gesundheit
Arzt <500m
Apotheke <500m
Klinik <6.500m
Krankenhaus <1.500m
Kinder & Schulen
Schule <500m
Kindergarten <500m
Universität <1.500m
Höhere Schule <1.500m
Nahversorgung
Supermarkt <500m
Bäckerei <500m
Einkaufszentrum <500m
Sonstige
Bank <500m
Geldautomat <500m
Post <500m
Polizei <500m
Verkehr
Bus <500m
Bahnhof <500m
Autobahnanschluss <3.500m
Flughafen <5.000m
Angaben Entfernung Luftlinie / Quelle: OpenStreetMap
Objektdaten
Ausstattung
- Einbauküche
- Fliesenboden
- Parkettboden
- Etage Heizung
- Befeuerung mit Gas
- Massiv Bauweise
Zustand
- Zustand
- MODERNISIERT
- Alter
- ALTBAU
- HWB
- 153 kWh/m² pro Jahr
- Klasse HWB
- D
- fGEE
- 3.27
Flächen
- Anzahl der Zimmer
- 1
- Anzahl der Badezimmer
- 1
- Anzahl der sep. WCs
- 1
- Anzahl der Terrassen
- 1
- Bürofläche
- 13m²
- Terrassenfläche
- 1m²
Kosten
- Gesamtmiete Brutto
- € 450,00
- Kaution
- € 1.350,00
- Miete
- € 375,00
- Umsatzsteuer
- € 75,00
Verwaltung
- Verfügbar ab
- ab sofort
- Mietdauer
- bis 3,0 Jahre
Büros zum Mieten im Umkreis von Tulln an der Donau
Büros zum Mieten im Umkreis von Tulln an der Donau
Büros zum Mieten in Österreich
Andere Besucher suchen nach...
- Grundstücke kaufen in 3400 Weidlingbach
- Wohnungen kaufen in 4663 Laakirchen
- Häuser in 7471 Rechnitz
- Wohnungen in 2410 Hainburg an der Donau
- Häuser kaufen in 2432 Schwadorf
- Wohnungen kaufen in 3002 Purkersdorf
- Häuser in 3150 Wilhelmsburg
- Wohnungen kaufen in 3470 Engelmannsbrunn
- Grundstücke kaufen im Bezirk Mattersburg
- Grundstücke kaufen im Bezirk Gmunden