Modernes Büro/Praxis
-
01.04.2026
Beschreibung
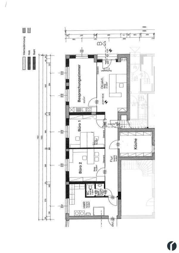
Zur Vermietung kommt ein modernes Büro/Praxis in Zwentendorf an der Donau mit ca. 118m2 Nutzfläche. Das Gebäude wurde 2017 generalrenoviert und präsentiert sich entsprechend in einem repräsentativen Zustand. Die Raumaufteilung eignet sich sowohl für eine Nutzung als Büro oder Praxis. Eine Nutzung als Gemeinschaftspraxis ist auch möglich.
Nutzen sie auch die Förderung der Gemeinde Zwentendorf bei Betriebsgründung bzw. Neuübernahme und zwar wie folgt: im 1. Jahr minus 50% auf die Kommunalsteuer.
Insgesamt stehen 3 separate Büros bzw. Behandlungsräume zur Verfügung. Im Eingangsbereich wurde ein Büroplatz in Form einer Rezeption installiert. Die weiteren Räumlichkeiten umfassen in ihrer derzeitigen Nutzung einen Besprechungsraum...
Zur Vermietung kommt ein modernes Büro/Praxis in Zwentendorf an der Donau mit ca. 118m2 Nutzfläche. Das Gebäude wurde 2017 generalrenoviert und präsentiert sich entsprechend in einem repräsentativen Zustand. Die Raumaufteilung eignet sich sowohl für eine Nutzung als Büro oder Praxis. Eine Nutzung als Gemeinschaftspraxis ist auch möglich.
Nutzen sie auch die Förderung der Gemeinde Zwentendorf bei Betriebsgründung bzw. Neuübernahme und zwar wie folgt: im 1. Jahr minus 50% auf die Kommunalsteuer.
Insgesamt stehen 3 separate Büros bzw. Behandlungsräume zur Verfügung. Im Eingangsbereich wurde ein Büroplatz in Form einer Rezeption installiert. Die weiteren Räumlichkeiten umfassen in ihrer derzeitigen Nutzung einen Besprechungsraum mit großem Tisch samt Beamer, 2 Büros mit je 1-2 Arbeitsplätzen, eine komplett ausgestattete Teeküche, einen Wirtschaftsraum sowie ein WC samt Vorraum mit Waschbecken.
Parkplätze finden Sie problemlos im öffentlichen Raum.
Alle Räume sind mit Fliesenboden ausgestattet und verfügen über Lamellen-Jalousien an den 3-fach verglasten Fenstern. Die Elektro-Installationen wurden im Zuge der Generalrenovierung ebenfalls erneuert und Möglichkeiten für eine LAN Verkabelung geschaffen.
In der Pauschalmiete von € 1.300,- zzgl. 20% USt sind bereits die Kosten für Heizung sowie Wasser enthalten. Einzig die Kosten für Strom und Abfallentsorgung müssen Sie noch zusätzlich tragen, wobei Sie die entsprechenden Verträge selbst mit dem Stromanbieter und der Gemeinde abschließen.
Gerne zeigen wir Ihnen diese Liegenschaft nach Anfrage im Rahmen einer persönlichen Besichtigung.
Zwentendorf verfügt über eine gute, wachsende Infrastruktur, die ja auch wie oben erwähnt durch die Gemeinde gefördert wird. Im örtlichen Spar Supermarkt wurde inzwischen eine Post-Stelle eingerichtet. Der Arzt verfügt außerdem über eine Hausapotheke.
Hinweis: Die Angaben zu dieser Immobilie sind ohne Gewähr. Auf Grund der Nachweispflicht gegenüber dem Eigentümer ersuchen wir Sie um Verständnis, dass wir nur Anfragen mit vollständiger Anschrift und Telefonnummer bearbeiten können, sowie keine Auskünfte betreffend Objektunterlagen und der genauen Liegenschaftsadresse erteilen können.
Infrastruktur / Entfernungen
Gesundheit
Arzt <1.000m
Klinik <8.500m
Apotheke <5.000m
Kinder & Schulen
Kindergarten <500m
Schule <500m
Nahversorgung
Supermarkt <500m
Bäckerei <4.500m
Einkaufszentrum <5.000m
Sonstige
Geldautomat <500m
Bank <500m
Post <6.500m
Polizei <6.000m
Verkehr
Bus <500m
Bahnhof <4.000m
Autobahnanschluss <5.500m
Angaben Entfernung Luftlinie / Quelle: OpenStreetMap
Objektdaten
Ausstattung
- Vollmöbliert
- Barrierefrei
- Teeküche
- Fliesenboden
- Fußbodenheizung
Dokumente / Links
Zustand
- Zustand
- TEIL_VOLLRENOVIERT
Flächen
- Anzahl der Zimmer
- 3
- Anzahl der sep. WCs
- 1
- Nutzfläche
- 119m²
Kosten
- Gesamtmiete Brutto
- € 1.560,00
- Kaution
- € 4.680,00
- Miete
- € 1.300,00
- Umsatzsteuer
- € 260,00
Verwaltung
- Verfügbar ab
- 01.04.2026, ab 01. 04. 2026
- Mietdauer
- bis 10,0 Jahre
Büros zum Mieten im Umkreis von Zwentendorf an der Donau
Büros zum Mieten im Umkreis von Zwentendorf an der Donau
Büros zum Mieten in Österreich
Andere Besucher suchen nach...
- Grundstücke kaufen in 3400 Weidlingbach
- Wohnungen kaufen in 4663 Laakirchen
- Häuser in 7471 Rechnitz
- Wohnungen in 2410 Hainburg an der Donau
- Häuser kaufen in 2432 Schwadorf
- Wohnungen kaufen in 3002 Purkersdorf
- Häuser in 3150 Wilhelmsburg
- Wohnungen kaufen in 3470 Engelmannsbrunn
- Grundstücke kaufen im Bezirk Mattersburg
- Grundstücke kaufen im Bezirk Gmunden