Neuwertiges Bürohaus in Gallneukirchen – Top Ausstattung, ideale Lage!
-
2024
-
Kurzfristig
Beschreibung
Moderne Büro-/Praxisfläche in Gallneukirchen
Willkommen in Ihrem neuen Büro- oder Praxisstandort in der charmanten Stadt Gallneukirchen in Oberösterreich!
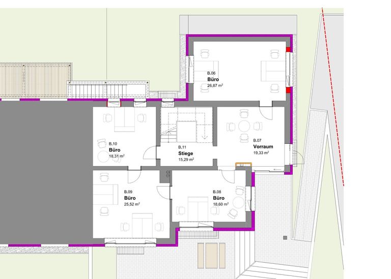
Zur Vermietung steht die gesamte Erdgeschossfläche eines umfassend neu adaptierten, sanierten und modernisierten Bürohauses. Die Einheit umfasst vier helle und vielseitig nutzbare Büroräume mit einer Nutzfläche von 112,82 m².
Zusätzlich stehen Ihnen großzügige Allgemeinflächen zur Verfügung, darunter der repräsentative Eingangsbereich, das Stiegenhaus, zwei WC-Einheiten sowie eine Teeküche. Diese Flächen wurden anteilig auf das gesamte Bürohaus aufgeteilt und sind bereits in der Gesamtfläche berücksichtigt.
Ein besonderes Plus: Der Balkon im 1. Obergeschoss kann von allen Mietern mitbenutzt werden und bietet einen angenehmen Rückzugsort...
Moderne Büro-/Praxisfläche in Gallneukirchen
Willkommen in Ihrem neuen Büro- oder Praxisstandort in der charmanten Stadt Gallneukirchen in Oberösterreich!
Zur Vermietung steht die gesamte Erdgeschossfläche eines umfassend neu adaptierten, sanierten und modernisierten Bürohauses. Die Einheit umfasst vier helle und vielseitig nutzbare Büroräume mit einer Nutzfläche von 112,82 m².
Zusätzlich stehen Ihnen großzügige Allgemeinflächen zur Verfügung, darunter der repräsentative Eingangsbereich, das Stiegenhaus, zwei WC-Einheiten sowie eine Teeküche. Diese Flächen wurden anteilig auf das gesamte Bürohaus aufgeteilt und sind bereits in der Gesamtfläche berücksichtigt.
Ein besonderes Plus: Der Balkon im 1. Obergeschoss kann von allen Mietern mitbenutzt werden und bietet einen angenehmen Rückzugsort für Pausen oder informelle Gespräche.
Highlights der Immobilien
- Vier Büroräume im Erdgeschoss
- Erstbezug nach umfassender Sanierung und Modernisierung
- Moderne DV-/EDV-Verkabelung für optimale Arbeitsbedingungen
- Teeküche und zwei WC-Einheiten (Allgemeinflächen)
- Helle, freundliche Räume mit vielseitigen Nutzungsmöglichkeiten
- Mitbenutzung eines Balkons im Obergeschoss
Parkmöglichkeiten & Infrastruktur
Zwei PKW-Abstellplätze sind der Einheit fix zugeordnet und bereits im Angebot inkludiert. Zusätzlich werden Kundenparkplätze direkt vor Ort errichtet, wodurch eine komfortable Erreichbarkeit für Besucher gewährleistet ist.
Die Verkehrsanbindung ist ausgezeichnet – Busverbindungen befinden sich in unmittelbarer Nähe und ermöglichen eine unkomplizierte Anreise für Mitarbeiter und Kunden.
Fazit
Diese moderne Büro- bzw. Praxisfläche bietet ideale Voraussetzungen für Unternehmen, die Wert auf eine hochwertige Arbeitsumgebung, gute Erreichbarkeit und ein repräsentatives Umfeld legen.
Nutzen Sie diese Gelegenheit und verwirklichen Sie Ihre Geschäftsidee an einem attraktiven Standort in Oberösterreich.
Vereinbaren Sie noch heute einen Besichtigungstermin – wir freuen uns auf Ihre Anfrage!
Infrastruktur / Entfernungen
Gesundheit
Arzt <500m
Apotheke <500m
Klinik <1.000m
Krankenhaus <10.000m
Kinder & Schulen
Schule <500m
Kindergarten <500m
Universität <7.500m
Höhere Schule <5.000m
Nahversorgung
Supermarkt <500m
Bäckerei <500m
Einkaufszentrum <500m
Sonstige
Bank <500m
Geldautomat <500m
Post <500m
Polizei <1.000m
Verkehr
Bus <500m
Autobahnanschluss <2.500m
Straßenbahn <8.000m
Bahnhof <7.000m
Flughafen <9.000m
Angaben Entfernung Luftlinie / Quelle: OpenStreetMap
Objektdaten
Ausstattung
- Räume veränderbar
- Gartennutzung
- Barrierefrei
- DV Verkabelung
- Teeküche
- Pantry Küche
- Fliesenboden
- Kunststoffboden
- Linoleumboden
- Zentralheizung
- Fußbodenheizung
- Befeuerung mit Holz
- Flachdach
- Massiv Bauweise
Zustand
- Zustand
- NEUWERTIG
- Baujahr
- 2024
- Alter
- NEUBAU
- HWB
- 48 kWh/m² pro Jahr
- Klasse HWB
- B
- fGEE
- 0.74
- Klasse fGEE
- B
Flächen
- Anzahl der Zimmer
- 4
- Anzahl der sep. WCs
- 2
- Stellplätze
- 2
- Gesamtfläche
- 113m²
- Freifläche
- 24m²
- Bürofläche
- 89m²
Kosten
- Gesamtmiete Brutto
- € 1.583,46
- Miete
- € 1.037,50
- Betriebskosten
- € 282,05
- Heizkosten
- € 56,41
- Umsatzsteuer
- € 275,19
Verwaltung
- Verfügbar ab
- Kurzfristig
- Mietdauer
- bis 3,0 Jahre
Büros zum Mieten im Umkreis von Gallneukirchen
Büros zum Mieten im Umkreis von Gallneukirchen
Büros zum Mieten in Österreich
Andere Besucher suchen nach...
- Grundstücke kaufen in 3400 Weidlingbach
- Wohnungen kaufen in 4663 Laakirchen
- Häuser in 7471 Rechnitz
- Wohnungen in 2410 Hainburg an der Donau
- Häuser kaufen in 2432 Schwadorf
- Wohnungen kaufen in 3002 Purkersdorf
- Häuser in 3150 Wilhelmsburg
- Wohnungen kaufen in 3470 Engelmannsbrunn
- Grundstücke kaufen im Bezirk Mattersburg
- Grundstücke kaufen im Bezirk Gmunden