Neuwertiges Bürohaus in Gallneukirchen – Top Ausstattung, ideale Lage!
-
2024
-
Sofort
Beschreibung
Willkommen in Ihrem neuen Büro- oder Praxisraum in der charmanten Stadt Gallneukirchen in Oberösterreich!
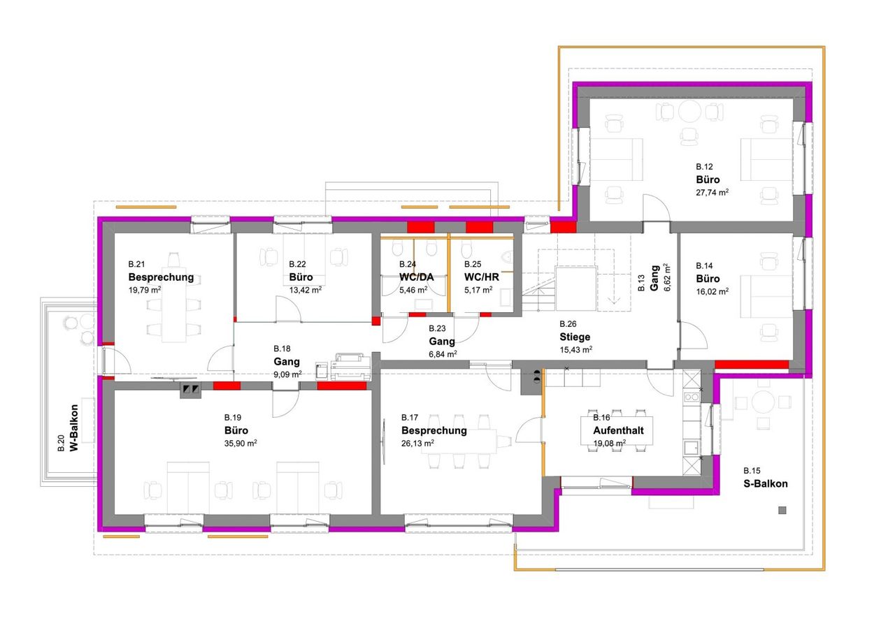
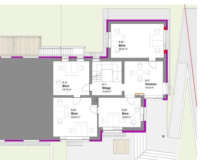
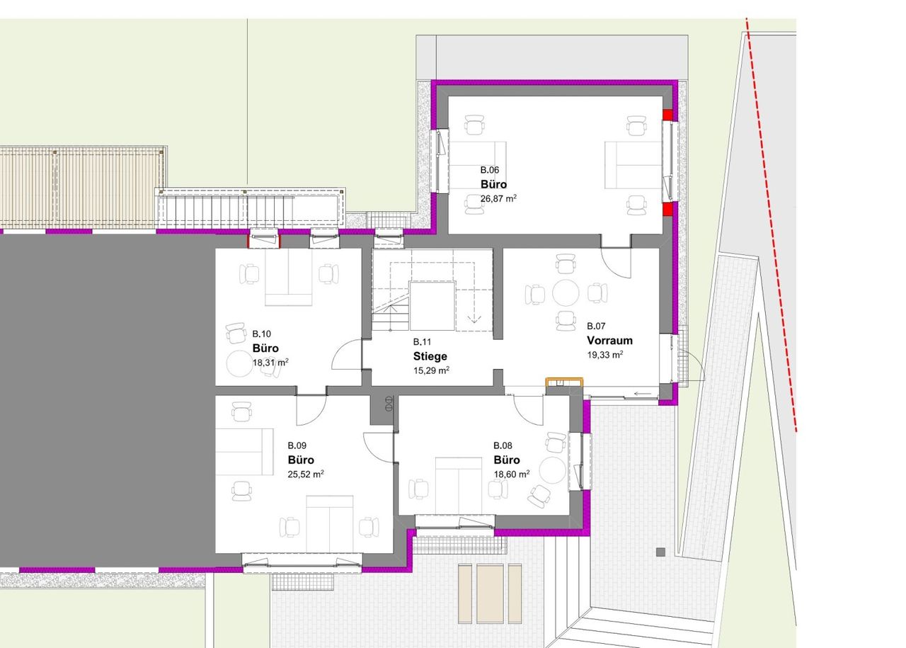
Diese neuwertige Bürofläche von beeindruckenden 299,89 m² bietet Ihnen nicht nur genügend Platz für kreative Entfaltung, sondern auch eine ideale Umgebung für Ihr Unternehmen. Mit einer monatlichen Miete von 4.195,36 € ist dies die perfekte Gelegenheit, sich in einer der aufstrebendsten Regionen Oberösterreichs niederzulassen.
Die Räumlichkeiten sind mit modernsten Annehmlichkeiten ausgestattet, die den Arbeitsalltag erleichtern und zur Steigerung der Produktivität beitragen. Genießen Sie die Vorteile einer Fußbodenheizung, die für ein angenehmes Raumklima sorgt, sowie eine effiziente Zentralheizung. Zudem profitieren Sie von einem hochwertigen Kunststoffboden, der nicht...
Willkommen in Ihrem neuen Büro- oder Praxisraum in der charmanten Stadt Gallneukirchen in Oberösterreich!
Diese neuwertige Bürofläche von beeindruckenden 299,89 m² bietet Ihnen nicht nur genügend Platz für kreative Entfaltung, sondern auch eine ideale Umgebung für Ihr Unternehmen. Mit einer monatlichen Miete von 4.195,36 € ist dies die perfekte Gelegenheit, sich in einer der aufstrebendsten Regionen Oberösterreichs niederzulassen.
Die Räumlichkeiten sind mit modernsten Annehmlichkeiten ausgestattet, die den Arbeitsalltag erleichtern und zur Steigerung der Produktivität beitragen. Genießen Sie die Vorteile einer Fußbodenheizung, die für ein angenehmes Raumklima sorgt, sowie eine effiziente Zentralheizung. Zudem profitieren Sie von einem hochwertigen Kunststoffboden, der nicht nur pflegeleicht ist, sondern auch eine ansprechende Optik bietet.
Die Bürofläche verfügt über zwei WCs und eine gut ausgestattete Teeküche, die Ihnen und Ihren Mitarbeitern den Alltag versüßt. Die DV-/EDV-Verkabelung sorgt für eine reibungslose Kommunikation und optimale Arbeitsbedingungen. Ob für Meetings, kreative Brainstormings oder individuelle Beratungen – hier finden Sie den perfekten Raum für Ihre Visionen.
Ein weiteres Highlight ist der beeindruckende Ausblick, der sowohl die Stadt als auch die umliegende grüne Landschaft umfasst. Stellen Sie sich vor, wie Ihre Mitarbeiter in der Mittagspause die Aussicht genießen oder bei einem inspirierenden Blick nach draußen neue Ideen entwickeln.
Für Ihre Kunden und Mitarbeiter stehen insgesamt acht Stellplätze zur Verfügung, was die Anreise zu Ihrem neuen Standort angenehm gestaltet. Die Verkehrsanbindung ist durch die Nähe zu Busverbindungen optimal, sodass sowohl öffentliche Verkehrsmittel als auch das Auto leicht genutzt werden können.
Die Lage könnte nicht besser sein: In unmittelbarer Nähe finden Sie alles, was Sie für den täglichen Bedarf benötigen. Ärzte, Apotheken, Kliniken, Schulen, Kindergärten sowie Supermärkte und Bäckereien sind schnell erreichbar. Auch ein Einkaufszentrum sorgt dafür, dass Sie und Ihre Mitarbeiter in der Freizeit bestens versorgt sind.
Nutzen Sie die Chance, Ihre Geschäftsidee in diesem modernen Büro-/Praxishaus in Gallneukirchen zum Leben zu erwecken. Vereinbaren Sie noch heute einen Besichtigungstermin und überzeugen Sie sich selbst von den zahlreichen Vorteilen, die diese Immobilie zu bieten hat. Hier finden Sie nicht nur einen Arbeitsplatz, sondern auch einen Ort, an dem Ideen wachsen und gedeihen können. Wir freuen uns auf Ihre Anfrage!
Infrastruktur / Entfernungen
Gesundheit
Arzt <500m
Apotheke <500m
Klinik <1.000m
Krankenhaus <10.000m
Kinder & Schulen
Schule <500m
Kindergarten <500m
Universität <7.500m
Höhere Schule <5.000m
Nahversorgung
Supermarkt <500m
Bäckerei <500m
Einkaufszentrum <500m
Sonstige
Bank <500m
Geldautomat <500m
Post <500m
Polizei <1.000m
Verkehr
Bus <500m
Autobahnanschluss <2.500m
Straßenbahn <8.000m
Bahnhof <7.000m
Flughafen <9.000m
Angaben Entfernung Luftlinie / Quelle: OpenStreetMap
Objektdaten
Ausstattung
- Räume veränderbar
- Gartennutzung
- DV Verkabelung
- Teeküche
- Einbauküche
- Kunststoffboden
- Zentralheizung
- Fußbodenheizung
- Solar
- Flachdach
- Massiv Bauweise
Zustand
- Zustand
- NEUWERTIG
- Baujahr
- 2024
- Alter
- NEUBAU
- HWB
- 48 kWh/m² pro Jahr
- Klasse HWB
- B
- fGEE
- 0.74
- Klasse fGEE
- B
Flächen
- Anzahl der sep. WCs
- 2
- Stellplätze
- 8
- Gesamtfläche
- 300m²
- Bürofläche
- 300m²
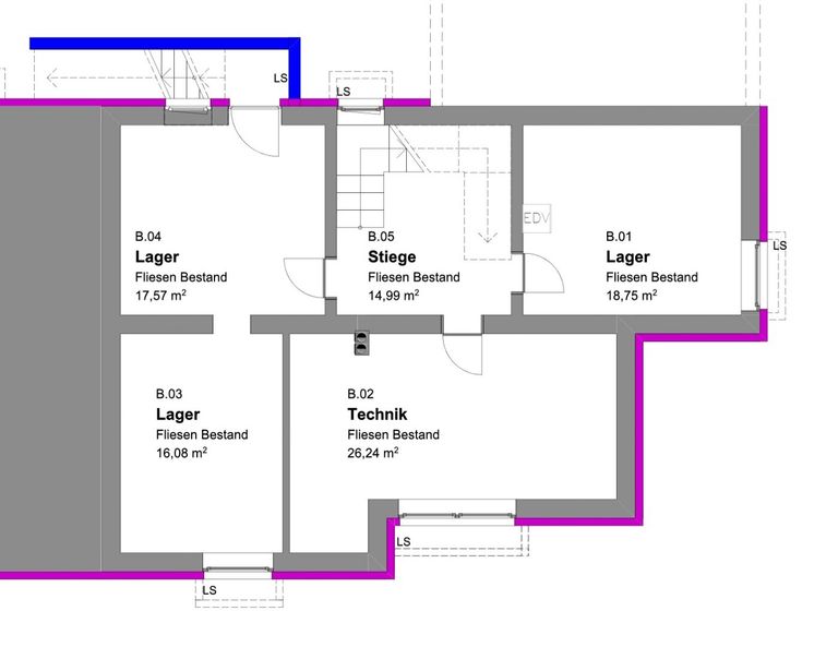
- Kellerfläche
- 45m²
Kosten
- Gesamtmiete Brutto
- € 4.195,36
- Miete
- € 2.750,00
- Betriebskosten
- € 746,13
- Heizkosten
- € 96,83
- Umsatzsteuer
- € 718,60
Verwaltung
- Verfügbar ab
- Sofort
Büros zum Mieten im Umkreis von Gallneukirchen
Büros zum Mieten im Umkreis von Gallneukirchen
Büros zum Mieten in Österreich
Andere Besucher suchen nach...
- Grundstücke kaufen in 3400 Weidlingbach
- Wohnungen kaufen in 4663 Laakirchen
- Häuser in 7471 Rechnitz
- Wohnungen in 2410 Hainburg an der Donau
- Häuser kaufen in 2432 Schwadorf
- Wohnungen kaufen in 3002 Purkersdorf
- Häuser in 3150 Wilhelmsburg
- Wohnungen kaufen in 3470 Engelmannsbrunn
- Grundstücke kaufen im Bezirk Mattersburg
- Grundstücke kaufen im Bezirk Gmunden