PRAXIS/ORDINATION/KANZLEI/BÜRO/GESCHÄFTSLOKAL
€ 1.134 / Monat
€ 9 / m²
4600 Wels
Beschreibung
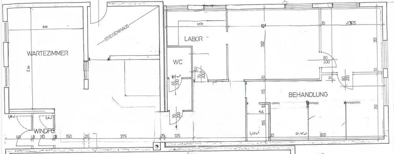
PRAXIS/ORDINATION/KANZLEI/BÜRO/GESCHÄFTSLOKAL Lage: Die Vogelweide ist ein ruhiges, beliebtes Wohnviertel von Wels, geprägt durch einen Mix an Wohnbauten älteren und neueren Semesters und Einfamilienhäusern ebenso aller Baujahre. Das Mietobjekt befindet sich im Erdgeschoß eines zweigeteilten einstöckigen Gebäudes in angenehmer verkehrsberuhigter Lage inmitten von Wohnhausanlagen. Allgemeine Beschreibung: Über lange Jahre stellte das Objekt die Räumlichkeiten einer allgemeinmedizinischen Praxis dar; als solches wurde es immer auf sehr gutem Standard gehalten und verfügt somit über sämtliche Räumlichkeiten für eine Artpraxis: - Anmeldebereich - Großer Warteraum - Behandlungsräume - Besprechungsräume - Laborbereich - Sanitäre Anlagen Der Zugang ist ebenerdig und das Objekt bequem über den...
PRAXIS/ORDINATION/KANZLEI/BÜRO/GESCHÄFTSLOKAL
Lage:
Die Vogelweide ist ein ruhiges, beliebtes Wohnviertel von Wels, geprägt durch einen Mix an Wohnbauten älteren und neueren Semesters und Einfamilienhäusern ebenso aller Baujahre. Das Mietobjekt befindet sich im Erdgeschoß eines zweigeteilten einstöckigen Gebäudes in angenehmer verkehrsberuhigter Lage inmitten von Wohnhausanlagen.
Allgemeine Beschreibung:
Über lange Jahre stellte das Objekt die Räumlichkeiten einer allgemeinmedizinischen Praxis dar; als solches wurde es immer auf sehr gutem Standard gehalten und verfügt somit über sämtliche Räumlichkeiten für eine Artpraxis:
- Anmeldebereich
- Großer Warteraum
- Behandlungsräume
- Besprechungsräume
- Laborbereich
- Sanitäre Anlagen
Der Zugang ist ebenerdig und das Objekt bequem über den Windfang von der Straße und den Parkplätzen aus zu erreichen, also ideal für eine Arztpraxis.
Aber selbstverständlich ist auch eine andere Nutzung möglich; sehr gut vorstellbar ist auch eine Kanzlei oder ein Geschäftslokal.
Keine Ablöse - sofort übernahmebereit!
Parken:
Parkplätze befinden sich unmittelbar vor dem Eingang, direkt davor ein Behindertenparkplatz.
Bei Interesse senden wir Ihnen gerne kostenlos und unverbindlich Detailunterlagen zu. Bei Fragen steht Ihnen Frau Mag. Claudia Kiener unter 0664/805565799 gerne zur Verfügung!
Wir bitten um Bekanntgabe Ihrer Kontaktdaten samt Postadresse, um Ihr Anliegen so rasch wie möglich bearbeiten zu können.
Lage:
Die Vogelweide ist ein ruhiges, beliebtes Wohnviertel von Wels, geprägt durch einen Mix an Wohnbauten älteren und neueren Semesters und Einfamilienhäusern ebenso aller Baujahre. Das Mietobjekt befindet sich im Erdgeschoß eines zweigeteilten einstöckigen Gebäudes in angenehmer verkehrsberuhigter Lage inmitten von Wohnhausanlagen.
Allgemeine Beschreibung:
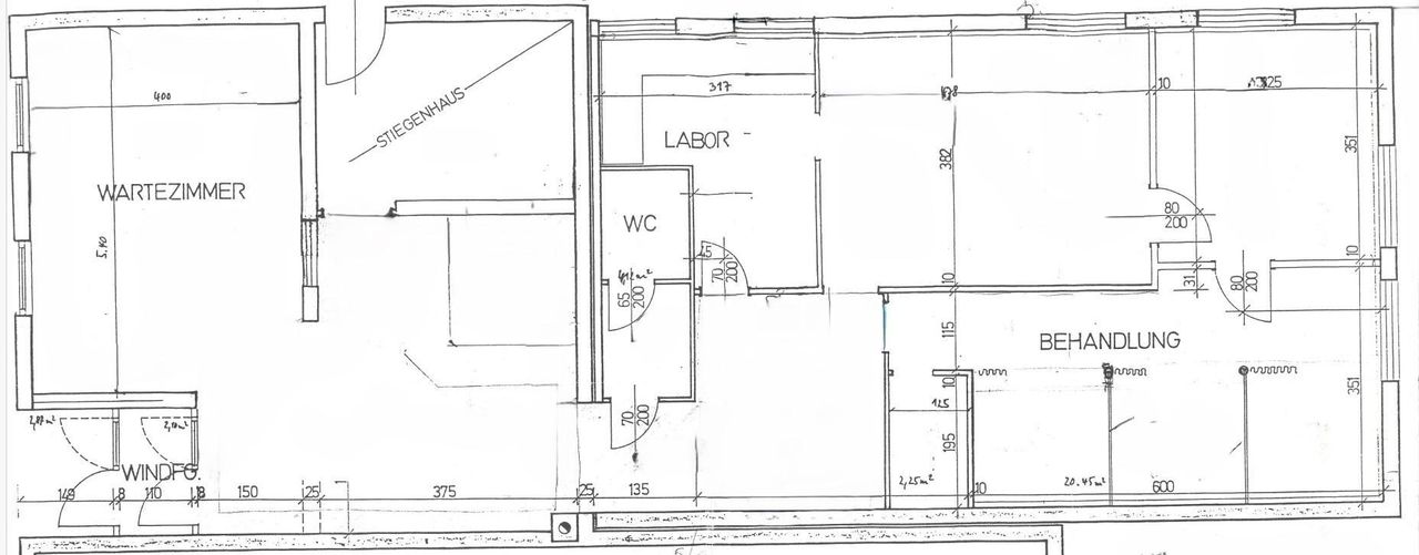
Über lange Jahre stellte das Objekt die Räumlichkeiten einer allgemeinmedizinischen Praxis dar; als solches wurde es immer auf sehr gutem Standard gehalten und verfügt somit über sämtliche Räumlichkeiten für eine Artpraxis:
- Anmeldebereich
- Großer Warteraum
- Behandlungsräume
- Besprechungsräume
- Laborbereich
- Sanitäre Anlagen
Der Zugang ist ebenerdig und das Objekt bequem über den Windfang von der Straße und den Parkplätzen aus zu erreichen, also ideal für eine Arztpraxis.
Aber selbstverständlich ist auch eine andere Nutzung möglich; sehr gut vorstellbar ist auch eine Kanzlei oder ein Geschäftslokal.
Keine Ablöse - sofort übernahmebereit!
Parken:
Parkplätze befinden sich unmittelbar vor dem Eingang, direkt davor ein Behindertenparkplatz.
Bei Interesse senden wir Ihnen gerne kostenlos und unverbindlich Detailunterlagen zu. Bei Fragen steht Ihnen Frau Mag. Claudia Kiener unter 0664/805565799 gerne zur Verfügung!
Wir bitten um Bekanntgabe Ihrer Kontaktdaten samt Postadresse, um Ihr Anliegen so rasch wie möglich bearbeiten zu können.
| Angaben gemäß gesetzlichem Erfordernis: | |||
| Miete | € | 984 | |
| Heizkosten | € | 150 | |
| Umsatzsteuer | € | 0 | |
| ------------------------------------------------------------------ | |||
| Gesamtbetrag | € | 1134 | |
| ------------------------------------------------------------------ | |||
| Heizwärmebedarf: | 277.0 kWh/(m²a) | ||
| Faktor Gesamtenergieeffizienz: | 1.71 | ||
Objektdaten
Flächen
- Anzahl der Zimmer
- 7.5
- Anzahl der sep. WCs
- 1
- Bürofläche
- 123m²
- Nutzfläche
- 123m²
Kosten
- Kaltmiete
- € 1.134,00
- Nebenkosten
- € 150,00
- Kaution
- € 4.500,00
- Heizkosten Brutto
- € 150,00
Büros zum Mieten in Österreich
Büros zum Mieten in Österreich
Andere Besucher suchen nach...
- Grundstücke kaufen in 3400 Weidlingbach
- Wohnungen kaufen in 4663 Laakirchen
- Häuser in 7471 Rechnitz
- Wohnungen in 2410 Hainburg an der Donau
- Häuser kaufen in 2432 Schwadorf
- Wohnungen kaufen in 3002 Purkersdorf
- Häuser in 3150 Wilhelmsburg
- Wohnungen kaufen in 3470 Engelmannsbrunn
- Grundstücke kaufen im Bezirk Mattersburg
- Grundstücke kaufen im Bezirk Gmunden