360° TOUR // KLASSISCHES ALTBAUBÜRO nahe LUGECK
-
sofort
Beschreibung
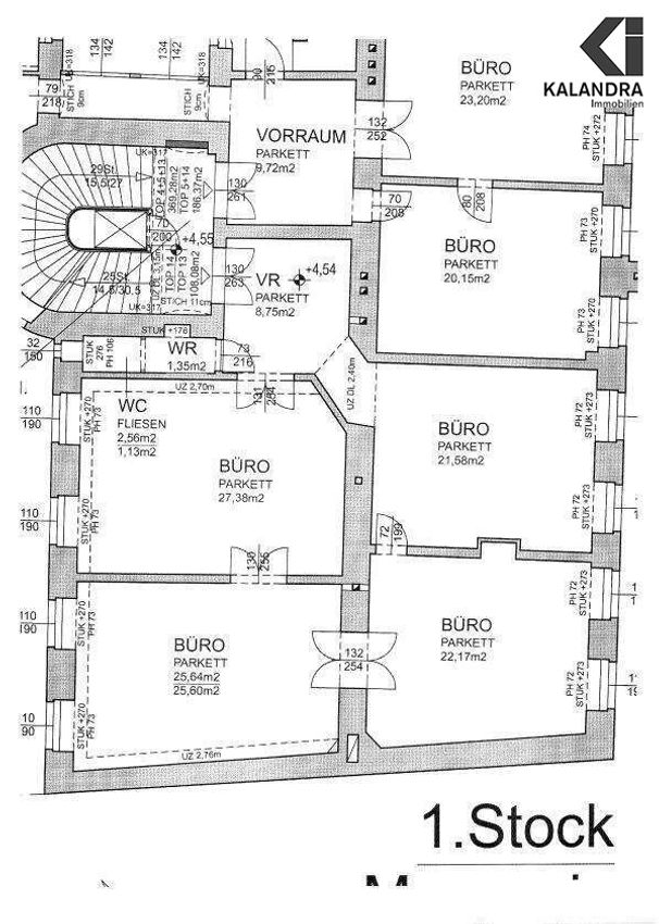
INNENSTADTBÜRO im STILHAUS nahe LUGECK Dieses im 2.Liftstock in zwei weite Innenhöfe orientierte Stilbüro, ist ruhig situiert und bietet folgende Raumaufteilung: Vorraum (ca. 9m²), zentraler Flur, zwei große ostseitige Büroräume (ca. 27m² & 26m²), drei westseitige Räume (ca. 8m², 9m² & 18m²), separates WC. Ausstattung: - in den Büroräumen typischer Eichen-Parkettboden - teilweise Flügeltüren - die abgebildete Möblierung kann auf Wunsch gegen Ablöse übernommen werden - Gas-Etagenheizung Angeboten wird ein auf 10 Jahre befristeter Mietvertrag mit 3-jährigem, mieterseitgen Kündigungsverzicht. 360° Tour: https://360.kalandra.at/view/portal/id/VRN1F
Infrastruktur / Entfernungen
Gesundheit Arzt <500m Apotheke <500m Klinik <500m Krankenhaus <1.000m Kinder & Schulen Schule <500m Kindergarten <500m...
INNENSTADTBÜRO im STILHAUS nahe LUGECK
Dieses im 2.Liftstock in zwei weite Innenhöfe orientierte Stilbüro, ist ruhig situiert und bietet folgende
Raumaufteilung:
Vorraum (ca. 9m²), zentraler Flur, zwei große ostseitige Büroräume (ca. 27m² & 26m²), drei westseitige Räume (ca. 8m², 9m² & 18m²), separates WC.
Ausstattung:
- in den Büroräumen typischer Eichen-Parkettboden
- teilweise Flügeltüren
- die abgebildete Möblierung kann auf Wunsch gegen Ablöse übernommen werden
- Gas-Etagenheizung
Angeboten wird ein auf 10 Jahre befristeter Mietvertrag mit 3-jährigem, mieterseitgen Kündigungsverzicht.
360° Tour:
https://360.kalandra.at/view/portal/id/VRN1F
Infrastruktur / Entfernungen
Gesundheit
Arzt <500m
Apotheke <500m
Klinik <500m
Krankenhaus <1.000m
Kinder & Schulen
Schule <500m
Kindergarten <500m
Universität <500m
Höhere Schule <1.000m
Nahversorgung
Supermarkt <500m
Bäckerei <500m
Einkaufszentrum <1.000m
Sonstige
Geldautomat <500m
Bank <500m
Post <500m
Polizei <500m
Verkehr
Bus <500m
U-Bahn <500m
Straßenbahn <500m
Bahnhof <500m
Autobahnanschluss <3.500m
Angaben Entfernung Luftlinie / Quelle: OpenStreetMap
Objektdaten
Ausstattung
- Etage Heizung
- Befeuerung mit Gas
- Personen Fahrstuhl
Dokumente / Links
Zustand
- Zustand
- NEUWERTIG
- Baujahr
- 1900
- HWB
- 117.1 kWh/m² pro Jahr
- Klasse HWB
- D
- fGEE
- 3.16
- Klasse fGEE
- E
Flächen
- Anzahl der Zimmer
- 4
- Anzahl der sep. WCs
- 1
- Nutzfläche
- 110m²
Kosten
- Gesamtmiete Brutto
- € 2.320,00
- Miete
- € 1.611,33
- Betriebskosten
- € 322,00
- Umsatzsteuer
- € 386,67
Verwaltung
- Verfügbar ab
- sofort
- Mietdauer
- bis 3,0 Jahre
Büros zum Mieten im Umkreis von Gemeindebezirk Innere Stadt
- Bezirk Gemeindebezirk Innere Stadt
- Bezirk Gemeindebezirk Innere Stadt
- Bezirk Gemeindebezirk Innere Stadt
- Bezirk Gemeindebezirk Wieden
- Bezirk Gemeindebezirk Wieden
- Bezirk Gemeindebezirk Wieden
- Bezirk Gemeindebezirk Landstrasse
- Bezirk Gemeindebezirk Landstrasse
- Bezirk Gemeindebezirk Landstrasse
- Bezirk Gemeindebezirk Neubau
Büros zum Mieten im Umkreis von Gemeindebezirk Innere Stadt
Büros zum Mieten in Österreich
Andere Besucher suchen nach...
- Grundstücke kaufen in 3400 Weidlingbach
- Wohnungen kaufen in 4663 Laakirchen
- Häuser in 7471 Rechnitz
- Wohnungen in 2410 Hainburg an der Donau
- Häuser kaufen in 2432 Schwadorf
- Wohnungen kaufen in 3002 Purkersdorf
- Häuser in 3150 Wilhelmsburg
- Wohnungen kaufen in 3470 Engelmannsbrunn
- Grundstücke kaufen im Bezirk Mattersburg
- Grundstücke kaufen im Bezirk Gmunden