360 TOUR // REPRÄSENTATIVES ALTBAUBÜRO nächst STEPHANSDOM
€ 7.001 / Monat
€ 23 / m²
1010 Wien
-
nach Vereinabarung
Beschreibung
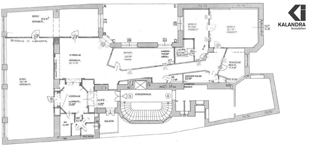
Modernes ALTBAUBÜRO nahe STEPHANSPLATZ Dieses Innenstadtbüro lliegt 1.Liftstock in einem gepflegten Jahrhundertwendegebäudes und bietet folgende Raumaufteilung: Entree, 80m² großes Grossraumbüro, ein weiteres straßenseitiges Zimmer, 37m² großes Vorzimmer mit Augang auf die innenhofseitige Terrasse, zwei hofseitiges Zimmer ( je ca. 16 & 19m²), Gang zu 2 weiteren Zimmer ( 16m²& 30m²) in einen weiteren Innenhof orientiert, 11m² Teeküche, Serverraum, 3 Wcs Ausstattung: • Parkettboden • Hauszentralheizung Die anteiligen Heizkosten werden monatlich zusätzlich gesondert vorgeschrieben und nach tatsächlichem Verbrauch abgerechnet. Kautionsbetrag: 6 Bruttomonatsmieten Angeboten wird ein auf 10 Jahre befristetes Mietverhältnis mit dreijährigem, mieterseitigen Kündigungsverzicht. Das Büro wird frisch ausgemalt übergeben. _________________...
Modernes ALTBAUBÜRO nahe STEPHANSPLATZ
Dieses Innenstadtbüro lliegt 1.Liftstock in einem gepflegten Jahrhundertwendegebäudes und bietet folgende
Raumaufteilung:
Entree, 80m² großes Grossraumbüro, ein weiteres straßenseitiges Zimmer,
37m² großes Vorzimmer mit Augang auf die innenhofseitige Terrasse, zwei hofseitiges Zimmer ( je ca. 16 & 19m²), Gang zu 2 weiteren Zimmer ( 16m²& 30m²) in einen weiteren Innenhof orientiert, 11m² Teeküche, Serverraum, 3 Wcs
Ausstattung:
• Parkettboden
• Hauszentralheizung
Die anteiligen Heizkosten werden monatlich zusätzlich gesondert vorgeschrieben und nach tatsächlichem Verbrauch abgerechnet.
Kautionsbetrag: 6 Bruttomonatsmieten
Angeboten wird ein auf 10 Jahre befristetes Mietverhältnis mit dreijährigem, mieterseitigen Kündigungsverzicht.
Das Büro wird frisch ausgemalt übergeben.
_________________
Office near STEPHANSPLATZ
This downtown office is located on the 1st floor of a well-kept turn-of-the-century building and offers the following
Room layout:
Entree, 80m² large open plan office, another room on the street side,
37m² large anteroom with access to the patio-side terrace, two courtyard-side rooms (each approx. 16 & 19m²), access to 2 further rooms (16m² & 30m²) oriented to another patio, 11m² tea kitchen, server room, 3 Wcs,
Equipment:
- parquet floor
- house central heating
The proportional heating costs are additionally separately prescribed and accounted for according to actual consumption.
Deposit amount: 6 gross monthly rents
A tenancy agreement limited to 10 years with a three-year tenant´s waiver of termination is offered.
The office is handed over freshly painted.
Dieses Innenstadtbüro lliegt 1.Liftstock in einem gepflegten Jahrhundertwendegebäudes und bietet folgende
Raumaufteilung:
Entree, 80m² großes Grossraumbüro, ein weiteres straßenseitiges Zimmer,
37m² großes Vorzimmer mit Augang auf die innenhofseitige Terrasse, zwei hofseitiges Zimmer ( je ca. 16 & 19m²), Gang zu 2 weiteren Zimmer ( 16m²& 30m²) in einen weiteren Innenhof orientiert, 11m² Teeküche, Serverraum, 3 Wcs
Ausstattung:
• Parkettboden
• Hauszentralheizung
Die anteiligen Heizkosten werden monatlich zusätzlich gesondert vorgeschrieben und nach tatsächlichem Verbrauch abgerechnet.
Kautionsbetrag: 6 Bruttomonatsmieten
Angeboten wird ein auf 10 Jahre befristetes Mietverhältnis mit dreijährigem, mieterseitigen Kündigungsverzicht.
Das Büro wird frisch ausgemalt übergeben.
_________________
Office near STEPHANSPLATZ
This downtown office is located on the 1st floor of a well-kept turn-of-the-century building and offers the following
Room layout:
Entree, 80m² large open plan office, another room on the street side,
37m² large anteroom with access to the patio-side terrace, two courtyard-side rooms (each approx. 16 & 19m²), access to 2 further rooms (16m² & 30m²) oriented to another patio, 11m² tea kitchen, server room, 3 Wcs,
Equipment:
- parquet floor
- house central heating
The proportional heating costs are additionally separately prescribed and accounted for according to actual consumption.
Deposit amount: 6 gross monthly rents
A tenancy agreement limited to 10 years with a three-year tenant´s waiver of termination is offered.
The office is handed over freshly painted.
Infrastruktur / Entfernungen
Gesundheit
Arzt <500m
Apotheke <500m
Klinik <500m
Krankenhaus <1.500m
Kinder & Schulen
Schule <500m
Kindergarten <1.000m
Universität <500m
Höhere Schule <500m
Nahversorgung
Supermarkt <500m
Bäckerei <500m
Einkaufszentrum <1.000m
Sonstige
Geldautomat <500m
Bank <500m
Post <500m
Polizei <500m
Verkehr
Bus <500m
U-Bahn <500m
Straßenbahn <500m
Bahnhof <500m
Autobahnanschluss <3.500m
Angaben Entfernung Luftlinie / Quelle: OpenStreetMap
Objektdaten
Ausstattung
- Zentralheizung
- Personen Fahrstuhl
Dokumente / Links
Zustand
- Zustand
- NEUWERTIG
- Baujahr
- 1900
- HWB
- 77.23 kWh/m² pro Jahr
Flächen
- Anzahl der Zimmer
- 7
- Anzahl der sep. WCs
- 3
- Anzahl der Terrassen
- 1
- Nutzfläche
- 306m²
- Terrassenfläche
- 1m²
Kosten
- Gesamtmiete Brutto
- € 7.000,80
- Kaution
- € 19.000,00
- Miete
- € 5.000,00
- Betriebskosten
- € 834,00
- Heizkosten
- € 106,60
- Umsatzsteuer
- € 1.177,46
Verwaltung
- Verfügbar ab
- nach Vereinabarung
- Mietdauer
- bis 10,0 Jahre
Büros zum Mieten im Umkreis von Gemeindebezirk Innere Stadt
- Bezirk Gemeindebezirk Innere Stadt
- Bezirk Gemeindebezirk Innere Stadt
- Bezirk Gemeindebezirk Innere Stadt
- Bezirk Gemeindebezirk Wieden
- Bezirk Gemeindebezirk Wieden
- Bezirk Gemeindebezirk Wieden
- Bezirk Gemeindebezirk Landstrasse
- Bezirk Gemeindebezirk Landstrasse
- Bezirk Gemeindebezirk Landstrasse
- Bezirk Gemeindebezirk Neubau
Büros zum Mieten im Umkreis von Gemeindebezirk Innere Stadt
Büros zum Mieten in Österreich
Andere Besucher suchen nach...
- Grundstücke kaufen in 3400 Weidlingbach
- Wohnungen kaufen in 4663 Laakirchen
- Häuser in 7471 Rechnitz
- Wohnungen in 2410 Hainburg an der Donau
- Häuser kaufen in 2432 Schwadorf
- Wohnungen kaufen in 3002 Purkersdorf
- Häuser in 3150 Wilhelmsburg
- Wohnungen kaufen in 3470 Engelmannsbrunn
- Grundstücke kaufen im Bezirk Mattersburg
- Grundstücke kaufen im Bezirk Gmunden