360° TOUR // REPRÄSENTATIVES ALTBAUBÜRO nahe ALBERTINA
€ 17.727 / Monat
€ 27 / m²
1010 Wien
-
n. Adaptierung
Beschreibung
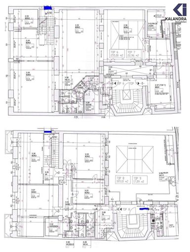
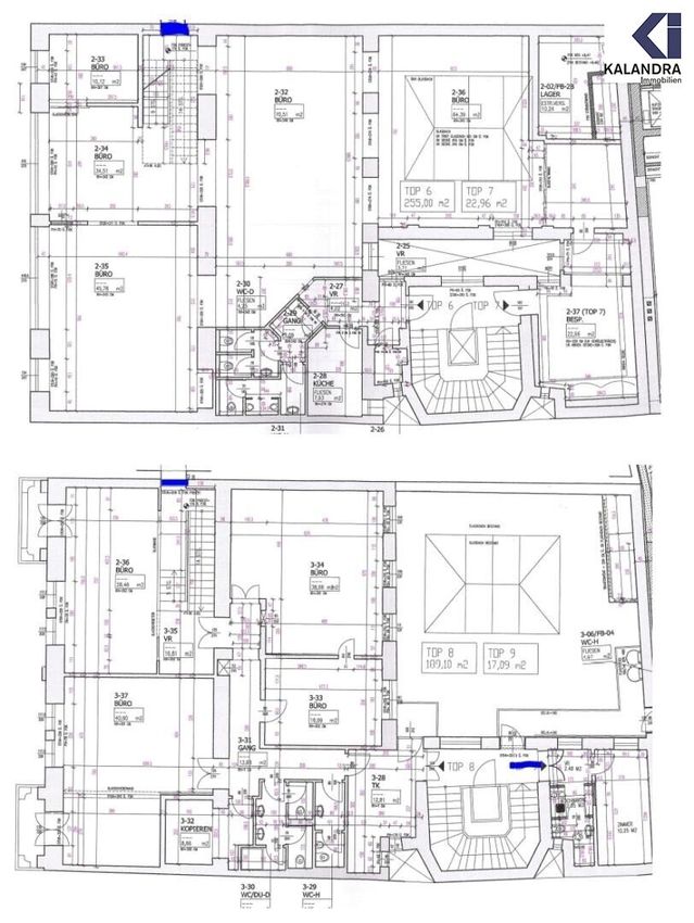
KLASSISCHES ALTBAUBÜRO nahe "NEUER MARKT" Die geräumigen Büroflächen liegen im 2., 3. und 4. Liftstock eines repräsentativen Stilhauses und bieten folgende Raumaufteilung: Top 6, 7, 8: (2. & 3. Stock - 467,06m²): 2. Stock: Vorraum, 3 hintereinander angelegte Großraumbüros, ein weiterer Büroraum, Abstellraum, Küche, 2 separate WC-Anlagen; Innenstiege in den 3. Stock: ein Großraumbüro mit 2 Balkonen, 3 weitere Büroräume, Abstellraum, Küche, 2 separate WC-Anlagen. Top 10 (4.Stock - 193,58m²): Vorraum, 6 Zimmer, Server-/ Abstellraum, Küche, 2 getrennte WC-Anlagen (Herren/ Damen). Ausstattung: - der Bürobereich ist durchgehend Eichen-Parkettboden ausgelegt - die Sanitär- & Abstellräume sind weiß/ grau verfliest - ausgestattete...
KLASSISCHES ALTBAUBÜRO nahe "NEUER MARKT"
Die geräumigen Büroflächen liegen im 2., 3. und 4. Liftstock eines repräsentativen Stilhauses und bieten folgende
Raumaufteilung:
Top 6, 7, 8: (2. & 3. Stock - 467,06m²):
2. Stock:
Vorraum, 3 hintereinander angelegte Großraumbüros, ein weiterer Büroraum, Abstellraum, Küche, 2 separate WC-Anlagen;
Innenstiege in den
3. Stock:
ein Großraumbüro mit 2 Balkonen, 3 weitere Büroräume, Abstellraum, Küche, 2 separate WC-Anlagen.
Top 10 (4.Stock - 193,58m²):
Vorraum, 6 Zimmer, Server-/ Abstellraum, Küche, 2 getrennte WC-Anlagen (Herren/ Damen).
Ausstattung:
- der Bürobereich ist durchgehend Eichen-Parkettboden ausgelegt
- die Sanitär- & Abstellräume sind weiß/ grau verfliest
- ausgestattete Küche
Zur Berücksichtigung individueller Mieterwünsche, wurden die Oberflächen noch nicht final adaptiert und kann entweder noch eine Sanierung gemäß Mieterwunsch (in Absprache) erfolgen oder es wird eine Baukostenbeteiligung angeboten.
Die Vermietung erfolgt ausschließlich für Bürozwecke.
Mietvertragsdauer: 10 Jahre befistet
Kündigungsverzicht: 3 Jahre
Kaution: 3-6 Bruttomonatsmieten (Bankgarantie möglich)
Heizkostenakonto: Euro 660,64
Ein Energieausweis wurde beim Eigentümer angefordert und wird nachgereicht.
360° Tour_top 6.7.8
https://360.kalandra.at/view/portal/id/VZRY9
360° Tour_top 10
https://360.kalandra.at/view/portal/id/VZRYF
Die geräumigen Büroflächen liegen im 2., 3. und 4. Liftstock eines repräsentativen Stilhauses und bieten folgende
Raumaufteilung:
Top 6, 7, 8: (2. & 3. Stock - 467,06m²):
2. Stock:
Vorraum, 3 hintereinander angelegte Großraumbüros, ein weiterer Büroraum, Abstellraum, Küche, 2 separate WC-Anlagen;
Innenstiege in den
3. Stock:
ein Großraumbüro mit 2 Balkonen, 3 weitere Büroräume, Abstellraum, Küche, 2 separate WC-Anlagen.
Top 10 (4.Stock - 193,58m²):
Vorraum, 6 Zimmer, Server-/ Abstellraum, Küche, 2 getrennte WC-Anlagen (Herren/ Damen).
Ausstattung:
- der Bürobereich ist durchgehend Eichen-Parkettboden ausgelegt
- die Sanitär- & Abstellräume sind weiß/ grau verfliest
- ausgestattete Küche
Zur Berücksichtigung individueller Mieterwünsche, wurden die Oberflächen noch nicht final adaptiert und kann entweder noch eine Sanierung gemäß Mieterwunsch (in Absprache) erfolgen oder es wird eine Baukostenbeteiligung angeboten.
Die Vermietung erfolgt ausschließlich für Bürozwecke.
Mietvertragsdauer: 10 Jahre befistet
Kündigungsverzicht: 3 Jahre
Kaution: 3-6 Bruttomonatsmieten (Bankgarantie möglich)
Heizkostenakonto: Euro 660,64
Ein Energieausweis wurde beim Eigentümer angefordert und wird nachgereicht.
360° Tour_top 6.7.8
https://360.kalandra.at/view/portal/id/VZRY9
360° Tour_top 10
https://360.kalandra.at/view/portal/id/VZRYF
Infrastruktur / Entfernungen
Gesundheit
Arzt <500m
Apotheke <500m
Klinik <1.000m
Krankenhaus <1.500m
Kinder & Schulen
Schule <500m
Kindergarten <1.000m
Universität <500m
Höhere Schule <500m
Nahversorgung
Supermarkt <500m
Bäckerei <500m
Einkaufszentrum <500m
Sonstige
Geldautomat <500m
Bank <500m
Post <500m
Polizei <500m
Verkehr
Bus <500m
U-Bahn <500m
Straßenbahn <500m
Bahnhof <500m
Autobahnanschluss <3.500m
Angaben Entfernung Luftlinie / Quelle: OpenStreetMap
Objektdaten
Ausstattung
- Zentralheizung
- Fern Befeuerung
- Personen Fahrstuhl
Dokumente / Links
- 360° Tour_Top 6.7.8
- 360° Tour_top 10
- Plan_top 6-7-8
- 360° Tour_18006
- 360° Tour_18007
- Plan_top 10
- Video
Zustand
- Zustand
- GEPFLEGT
- Baujahr
- 1900
- HWB
- 114 kWh/m² pro Jahr
- fGEE
- 2.63
Flächen
- Anzahl der Zimmer
- 18
- Anzahl der sep. WCs
- 10
- Anzahl der Balkone
- 2
- Nutzfläche
- 661m²
Kosten
- Gesamtmiete Brutto
- € 17.727,36
- Kaution
- € 53.379,25
- Miete
- € 13.213,00
- Betriebskosten
- € 1.361,61
- Sonstige Kosten
- € 198,19
- Umsatzsteuer
- € 2.954,56
Verwaltung
- Verfügbar ab
- n. Adaptierung
- Mietdauer
- bis 10,0 Jahre
Büros zum Mieten im Umkreis von Gemeindebezirk Innere Stadt
- Bezirk Gemeindebezirk Innere Stadt
- Bezirk Gemeindebezirk Innere Stadt
- Bezirk Gemeindebezirk Innere Stadt
- Bezirk Gemeindebezirk Wieden
- Bezirk Gemeindebezirk Wieden
- Bezirk Gemeindebezirk Wieden
- Bezirk Gemeindebezirk Landstrasse
- Bezirk Gemeindebezirk Landstrasse
- Bezirk Gemeindebezirk Landstrasse
- Bezirk Gemeindebezirk Neubau
Büros zum Mieten im Umkreis von Gemeindebezirk Innere Stadt
Büros zum Mieten in Österreich
Andere Besucher suchen nach...
- Grundstücke kaufen in 3400 Weidlingbach
- Wohnungen kaufen in 4663 Laakirchen
- Häuser in 7471 Rechnitz
- Wohnungen in 2410 Hainburg an der Donau
- Häuser kaufen in 2432 Schwadorf
- Wohnungen kaufen in 3002 Purkersdorf
- Häuser in 3150 Wilhelmsburg
- Wohnungen kaufen in 3470 Engelmannsbrunn
- Grundstücke kaufen im Bezirk Mattersburg
- Grundstücke kaufen im Bezirk Gmunden