ALL-INCLUSIVE - EXKLUSIVES PRIVATE OFFICE DIREKT AM GRABEN
Beschreibung
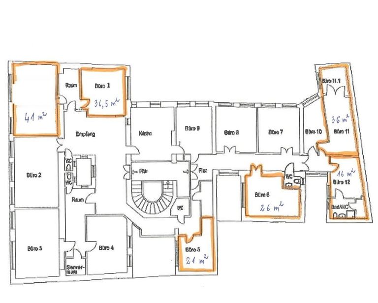
Zur Vermietung steht ein vollmöbliertes und gut geschnittenes 21 m² großes Büro mitten in der Innenstadt - ruhig gelegenes Einzelbüro mit hoher Privatsphäre, ideal für konzentriertes Arbeiten. Die Fläche eignet sich ideal für Freiberufler, kleine Teams oder als repräsentativer Standort für Kundentermine. Durch die zentrale Lage profitieren Sie von einer hervorragenden Erreichbarkeit, umliegender Infrastruktur und einem professionellen Arbeitsumfeld.
Das Büro bietet ausreichend Platz für Beratungs- oder Klientengespräche. Die moderne, gepflegte Umgebung trägt zu einem professionellen Auftreten gegenüber Kund*innen bei.
Eckdaten im Überblick:
Nutzfläche: ca. 21 m² Zimmer: 1 Lift: ja Klimaanlage: ja
Ausstattung & Leistungen – All Inclusive:
Der...
Zur Vermietung steht ein vollmöbliertes und gut geschnittenes 21 m² großes Büro mitten in der Innenstadt - ruhig gelegenes Einzelbüro mit hoher Privatsphäre, ideal für konzentriertes Arbeiten. Die Fläche eignet sich ideal für Freiberufler, kleine Teams oder als repräsentativer Standort für Kundentermine. Durch die zentrale Lage profitieren Sie von einer hervorragenden Erreichbarkeit, umliegender Infrastruktur und einem professionellen Arbeitsumfeld.
Das Büro bietet ausreichend Platz für Beratungs- oder Klientengespräche. Die moderne, gepflegte Umgebung trägt zu einem professionellen Auftreten gegenüber Kund*innen bei.
Eckdaten im Überblick:
Nutzfläche: ca. 21 m²
Zimmer: 1
Lift: ja
Klimaanlage: ja
Ausstattung & Leistungen – All Inclusive:
Der Mietpreis umfasst sämtliche Nebenkosten – von Energiekosten und Versicherung bis hin zu WLAN und regelmäßiger Reinigung. So profitieren Sie von einer transparenten Kostenstruktur und einem sofort einsatzbereiten, gepflegten Arbeitsumfeld.
In der monatlichen Miete sind folgende Leistungen bereits enthalten:
Nutzung der Geschäftsadresse
professioneller Empfangsservice
Reinigung und Betriebskosten
Mitbenutzung der Gemeinschaftsflächen
Sanitäranlagen
Eingangsbereich
Küche (Kaffee und Tee zur freien Entnahme)
Firmenschild im Eingangsbereich
Telefonservice für professionelle Erreichbarkeit
Zusätzlich stehen Ihnen im Haus ein servicierter Empfang für Post- und Gästebetreuung sowie zwei flexibel nutzbare Konferenzräume zur Verfügung:
Elegance Room für Besprechungen im kleineren Rahmen (bis zu 8 Personen)
Mit 24/7-Zugang, erstklassiger Infrastruktur und einer repräsentativen Geschäftsadresse bietet diese Büro-Suite eine hervorragende Möglichkeit, Ihr Unternehmen im Herzen Wiens stilvoll zu präsentieren.
Elegance Room für Besprechungen im kleineren Rahmen (bis zu 8 Personen)
Prestige Conference Room für Besprechungen (bis zu 15 Personen)
Kosten:
Monatliche Kosten all-inclusive : € 1.400,00,--
Kaution: 3 BMM
Kontakt:
Für Fragen und Besichtigungen kontaktieren Sie bitte Herrn Büer unter 0699 194 737 30 oder unter boris.bueer@wisionhome.at
Weiter Objekte finden Sie unter: www.wisionhome.at
Infrastruktur / Entfernungen
Gesundheit
Arzt <500m
Apotheke <500m
Klinik <1.000m
Krankenhaus <1.500m
Kinder & Schulen
Schule <500m
Kindergarten <1.000m
Universität <500m
Höhere Schule <1.000m
Nahversorgung
Supermarkt <500m
Bäckerei <500m
Einkaufszentrum <1.000m
Sonstige
Geldautomat <500m
Bank <500m
Post <500m
Polizei <500m
Verkehr
Bus <500m
U-Bahn <500m
Straßenbahn <1.000m
Bahnhof <500m
Autobahnanschluss <3.500m
Angaben Entfernung Luftlinie / Quelle: OpenStreetMap
Objektdaten
Ausstattung
- Klimatisiert
- Vollmöbliert
- Parkettboden
- Personen Fahrstuhl
Zustand
- Zustand
- MODERNISIERT
- Alter
- ALTBAU
- HWB
- 75.3 kWh/m² pro Jahr
- Klasse HWB
- C
- fGEE
- 1.05
- Klasse fGEE
- C
Flächen
- Anzahl der Zimmer
- 1
- Nutzfläche
- 21m²
Kosten
- Gesamtmiete Brutto
- € 1.400,00
- Miete
- € 1.166,67
- Umsatzsteuer
- € 233,33
Büros zum Mieten im Umkreis von Gemeindebezirk Innere Stadt
- Bezirk Gemeindebezirk Innere Stadt
- Bezirk Gemeindebezirk Innere Stadt
- Bezirk Gemeindebezirk Innere Stadt
- Bezirk Gemeindebezirk Wieden
- Bezirk Gemeindebezirk Wieden
- Bezirk Gemeindebezirk Wieden
- Bezirk Gemeindebezirk Landstrasse
- Bezirk Gemeindebezirk Landstrasse
- Bezirk Gemeindebezirk Landstrasse
- Bezirk Gemeindebezirk Neubau
Büros zum Mieten in Österreich
Andere Besucher suchen nach...
- Immobilien kaufen in 2601 Sollenau
- Immobilien in 4951 Polling im Innkreis, Oberösterreich
- Immobilien in 4742 Pram, Oberösterreich kaufen oder mieten
- Häuser kaufen in 2340 Mödling, Niederösterreich
- Häuser kaufen in 9421 Gemmersdorf, Kärnten
- Wohnungen / Eigentumswohnungen kaufen in 9431 St. Stefan, Kärnten
- Häuser kaufen in Bruck an der Leitha, Niederösterreich
- Immobilien mieten in Krems an der Donau, Niederösterreich
- Häuser zum Kaufen im Bezirk St. Pölten Land, Niederösterreich
- Büro / Praxen mieten in Rohrbach, Oberösterreich