ALL-INCLUSIVE - REPRÄSENTATIVES BÜRO IN RUHIGER HOFLAGE DIREKT AM GRABEN
Beschreibung
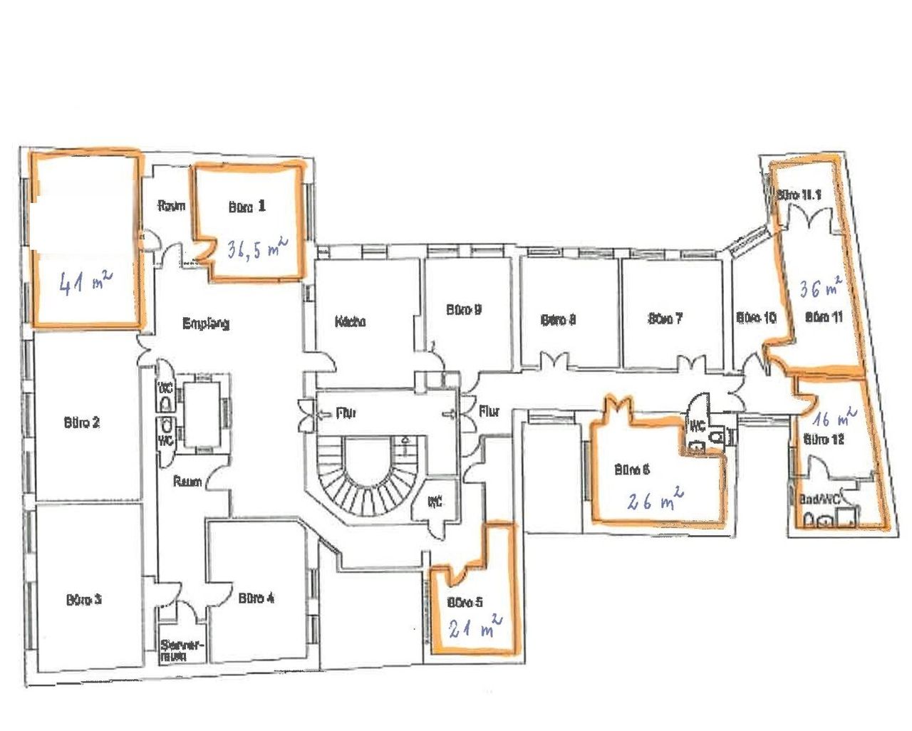
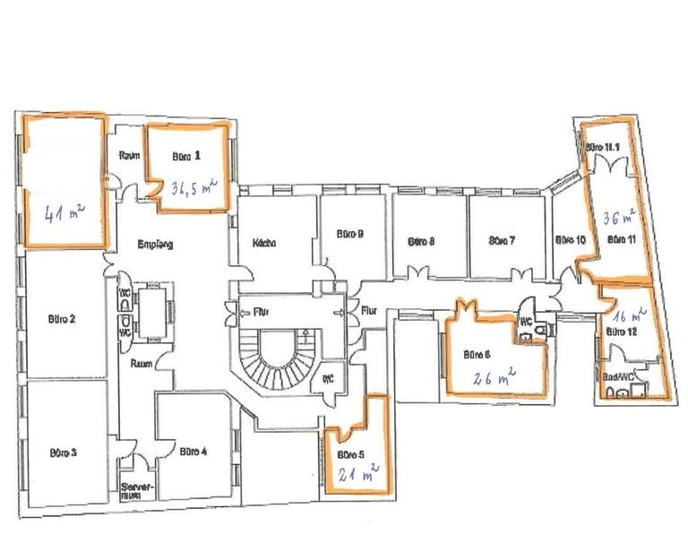
Dieses ca. 25 m² große Einzelbüro (Büro 9) bietet ideale Bedingungen für konzentriertes Arbeiten in einer ruhigen und angenehmen Atmosphäre. Der Raum ist perfekt geeignet für Selbstständige, Berater*innen, Coaches oder Dienstleister, die einen kompakten, professionellen Arbeitsplatz mit Empfangsservice und umfassender Infrastruktur suchen.
Das Büro bietet ausreichend Platz für Beratungs- oder Klientengespräche. Die moderne, gepflegte Umgebung trägt zu einem professionellen Auftreten gegenüber Kund*innen bei.
Eckdaten im Überblick:
Bürofläche: ca. 25 m² Zimmer: 1 Lift: ja Klimaanlage: ja
Ausstattung & Leistungen – All Inclusive:
Der Mietpreis umfasst sämtliche Nebenkosten – von Energiekosten und Versicherung bis hin zu WLAN und regelmäßiger Reinigung....
Dieses ca. 25 m² große Einzelbüro (Büro 9) bietet ideale Bedingungen für konzentriertes Arbeiten in einer ruhigen und angenehmen Atmosphäre. Der Raum ist perfekt geeignet für Selbstständige, Berater*innen, Coaches oder Dienstleister, die einen kompakten, professionellen Arbeitsplatz mit Empfangsservice und umfassender Infrastruktur suchen.
Das Büro bietet ausreichend Platz für Beratungs- oder Klientengespräche. Die moderne, gepflegte Umgebung trägt zu einem professionellen Auftreten gegenüber Kund*innen bei.
Eckdaten im Überblick:
Bürofläche: ca. 25 m²
Zimmer: 1
Lift: ja
Klimaanlage: ja
Ausstattung & Leistungen – All Inclusive:
Der Mietpreis umfasst sämtliche Nebenkosten – von Energiekosten und Versicherung bis hin zu WLAN und regelmäßiger Reinigung. So profitieren Sie von einer transparenten Kostenstruktur und einem sofort einsatzbereiten, gepflegten Arbeitsumfeld.
In der monatlichen Miete sind folgende Leistungen bereits enthalten:
Nutzung der Geschäftsadresse
professioneller Empfangsservice
Reinigung und Betriebskosten
Mitbenutzung der Gemeinschaftsflächen
Sanitäranlagen
Eingangsbereich
Küche (Kaffee und Tee zur freien Entnahme)
Firmenschild im Eingangsbereich
Telefonservice für professionelle Erreichbarkeit
Zusätzlich stehen Ihnen im Haus ein servicierter Empfang für Post- und Gästebetreuung sowie zwei flexibel nutzbare Konferenzräume zur Verfügung.
Mit 24/7-Zugang, erstklassiger Infrastruktur und einer repräsentativen Geschäftsadresse bietet diese Büro-Suite eine hervorragende Möglichkeit, Ihr Unternehmen im Herzen Wiens stilvoll zu präsentieren.
Elegance Room für Besprechungen im kleineren Rahmen (bis zu 8 Personen)
Prestige Conference Room für Besprechungen (bis zu 15 Personen)
Kosten:
Monatliche Kosten all-inclusive : € 1.740,00,--
Kaution: 3 BMM
Kontakt:
Für Fragen und Besichtigungen kontaktieren Sie bitte Herrn Büer unter 0699 194 737 30 oder unter boris.bueer@wisionhome.at
Weiter Objekte finden Sie unter: www.wisionhome.at
Infrastruktur / Entfernungen
Gesundheit
Arzt <500m
Apotheke <500m
Klinik <1.000m
Krankenhaus <1.500m
Kinder & Schulen
Schule <500m
Kindergarten <1.000m
Universität <500m
Höhere Schule <1.000m
Nahversorgung
Supermarkt <500m
Bäckerei <500m
Einkaufszentrum <1.000m
Sonstige
Geldautomat <500m
Bank <500m
Post <500m
Polizei <500m
Verkehr
Bus <500m
U-Bahn <500m
Straßenbahn <1.000m
Bahnhof <500m
Autobahnanschluss <3.500m
Angaben Entfernung Luftlinie / Quelle: OpenStreetMap
Objektdaten
Ausstattung
- Klimatisiert
- Vollmöbliert
- Parkettboden
- Personen Fahrstuhl
Zustand
- Zustand
- MODERNISIERT
- Alter
- ALTBAU
- HWB
- 75.3 kWh/m² pro Jahr
- Klasse HWB
- C
- fGEE
- 1.05
- Klasse fGEE
- C
Flächen
- Anzahl der Zimmer
- 1
- Nutzfläche
- 55m²
- Bürofläche
- 25m²
Kosten
- Gesamtmiete Brutto
- € 1.740,00
- Miete
- € 1.450,00
- Umsatzsteuer
- € 290,00
Büros zum Mieten im Umkreis von Gemeindebezirk Innere Stadt
- Bezirk Gemeindebezirk Innere Stadt
- Bezirk Gemeindebezirk Innere Stadt
- Bezirk Gemeindebezirk Innere Stadt
- Bezirk Gemeindebezirk Wieden
- Bezirk Gemeindebezirk Wieden
- Bezirk Gemeindebezirk Wieden
- Bezirk Gemeindebezirk Landstrasse
- Bezirk Gemeindebezirk Landstrasse
- Bezirk Gemeindebezirk Landstrasse
- Bezirk Gemeindebezirk Neubau
Büros zum Mieten im Umkreis von Gemeindebezirk Innere Stadt
Büros zum Mieten in Österreich
Andere Besucher suchen nach...
- Grundstücke kaufen in 3400 Weidlingbach
- Wohnungen kaufen in 4663 Laakirchen
- Häuser in 7471 Rechnitz
- Wohnungen in 2410 Hainburg an der Donau
- Häuser kaufen in 2432 Schwadorf
- Wohnungen kaufen in 3002 Purkersdorf
- Häuser in 3150 Wilhelmsburg
- Wohnungen kaufen in 3470 Engelmannsbrunn
- Grundstücke kaufen im Bezirk Mattersburg
- Grundstücke kaufen im Bezirk Gmunden