Bestlage und provisionsfrei bei Albertina! Unbefristetes Büro-Sharing mit 2 bzw. optional 3 Zimmern in repäsentativem Stilaltbau
-
sofort
Beschreibung
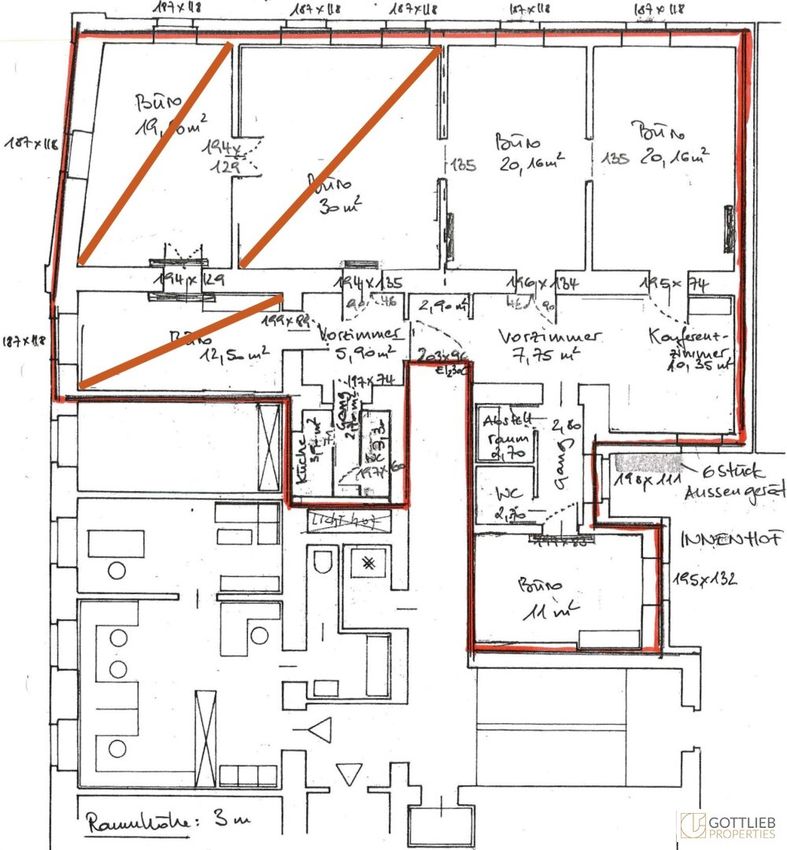
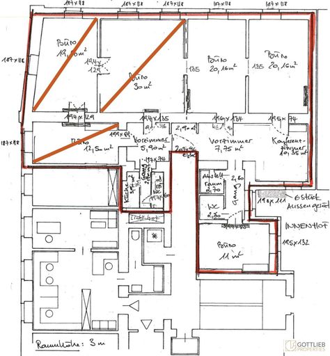
Zur sofortigen unbefristeten Vermietung gelangen zwei bzw. optional drei Bürozimmer in einem Büro zur gemeinschaftlichen Nutzung im Mezzanin eines repräsentativen Stilaltbaus in ausgezeichneter Lage der Wiener Innenstadt. Die sehr gut geschnittenen Räume mit einer Fläche von jeweils ca. 20,16 m² sind mit Klimaanlagen ausgestattet und separat begehbar sowie mit einer Verbindungstüre versehen. Ein weiteres Zimmer mit ca. 11 m² kann nach Vereinbarung dazugemietet werden. Die Gesamtfläche der Räumlichkeiten umfasst einen geräumigen Flur und Empfangsbereich, insgesamt sechs Bürozimmer, zwei Toiletten sowie eine Teeküche. Alle Zimmer sind getrennt begehbar.
Im Foyer des gepflegten Hauses ist während der Geschäftszeiten ein Portier anwesend.
+...
Zur sofortigen unbefristeten Vermietung gelangen zwei bzw. optional drei Bürozimmer in einem Büro zur gemeinschaftlichen Nutzung im Mezzanin eines repräsentativen Stilaltbaus in ausgezeichneter Lage der Wiener Innenstadt. Die sehr gut geschnittenen Räume mit einer Fläche von jeweils ca. 20,16 m² sind mit Klimaanlagen ausgestattet und separat begehbar sowie mit einer Verbindungstüre versehen. Ein weiteres Zimmer mit ca. 11 m² kann nach Vereinbarung dazugemietet werden. Die Gesamtfläche der Räumlichkeiten umfasst einen geräumigen Flur und Empfangsbereich, insgesamt sechs Bürozimmer, zwei Toiletten sowie eine Teeküche. Alle Zimmer sind getrennt begehbar.
Im Foyer des gepflegten Hauses ist während der Geschäftszeiten ein Portier anwesend.
+ unbefristet
+ repräsentativer Altbau in Bestlage
+ Portierservice
+ Personenaufzug
+ großzügiges Stiegenhaus
+ zwei nebeneinander liegende Büroräume mit jeweils ca. 20,16 m²
+ weiteres separates Büro mit ca. 11,00 m² optional nach Vereinbarung
+ Teeküche
+ zwei Toiletten
Ausstattung
+ Parkettböden
+ Fliesenböden im Flur und in den Nassräumen
+ Teeküche mit Ceranfeld, Geschirrspüler, Mikrowelle und Kühlschrank
+ Klimaanlagen in allen Büroräumen
+ Gas-Etagenheizung der Marke "Vaillant"
+ EDV-Verkabelung
Lage und Infrastruktur
Mitten im Zentrum Wiens besticht die ausgesprochen hervorragende Lage nicht nur durch eine ausgezeichnete Infrastruktur sondern ebenso durch eine ideale Verkehrsanbindung.
Zahlreiche Restaurants und Bars, die Kunst und Kultur der Albertina, das Kunst- und Naturhistorische Museum, aber auch gemütliche Spaziergänge im nahen Schillerpark oder dem wunderbaren Burggarten laden stets zum Entspannen und Verweilen ein.
Sämtliche Geschäfte und Einrichtungen des täglichen Bedarfs befinden sich in unmittelbarer Gehnähe.
Verkehrsanbindung
U-Bahn-Linien U1, U2, U3 und U4
Straßenbahn-Linien 1, 2, 62, 71, D sowie Lokalbahn Wien-Baden
Autobus-Linien 2A, 57A
Sonstiges
Die Betriebskostenpauschale ist im Mietpreis bereits enthalten.
Die Akonto-Zahlung für Strom, Heizung und Warmwasser inklusive 20% Umsatzsteuer beträgt derzeit ca. € 200,00 pro Monat.
Wir ersuchen um Verständnis, dass wir aufgrund unserer Nachweispflicht gegenüber dem Eigentümer nur Anfragen mit vollständigen Kontaktdaten (Name, Adresse, Mobilnummer, Email) bearbeiten können.
Wir weisen darauf hin, dass zwischen dem Vermittler und dem zu vermittelnden Dritten ein familiäres oder wirtschaftliches Naheverhältnis besteht.
Infrastruktur / Entfernungen
Gesundheit
Arzt <500m
Apotheke <500m
Klinik <1.000m
Krankenhaus <1.500m
Kinder & Schulen
Schule <500m
Kindergarten <1.000m
Universität <500m
Höhere Schule <500m
Nahversorgung
Supermarkt <500m
Bäckerei <500m
Einkaufszentrum <500m
Sonstige
Geldautomat <500m
Bank <500m
Post <500m
Polizei <500m
Verkehr
Bus <500m
U-Bahn <500m
Straßenbahn <500m
Bahnhof <500m
Autobahnanschluss <3.500m
Angaben Entfernung Luftlinie / Quelle: OpenStreetMap
Objektdaten
Ausstattung
- Teeküche
- Fliesenboden
- Parkettboden
- Etage Heizung
- Befeuerung mit Gas
- Personen Fahrstuhl
Zustand
- Zustand
- GEPFLEGT
- Baujahr
- 1885
- Alter
- ALTBAU
- HWB
- 143 kWh/m² pro Jahr
- Klasse HWB
- D
- fGEE
- 1.76
- Klasse fGEE
- D
Flächen
- Anzahl der Zimmer
- 2
- Anzahl der sep. WCs
- 2
- Nutzfläche
- 101m²
- Gesamtfläche
- 163m²
- Bürofläche
- 40m²
Kosten
- Gesamtmiete Brutto
- € 2.748,00
- Miete
- € 2.290,00
- Heizkosten
- € 200,00
- Umsatzsteuer
- € 498,00
Verwaltung
- Verfügbar ab
- sofort
Büros zum Mieten im Umkreis von Gemeindebezirk Innere Stadt
- Bezirk Gemeindebezirk Innere Stadt
- Bezirk Gemeindebezirk Innere Stadt
- Bezirk Gemeindebezirk Innere Stadt
- Bezirk Gemeindebezirk Wieden
- Bezirk Gemeindebezirk Wieden
- Bezirk Gemeindebezirk Wieden
- Bezirk Gemeindebezirk Landstrasse
- Bezirk Gemeindebezirk Landstrasse
- Bezirk Gemeindebezirk Landstrasse
- Bezirk Gemeindebezirk Neubau
Büros zum Mieten im Umkreis von Gemeindebezirk Innere Stadt
Büros zum Mieten in Österreich
Andere Besucher suchen nach...
- Grundstücke kaufen in 3400 Weidlingbach
- Wohnungen kaufen in 4663 Laakirchen
- Häuser in 7471 Rechnitz
- Wohnungen in 2410 Hainburg an der Donau
- Häuser kaufen in 2432 Schwadorf
- Wohnungen kaufen in 3002 Purkersdorf
- Häuser in 3150 Wilhelmsburg
- Wohnungen kaufen in 3470 Engelmannsbrunn
- Grundstücke kaufen im Bezirk Mattersburg
- Grundstücke kaufen im Bezirk Gmunden