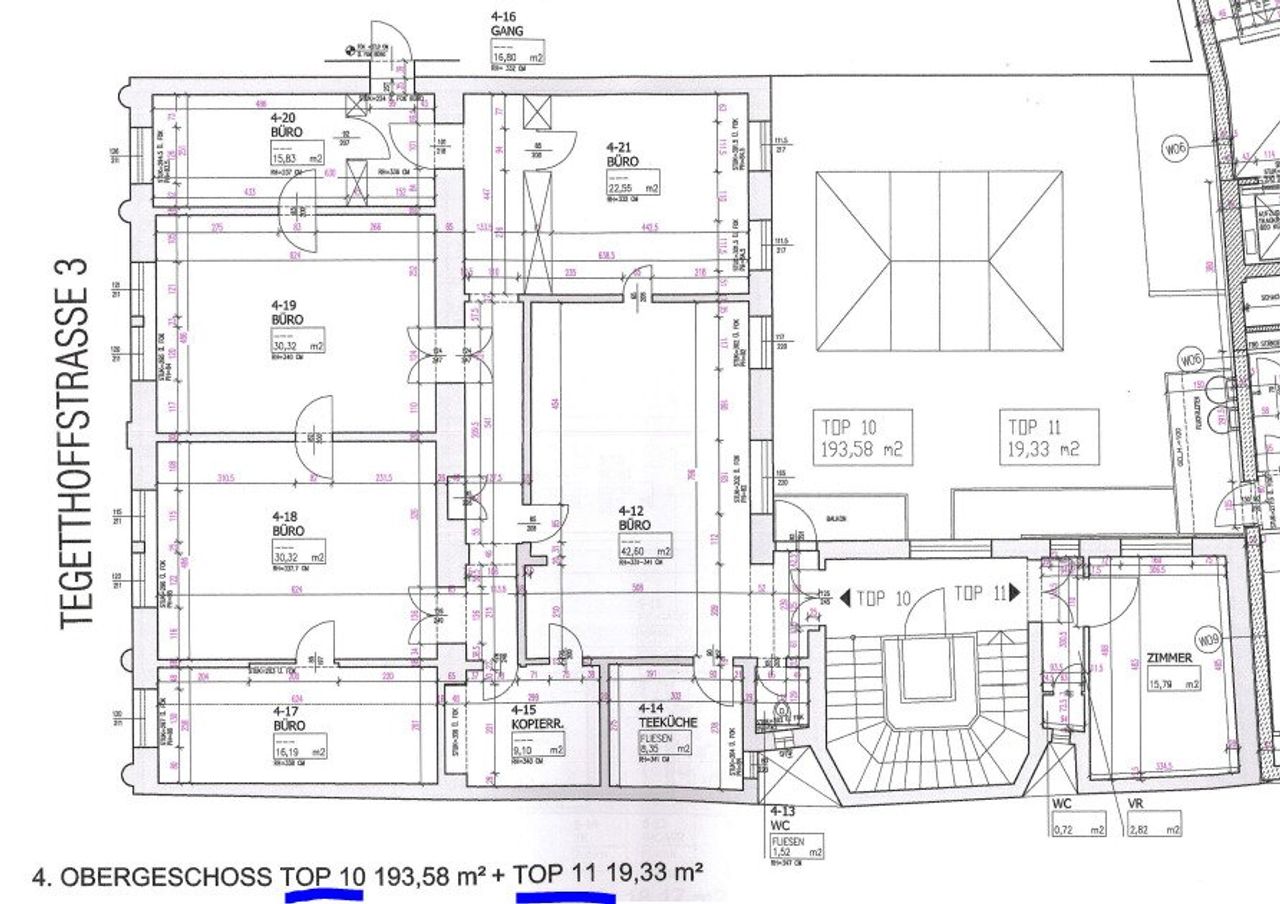
Großzügige, neu renovierte Büroflächen insgesamt 193,58 m² in repräsentativem Stilaltbau in Toplage des 1.Bezirks!
Beschreibung
Großzügige Büroetage in repräsentativem Stilaltbau in Toplage des 1.Bezirks!
Zur langfristigen Vermietung gelangt eine neu renovierte 193,58 m² Bürofläche in unmittelbarer Nähe der Kärntnerstraße. Die weitgehend hellen Räume, der gediegene Altbaucharakter, sowie die zentrale Begehbarkeit aller Räume kombiniert mit der Infrastruktur der Kärntnerstraße zeichnen dieses Objekt besonders aus. Raumaufteilung: - Entree - 6 Büroräume - moderne Küche - Abstellraum - 2 Toiletten Austattung: Hauszentralheizung Eichenparkettböden Klimatisierung möglich
Für Fragen und Terminvereinbarungen kontaktieren Sie bitte Frau Belmar +43 699 10808182 oder Herr Mag.Weiss, weiss@belmar.at, +43650 22 85 695 Wir möchten darauf hinweisen, dass Belmar Immobilien als Doppelmakler tätig ist. Großzügige Büroetage in repräsentativem Stilaltbau in Toplage des 1.Bezirks! Zur langfristigen Vermietung gelangt eine neu renovierte 193,58 m² Bürofläche in unmittelbarer Nähe der Kärntnerstraße. Die weitgehend hellen Räume, der gediegene Altbaucharakter, sowie die zentrale Begehbarkeit aller Räume kombiniert mit der Infrastruktur der Kärntnerstraße zeichnen dieses Objekt besonders aus. Für Fragen und Terminvereinbarungen kontaktieren Sie bitte Frau Belmar +43 699 10808182 oder Herr Mag.Weiss, weiss@belmar.at, +43650 22 85 695 Hinweis gemäß Energieausweisvorlagegesetz: Ein Energieausweis wurde vom Eigentümer bzw. Verkäufer, nach unserer Aufklärung über die generell geltende Vorlagepflicht, sowie Aufforderung zu seiner Erstellung noch nicht vorgelegt. Daher gilt zumindest eine dem Alter und der Art des Gebäudes entsprechende Gesamtenergieeffizienz als vereinbart. Wir übernehmen keinerlei Gewähr oder Haftung für die tatsächliche Energieeffizienz der angebotenen Immobilie. Wir weisen darauf hin, dass zwischen dem Vermittler und dem zu vermittelnden Dritten ein familiäres oder wirtschaftliches Naheverhältnis besteht. Der Vermittler ist als Doppelmakler tätig. Infrastruktur / Entfernungen Gesundheit
Raumaufteilung:
- Entree
- 6 Büroräume
- moderne Küche
- Abstellraum
- 2 Toiletten
Austattung:
Hauszentralheizung
Eichenparkettböden
Klimatisierung möglich
Wir möchten darauf hinweisen, dass Belmar Immobilien als Doppelmakler tätig ist. Sämtliche angegebenen Informationen basieren auf Daten, die uns von der Abgeberseite zur Verfügung gestellt wurden. Die Firma Belmar Immobilien kann die Richtigkeit dieser Angaben nicht gewährleisten und daher keinerlei Haftung dafür übernehmen.
Arzt <250m
Apotheke <250m
Klinik <1.000m
Krankenhaus <1.250m
Kinder & Schulen
Schule <500m
Kindergarten <750m
Universität <250m
Höhere Schule <500m
Nahversorgung
Supermarkt <250m
Bäckerei <250m
Einkaufszentrum <500m
Sonstige
Geldautomat <250m
Bank <250m
Post <250m
Polizei <250m
Verkehr
Bus <250m
U-Bahn <250m
Straßenbahn <500m
Bahnhof <500m
Autobahnanschluss <3.500m
Angaben Entfernung Luftlinie / Quelle: OpenStreetMap
Objektdaten
Ausstattung
- Klimatisiert
- Parkettboden
- Etage Heizung
- Befeuerung mit Gas
- Personen Fahrstuhl
Zustand
- Zustand
- GEPFLEGT
- Alter
- ALTBAU
Flächen
- Bürofläche
- 194m²
Kosten
- Gesamtmiete Brutto
- € 5.140,71
- Miete
- € 3.871,60
- Betriebskosten
- € 363,93
- Heizkosten
- € 193,58
- Sonstige Kosten
- € 58,07
- Umsatzsteuer
- € 885,83
Verwaltung
- Mietdauer
- bis 15,0 Jahre
Büros zum Mieten im Umkreis von Gemeindebezirk Innere Stadt
- Bezirk Gemeindebezirk Innere Stadt
- Bezirk Gemeindebezirk Innere Stadt
- Bezirk Gemeindebezirk Innere Stadt
- Bezirk Gemeindebezirk Wieden
- Bezirk Gemeindebezirk Wieden
- Bezirk Gemeindebezirk Wieden
- Bezirk Gemeindebezirk Neubau
- Bezirk Gemeindebezirk Neubau
- Bezirk Gemeindebezirk Neubau
- Bezirk Gemeindebezirk Mariahilf
Büros zum Mieten im Umkreis von Gemeindebezirk Innere Stadt
Büros zum Mieten in Österreich
Andere Besucher suchen nach...
- Grundstücke kaufen in 3400 Weidlingbach
- Wohnungen kaufen in 4663 Laakirchen
- Häuser in 7471 Rechnitz
- Wohnungen in 2410 Hainburg an der Donau
- Häuser kaufen in 2432 Schwadorf
- Wohnungen kaufen in 3002 Purkersdorf
- Häuser in 3150 Wilhelmsburg
- Wohnungen kaufen in 3470 Engelmannsbrunn
- Grundstücke kaufen im Bezirk Mattersburg
- Grundstücke kaufen im Bezirk Gmunden