Klimatisiertes DG-Büro in Traumlage zw. Staatsoper und Stadtpark
€ 7.136 / Monat
€ 20 / m²
1010 Wien
-
sofort
Beschreibung
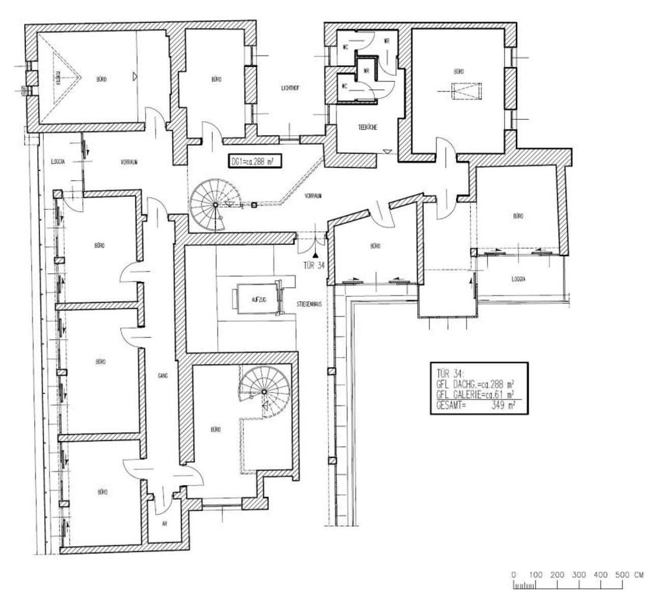
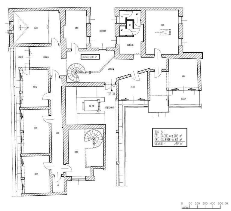
ZUR VERMIETUNG gelangt dieses ausgezeichnete Büro im Dachgeschoß in toller Lage, in der Mahlerstraße im 1.Bezirk. Das hervorragend aufgeteilte Büro umfasst 9 getrennte Büroräume, 2 Außenflächen, eine Teeküche und ein Damen bzw. Herren WC. EDV-Anschlüsse und Steckdosen befinden sich in den verkleideten Bodenbuchsen. RAUMAUFTEILUNG IN STICHWORTEN • Vorraum und Empfang • 9 Büroräume • Teeküche • Damen WC • Herren WC • Abstellraum • Galerie • 2 Loggien INFRASTRUKTUR + HIGHLIGHTS AUF EINEN BLICK • Klimaanlage • sehr repräsentativer Altbau • barrierefreier Lift • fantastische Lage • sehr gute öffentliche Verkehrsanbindung (Karlsplatz) • hervorragende Auswahl an Gastronomie-Einrichtungen in der nahen...
ZUR VERMIETUNG
gelangt dieses ausgezeichnete Büro im Dachgeschoß in toller Lage, in der Mahlerstraße im 1.Bezirk.
Das hervorragend aufgeteilte Büro umfasst 9 getrennte Büroräume, 2 Außenflächen, eine Teeküche und ein Damen bzw. Herren WC.
EDV-Anschlüsse und Steckdosen befinden sich in den verkleideten Bodenbuchsen.
RAUMAUFTEILUNG IN STICHWORTEN
• Vorraum und Empfang
• 9 Büroräume
• Teeküche
• Damen WC
• Herren WC
• Abstellraum
• Galerie
• 2 Loggien
INFRASTRUKTUR + HIGHLIGHTS AUF EINEN BLICK
• Klimaanlage
• sehr repräsentativer Altbau
• barrierefreier Lift
• fantastische Lage
• sehr gute öffentliche Verkehrsanbindung (Karlsplatz)
• hervorragende Auswahl an Gastronomie-Einrichtungen in der nahen Umgebung
• ausgezeichnete Nahversorgung
Kündigungsverzicht: 3 J
MEHR INFOS UND DETAILS AUF ANFRAGE!
KONTAKT
Robert Fried, robert.fried@hubner-immobilien.com, +43 664 88 296 010
Für Rückfragen stehe ich Ihnen selbstverständlich gerne zur Verfügung!
___
gelangt dieses ausgezeichnete Büro im Dachgeschoß in toller Lage, in der Mahlerstraße im 1.Bezirk.
Das hervorragend aufgeteilte Büro umfasst 9 getrennte Büroräume, 2 Außenflächen, eine Teeküche und ein Damen bzw. Herren WC.
EDV-Anschlüsse und Steckdosen befinden sich in den verkleideten Bodenbuchsen.
RAUMAUFTEILUNG IN STICHWORTEN
• Vorraum und Empfang
• 9 Büroräume
• Teeküche
• Damen WC
• Herren WC
• Abstellraum
• Galerie
• 2 Loggien
INFRASTRUKTUR + HIGHLIGHTS AUF EINEN BLICK
• Klimaanlage
• sehr repräsentativer Altbau
• barrierefreier Lift
• fantastische Lage
• sehr gute öffentliche Verkehrsanbindung (Karlsplatz)
• hervorragende Auswahl an Gastronomie-Einrichtungen in der nahen Umgebung
• ausgezeichnete Nahversorgung
Kündigungsverzicht: 3 J
MEHR INFOS UND DETAILS AUF ANFRAGE!
KONTAKT
Robert Fried, robert.fried@hubner-immobilien.com, +43 664 88 296 010
Für Rückfragen stehe ich Ihnen selbstverständlich gerne zur Verfügung!
___
| Angaben gemäß gesetzlichem Erfordernis: | |||
| Miete | € | 5234,55 | zzgl 20% USt. |
| Betriebskosten | € | 711,89 | zzgl 20% USt. |
| Heizkosten inkl Warmwasser | € | 296,62 | zzgl 20% USt. |
| Umsatzsteuer | € | 1248,61 | |
| ------------------------------------------------------------------ | |||
| Gesamtbetrag | € | 7135,73 | |
| ------------------------------------------------------------------ | |||
| Heizwärmebedarf: | 111.4 kWh/(m²a) | ||
| Klasse Heizwärmebedarf: | D | ||
| Faktor Gesamtenergieeffizienz: | 1.83 | ||
| Klasse Faktor Gesamtenergieeffizienz: | D | ||
Objektdaten
Ausstattung
- Klimatisiert
- DV Verkabelung
- Teeküche
- Doppelboden
- Zentralheizung
- Fern Befeuerung
- Personen Fahrstuhl
- Bus
- Doppelboden
- Küche Möbliert
- Serverraum
- Stadtzentrum
- Straßenbahn
- U-Bahn
- Zentralheizung mit Fernwärme
- Doppelboden
Zustand
- Zustand
- GEPFLEGT
Flächen
- Anzahl der Zimmer
- 9
- Anzahl der sep. WCs
- 2
- Nutzfläche
- 350m²
- Bürofläche
- 350m²
Kosten
- Kaltmiete
- € 7.135,73
- Nebenkosten
- € 854,27
- Betriebskosten Brutto
- € 854,27
Verwaltung
- Verfügbar ab
- sofort
- Mietdauer
- bis 10,0 Jahre
Büros zum Mieten in Österreich
Büros zum Mieten in Österreich
Büros zum Mieten in Österreich
Andere Besucher suchen nach...
- Grundstücke kaufen in 3400 Weidlingbach
- Wohnungen kaufen in 4663 Laakirchen
- Häuser in 7471 Rechnitz
- Wohnungen in 2410 Hainburg an der Donau
- Häuser kaufen in 2432 Schwadorf
- Wohnungen kaufen in 3002 Purkersdorf
- Häuser in 3150 Wilhelmsburg
- Wohnungen kaufen in 3470 Engelmannsbrunn
- Grundstücke kaufen im Bezirk Mattersburg
- Grundstücke kaufen im Bezirk Gmunden