PALAIS - BÜROFLÄCHEN
-
sofort
Beschreibung
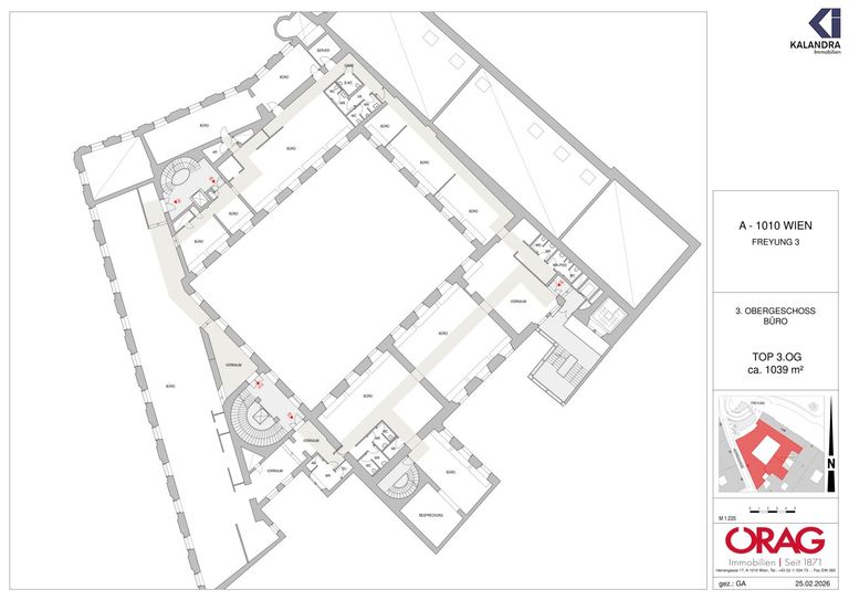
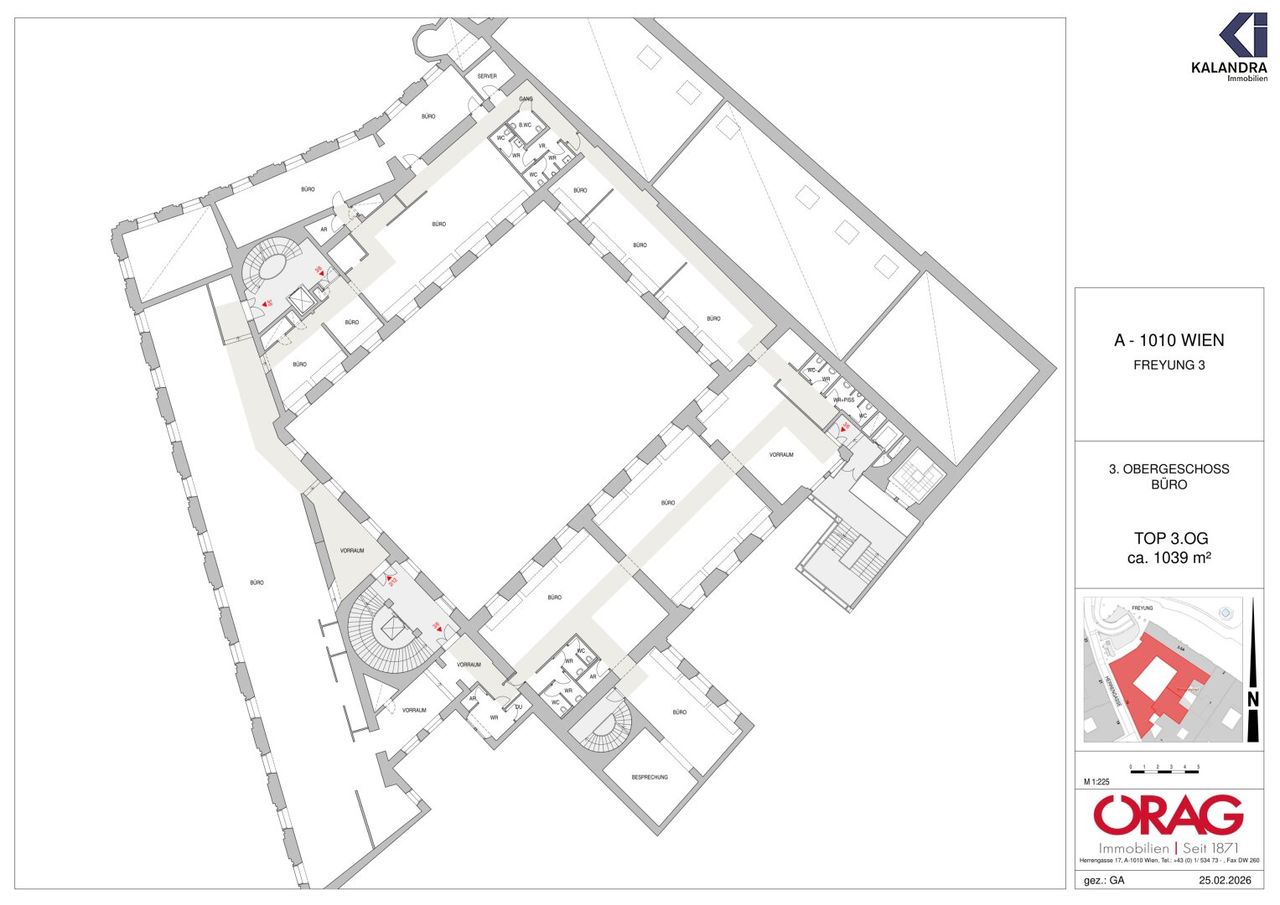
Großräumige BÜROFLÄCHEN in herrschaftlichem Ambiente Diese im 3. Stock eines der repräsentativsten Palais Wiens gelegenen Büro- bzw. Präsentationsflächen wurden neu adaptiert und sind sofort beziehbar: Raumaufteilung: Vorraum, Herren-& Damen WC-Gruppe, mehrere Großraumbüros, die in weitere kleinere Einheiten unterteilt werden können, ein Besprechungszimmer, sowie ein Korridor mit Ausgang zu einem Fluchtstiegenhaus. Ausstattung: durchgehend Parkettboden, Nassräume weiß verfliest, Beleuchtungskörper, Hauszentralheizung. Direkt zugängliche Garagenplätze können in der Freyung-Garage separat angemietet werden. In der angegebenen Gesamtmiete ist ein Akontobetrag für die Beheizung (Fernwärme Wien) enthalten.
Infrastruktur / Entfernungen
Gesundheit Arzt <500m Apotheke <500m Klinik <500m Krankenhaus <1.500m Kinder & Schulen Schule <500m Kindergarten <1.000m Universität...
Großräumige BÜROFLÄCHEN in herrschaftlichem Ambiente
Diese im 3. Stock eines der repräsentativsten Palais Wiens gelegenen Büro- bzw. Präsentationsflächen wurden neu adaptiert und sind sofort beziehbar:
Raumaufteilung:
Vorraum, Herren-& Damen WC-Gruppe, mehrere Großraumbüros, die in weitere kleinere Einheiten unterteilt werden können, ein Besprechungszimmer, sowie ein Korridor mit Ausgang zu einem Fluchtstiegenhaus.
Ausstattung:
durchgehend Parkettboden, Nassräume weiß verfliest, Beleuchtungskörper, Hauszentralheizung.
Direkt zugängliche Garagenplätze können in der Freyung-Garage separat angemietet werden.
In der angegebenen Gesamtmiete ist ein Akontobetrag für die Beheizung (Fernwärme Wien) enthalten.
Infrastruktur / Entfernungen
Gesundheit
Arzt <500m
Apotheke <500m
Klinik <500m
Krankenhaus <1.500m
Kinder & Schulen
Schule <500m
Kindergarten <1.000m
Universität <500m
Höhere Schule <500m
Nahversorgung
Supermarkt <500m
Bäckerei <500m
Einkaufszentrum <1.500m
Sonstige
Geldautomat <500m
Bank <500m
Post <500m
Polizei <500m
Verkehr
Bus <500m
U-Bahn <500m
Straßenbahn <500m
Bahnhof <500m
Autobahnanschluss <3.500m
Angaben Entfernung Luftlinie / Quelle: OpenStreetMap
Objektdaten
Ausstattung
- Zentralheizung
- Personen Fahrstuhl
Dokumente / Links
Zustand
- Zustand
- NEUWERTIG
- Baujahr
- 1800
Flächen
- Anzahl der Zimmer
- 4
- Anzahl der sep. WCs
- 4
- Nutzfläche
- 1.039m²
Kosten
- Gesamtmiete Brutto
- € 34.277,56
- Kaution
- € 30.000,00
- Miete
- € 24.947,28
- Betriebskosten
- € 3.617,35
- Heizkosten
- € 371,42
- Umsatzsteuer
- € 5.787,21
Verwaltung
- Verfügbar ab
- sofort
Büros zum Mieten im Umkreis von Gemeindebezirk Innere Stadt
- Bezirk Gemeindebezirk Innere Stadt
- Bezirk Gemeindebezirk Innere Stadt
- Bezirk Gemeindebezirk Innere Stadt
- Bezirk Gemeindebezirk Wieden
- Bezirk Gemeindebezirk Wieden
- Bezirk Gemeindebezirk Wieden
- Bezirk Gemeindebezirk Landstrasse
- Bezirk Gemeindebezirk Landstrasse
- Bezirk Gemeindebezirk Landstrasse
- Bezirk Gemeindebezirk Neubau
Büros zum Mieten im Umkreis von Gemeindebezirk Innere Stadt
Büros zum Mieten in Österreich
Andere Besucher suchen nach...
- Grundstücke kaufen in 3400 Weidlingbach
- Wohnungen kaufen in 4663 Laakirchen
- Häuser in 7471 Rechnitz
- Wohnungen in 2410 Hainburg an der Donau
- Häuser kaufen in 2432 Schwadorf
- Wohnungen kaufen in 3002 Purkersdorf
- Häuser in 3150 Wilhelmsburg
- Wohnungen kaufen in 3470 Engelmannsbrunn
- Grundstücke kaufen im Bezirk Mattersburg
- Grundstücke kaufen im Bezirk Gmunden