Büro / Praxis beim Karmelitermarkt mit großer Terrasse!!!
€ 1.595 / Monat
€ 20 / m²
1020 Wien
-
sofort
Beschreibung
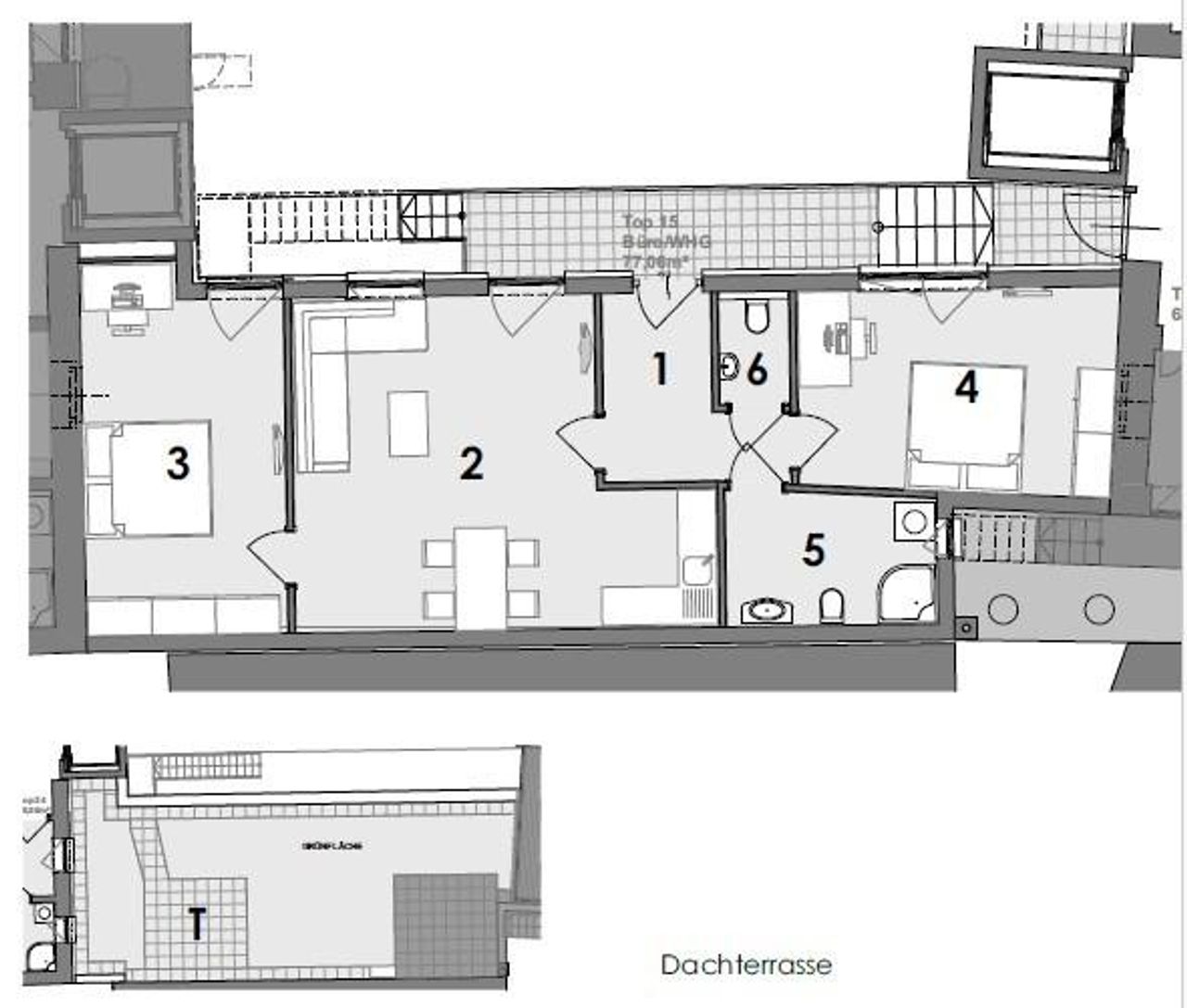
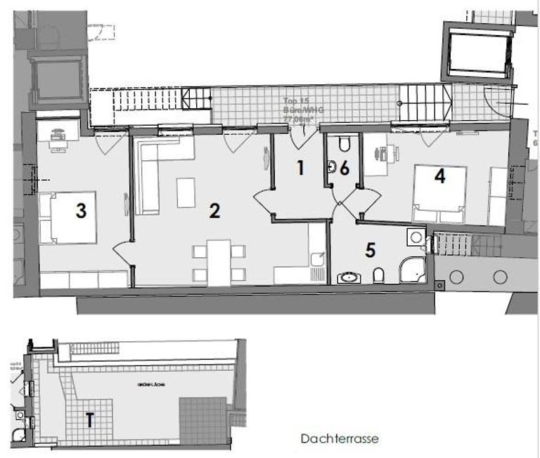
Zur Vermietung gelangt diese schöne Büro-/Praxis-/Ordinationsfläche (77m²) in der Großen Schiffgasse. Der Zugang erfolgt über wenige Stufen. Über eine außen liegende Treppe ist eine 10,51m² große Terrasse erreichbar. Mit Fußbodenheizung (via Erdwärme / Tiefenbohrung) und Fußbodenkühlung erfüllt die Fläche alle Anforderungen eines zeitgemäßen, energieeffizienten Objekts. Die Infrastruktur kann als optimal beschrieben werden. U-Bahn und Geschäfte für den täglichen Bedarf sind nur wenige Gehminuten entfernt. Raumaufteilung: • Vorraum • 3 Zimmer - (1 Durchgangszimmer) • offene Küche mit Elektrogeräten • Abstellraum • WC mit Waschbecken • Badezimmer mit Dusche und WC • Terrasse BESONDERHEITEN / HIGHLIGHTS • sehr gute Raumaufteilung •...
Zur Vermietung gelangt diese schöne Büro-/Praxis-/Ordinationsfläche (77m²) in der Großen Schiffgasse. Der Zugang erfolgt über wenige Stufen.
Über eine außen liegende Treppe ist eine 10,51m² große Terrasse erreichbar.
Mit Fußbodenheizung (via Erdwärme / Tiefenbohrung) und Fußbodenkühlung erfüllt die Fläche alle Anforderungen eines zeitgemäßen, energieeffizienten Objekts.
Die Infrastruktur kann als optimal beschrieben werden. U-Bahn und Geschäfte für den täglichen Bedarf sind nur wenige Gehminuten entfernt.
Raumaufteilung:
• Vorraum
• 3 Zimmer - (1 Durchgangszimmer)
• offene Küche mit Elektrogeräten
• Abstellraum
• WC mit Waschbecken
• Badezimmer mit Dusche und WC
• Terrasse
BESONDERHEITEN / HIGHLIGHTS
• sehr gute Raumaufteilung
• Fußbodenheizung / Fußbodenkühlung
• vollausgestattete Küche
• 2 WCs
• Boden nach Absprache
• Top-Erreichbarkeit
SEHR GUTE ÖFFENTLICHE VERKEHRSANBINDUNG
• U4, U2 Taborstraße, Schottenring
• Straßenbahnlinien: 1, 31
• Autobuslinien; 5A, 5B, 2A, 3A
WEITERE MONATLICHE KOSTEN
• Akonto für Heizung/Kühlung EUR 100,95 nto
• Akonto für Warmwasser EUR 53,17 nto
• anteilige Umsatzsteuer EUR 30,82
GESAMTMIETE "warm" EUR 1595 + EUR 184,94 = EUR 1779,94
• Strom wird je nach Verbrauch direkt vom Energiedienstleister abgerechnet
• ggf. TV/Internet, Versicherung, o.Ä.
ERSTZAHLUNG
• Kaution: 3 Monatsmieten "warm" gerundet
• Provision: 3 Monatsmieten
• Erste Monatsmiete
• Vertragserrichtung und Übergabe pauschal EUR 240 bto
• Vergebührung Finanzamt
Falls Sie Fragen haben oder einen Besichtigungstermin vereinbaren möchten, stehe ich Ihnen selbstverständlich gerne zur Verfügung. Ich freue mich auf Ihre Kontaktaufnahme!
KONTAKT:
Frau Kerstin Fried
Tel: +43 664 88 730 881
Email: kerstin.fried@hubner-immobilien.com
Über eine außen liegende Treppe ist eine 10,51m² große Terrasse erreichbar.
Mit Fußbodenheizung (via Erdwärme / Tiefenbohrung) und Fußbodenkühlung erfüllt die Fläche alle Anforderungen eines zeitgemäßen, energieeffizienten Objekts.
Die Infrastruktur kann als optimal beschrieben werden. U-Bahn und Geschäfte für den täglichen Bedarf sind nur wenige Gehminuten entfernt.
Raumaufteilung:
• Vorraum
• 3 Zimmer - (1 Durchgangszimmer)
• offene Küche mit Elektrogeräten
• Abstellraum
• WC mit Waschbecken
• Badezimmer mit Dusche und WC
• Terrasse
BESONDERHEITEN / HIGHLIGHTS
• sehr gute Raumaufteilung
• Fußbodenheizung / Fußbodenkühlung
• vollausgestattete Küche
• 2 WCs
• Boden nach Absprache
• Top-Erreichbarkeit
SEHR GUTE ÖFFENTLICHE VERKEHRSANBINDUNG
• U4, U2 Taborstraße, Schottenring
• Straßenbahnlinien: 1, 31
• Autobuslinien; 5A, 5B, 2A, 3A
WEITERE MONATLICHE KOSTEN
• Akonto für Heizung/Kühlung EUR 100,95 nto
• Akonto für Warmwasser EUR 53,17 nto
• anteilige Umsatzsteuer EUR 30,82
GESAMTMIETE "warm" EUR 1595 + EUR 184,94 = EUR 1779,94
• Strom wird je nach Verbrauch direkt vom Energiedienstleister abgerechnet
• ggf. TV/Internet, Versicherung, o.Ä.
ERSTZAHLUNG
• Kaution: 3 Monatsmieten "warm" gerundet
• Provision: 3 Monatsmieten
• Erste Monatsmiete
• Vertragserrichtung und Übergabe pauschal EUR 240 bto
• Vergebührung Finanzamt
Falls Sie Fragen haben oder einen Besichtigungstermin vereinbaren möchten, stehe ich Ihnen selbstverständlich gerne zur Verfügung. Ich freue mich auf Ihre Kontaktaufnahme!
KONTAKT:
Frau Kerstin Fried
Tel: +43 664 88 730 881
Email: kerstin.fried@hubner-immobilien.com
| Angaben gemäß gesetzlichem Erfordernis: | |||
| Miete | € | 1136,52 | zzgl 20% USt. |
| Betriebskosten | € | 192,65 | zzgl 20% USt. |
| Umsatzsteuer | € | 265,83 | |
| ------------------------------------------------------------------ | |||
| Gesamtbetrag | € | 1595 | |
| ------------------------------------------------------------------ | |||
| Heizwärmebedarf: | 34.0 kWh/(m²a) | ||
| Klasse Heizwärmebedarf: | B | ||
Objektdaten
Ausstattung
- Zentralheizung
- Personen Fahrstuhl
- Bus
- Küche Möbliert
- Straßenbahn
- U-Bahn
- Zentralheizung
Zustand
- Zustand
- GEPFLEGT
Flächen
- Anzahl der Zimmer
- 3
- Anzahl der sep. WCs
- 2
- Anzahl der Terrassen
- 1
- Nutzfläche
- 80m²
- Bürofläche
- 80m²
- Terrassenfläche
- 1m²
Kosten
- Kaltmiete
- € 1.595,00
- Nebenkosten
- € 231,18
- Kaution
- € 6.000,00
- Betriebskosten Brutto
- € 231,18
Verwaltung
- Verfügbar ab
- sofort
- Mietdauer
- bis 10,0 Jahre
Büros zum Mieten in Österreich
Büros zum Mieten in Österreich
Büros zum Mieten in Österreich
Andere Besucher suchen nach...
- Grundstücke kaufen in 3400 Weidlingbach
- Wohnungen kaufen in 4663 Laakirchen
- Häuser in 7471 Rechnitz
- Wohnungen in 2410 Hainburg an der Donau
- Häuser kaufen in 2432 Schwadorf
- Wohnungen kaufen in 3002 Purkersdorf
- Häuser in 3150 Wilhelmsburg
- Wohnungen kaufen in 3470 Engelmannsbrunn
- Grundstücke kaufen im Bezirk Mattersburg
- Grundstücke kaufen im Bezirk Gmunden