NEU: Premium Büro im Marina Tower - 110 m², möbliert
-
2022
-
sofort
Beschreibung
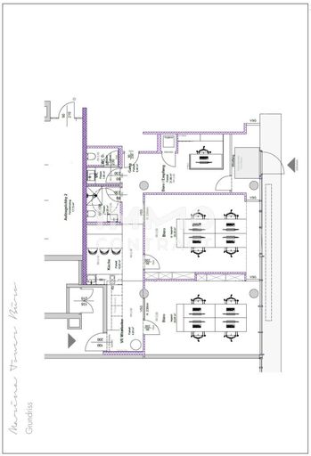
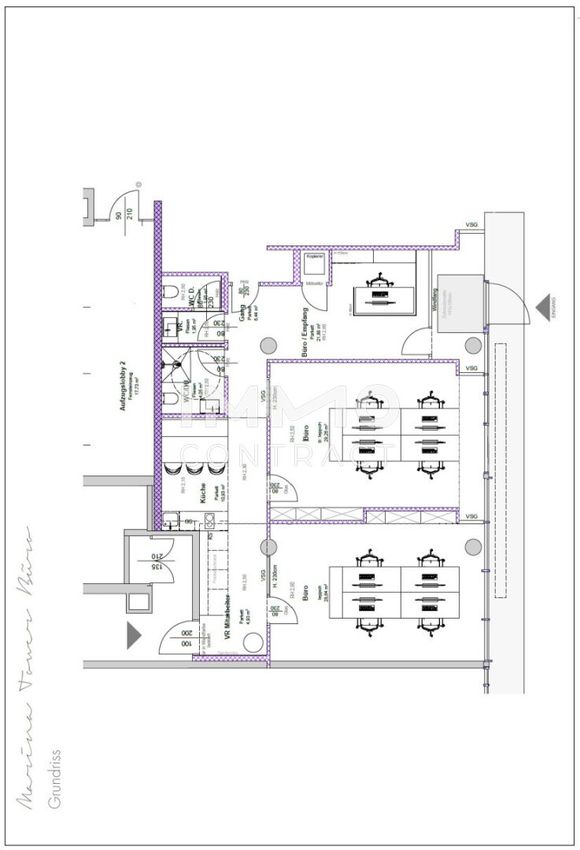
Hochwertige Bürofläche Im 1. Obergeschoß / Marinadeck des prestigeträchtigen Marina Towers, direkt an der Donaulände in Wien-Leopoldstadt, gelangt eine frisch sanierte und voll ausgestattete Bürofläche mit rund 110 m² zur Vermietung. Das Objekt verbindet repräsentative Architektur mit modernster Innenausstattung - ideal für Unternehmen, die Wert auf Auftritt, Komfort und eine zukunftsfähige Lage legen! Die Räume sind gut proportioniert und durch die großen Fensterflächen immer durch angenehmes Tageslicht beleuchtet. Ausstattung & Innenraum Die Fläche wurde kürzlich hochwertig saniert und mit elegantem, durchdachtem Interieur ausgestattet. Alle Materialien sind von erlesenem Geschmack und auf einen stimmigen Gesamtauftritt abgestimmt. Edle Parkettböden im Empfangsbereich, strapazierfähiger...
Hochwertige Bürofläche
Im 1. Obergeschoß / Marinadeck des prestigeträchtigen Marina Towers, direkt an der Donaulände in Wien-Leopoldstadt, gelangt eine frisch sanierte und voll ausgestattete Bürofläche mit rund 110 m² zur Vermietung.
Das Objekt verbindet repräsentative Architektur mit modernster Innenausstattung - ideal für Unternehmen, die Wert auf Auftritt, Komfort und eine zukunftsfähige Lage legen! Die Räume sind gut proportioniert und durch die großen Fensterflächen immer durch angenehmes Tageslicht beleuchtet.
Ausstattung & Innenraum
Die Fläche wurde kürzlich hochwertig saniert und mit elegantem, durchdachtem Interieur ausgestattet. Alle Materialien sind von erlesenem Geschmack und auf einen stimmigen Gesamtauftritt abgestimmt. Edle Parkettböden im Empfangsbereich, strapazierfähiger und akustisch angenehmer Teppichboden in den Büro- und Besprechungszonen, sowie designstarke Fliesen in Nassräumen - pflegeleicht und zugleich ein architektonisches Statement!
Die Fläche ist mit hochwertigen, modernen Büromöbeln ausgestattet, sodass ein sofortiger Einzug ohne zusätzlichen Investitionsaufwand möglich ist.
Hinweis: Für die Möbelmiete werden zzgl. zum bestehenden Mietzins ein Zuschlag in Höhe von 3 EUR pro m² auf die bestehende Miete aufgelegt.
Infrastruktur / Entfernungen
Gesundheit
Arzt <2.000m
Apotheke <500m
Klinik <1.500m
Krankenhaus <3.000m
Kinder & Schulen
Schule <500m
Kindergarten <1.500m
Universität <1.000m
Höhere Schule <3.000m
Nahversorgung
Supermarkt <500m
Bäckerei <500m
Einkaufszentrum <1.000m
Sonstige
Geldautomat <500m
Bank <500m
Post <500m
Polizei <2.500m
Verkehr
Bus <500m
U-Bahn <500m
Straßenbahn <2.000m
Bahnhof <500m
Autobahnanschluss <500m
Angaben Entfernung Luftlinie / Quelle: OpenStreetMap
Objektdaten
Ausstattung
- Klimatisiert
- Rollstuhlgerecht
- Barrierefrei
- DV Verkabelung
- Teeküche
- Bad mit Dusche
- Fliesenboden
- Parkettboden
- Fern Befeuerung
- Personen Fahrstuhl
- Massiv Bauweise
Zustand
- Zustand
- VOLL_SANIERT
- Baujahr
- 2022
- Alter
- NEUBAU
- HWB
- 20.06 kWh/m² pro Jahr
- Klasse HWB
- A
- fGEE
- 0.68
Flächen
- Anzahl der sep. WCs
- 2
- Nutzfläche
- 110m²
Kosten
- Gesamtmiete Brutto
- € 3.513,12
- Miete
- € 2.530,00
- Betriebskosten
- € 397,60
- Umsatzsteuer
- € 585,52
Verwaltung
- Verfügbar ab
- sofort
Büros zum Mieten in Österreich
- Bezirk Gemeindebezirk Leopoldstadt
- Bezirk Gemeindebezirk Leopoldstadt
- Bezirk Gemeindebezirk Leopoldstadt
- Bezirk Gemeindebezirk Landstrasse
- Bezirk Gemeindebezirk Landstrasse
- Bezirk Gemeindebezirk Landstrasse
- Bezirk Gemeindebezirk Innere Stadt
- Bezirk Gemeindebezirk Innere Stadt
- Bezirk Gemeindebezirk Innere Stadt
- Bezirk Gemeindebezirk Wieden
Büros zum Mieten in Österreich
Büros zum Mieten in Österreich
Andere Besucher suchen nach...
- Grundstücke kaufen in 3400 Weidlingbach
- Wohnungen kaufen in 4663 Laakirchen
- Häuser in 7471 Rechnitz
- Wohnungen in 2410 Hainburg an der Donau
- Häuser kaufen in 2432 Schwadorf
- Wohnungen kaufen in 3002 Purkersdorf
- Häuser in 3150 Wilhelmsburg
- Wohnungen kaufen in 3470 Engelmannsbrunn
- Grundstücke kaufen im Bezirk Mattersburg
- Grundstücke kaufen im Bezirk Gmunden