NEUBAUBÜRO nahe PRATERSTERN
€ 5.159 / Monat
€ 19 / m²
1020 Wien
-
sofort
Beschreibung
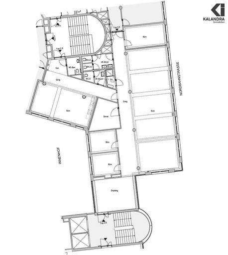
MODERNE BÜROFLÄCHEN nächst PRATERSTERN & NORDBAHNHOF Zur Vermietung gelangen moderne Büroräumlichkeiten in zentraler Lage des 2.Bezirks mit gutem U-Bahnanschluß. Raumaufteilung: Vorraum, großer Empfang, 4-8 Büroräume, Küche, Badezimmer, 4 WC, ein Duschbad, Lager-/ Serverraum. Ausstattung: - die Räumlichkeiten werden neu adaptiert und ausgemalt übergeben - Fensterbank-Kabelkanäle - Raster-Deckenleuchten sind vorhanden - Hauszentralheizung (Fernwärme) Zusätzlich zu den oa. Betriebskosten wird ein monatliches Heizkosten-Akonto von Euro 329,- + 20% USt. vorgeschrieben, einmal jährlich findet eine verbrauchsabhängige Abrechnung statt. Die bestehende Raumaufteilung (siehe Plan) ist abänderbar (Gipskarton-Leichtbauwände). Die Durchführung kann vom Vermieter organisiert werden, die Kosten für entsprechende Umbauarbeiten müsste der Mieter tragen. Garagenplätze...
MODERNE BÜROFLÄCHEN nächst PRATERSTERN & NORDBAHNHOF
Zur Vermietung gelangen moderne Büroräumlichkeiten in zentraler Lage des 2.Bezirks mit gutem U-Bahnanschluß.
Raumaufteilung:
Vorraum, großer Empfang, 4-8 Büroräume, Küche, Badezimmer, 4 WC, ein Duschbad, Lager-/ Serverraum.
Ausstattung:
- die Räumlichkeiten werden neu adaptiert und ausgemalt übergeben
- Fensterbank-Kabelkanäle
- Raster-Deckenleuchten sind vorhanden
- Hauszentralheizung (Fernwärme)
Zusätzlich zu den oa. Betriebskosten wird ein monatliches Heizkosten-Akonto von Euro 329,- + 20% USt. vorgeschrieben, einmal jährlich findet eine verbrauchsabhängige Abrechnung statt.
Die bestehende Raumaufteilung (siehe Plan) ist abänderbar (Gipskarton-Leichtbauwände).
Die Durchführung kann vom Vermieter organisiert werden, die Kosten für entsprechende Umbauarbeiten müsste der Mieter tragen.
Garagenplätze sind im Haus ab Euro 98,- + 20% USt./ Monat anmietbar.
Angeboten wird ein auf bis zu 10 Jahre befristetes Mietverhältnis mit dreijährigem, mieterseitgen Kündigungsverzicht.
Es werden 6 Bruttomonatsmieten (Bankgarantie möglich) als Kaution verlangt.
Zur Vermietung gelangen moderne Büroräumlichkeiten in zentraler Lage des 2.Bezirks mit gutem U-Bahnanschluß.
Raumaufteilung:
Vorraum, großer Empfang, 4-8 Büroräume, Küche, Badezimmer, 4 WC, ein Duschbad, Lager-/ Serverraum.
Ausstattung:
- die Räumlichkeiten werden neu adaptiert und ausgemalt übergeben
- Fensterbank-Kabelkanäle
- Raster-Deckenleuchten sind vorhanden
- Hauszentralheizung (Fernwärme)
Zusätzlich zu den oa. Betriebskosten wird ein monatliches Heizkosten-Akonto von Euro 329,- + 20% USt. vorgeschrieben, einmal jährlich findet eine verbrauchsabhängige Abrechnung statt.
Die bestehende Raumaufteilung (siehe Plan) ist abänderbar (Gipskarton-Leichtbauwände).
Die Durchführung kann vom Vermieter organisiert werden, die Kosten für entsprechende Umbauarbeiten müsste der Mieter tragen.
Garagenplätze sind im Haus ab Euro 98,- + 20% USt./ Monat anmietbar.
Angeboten wird ein auf bis zu 10 Jahre befristetes Mietverhältnis mit dreijährigem, mieterseitgen Kündigungsverzicht.
Es werden 6 Bruttomonatsmieten (Bankgarantie möglich) als Kaution verlangt.
Infrastruktur / Entfernungen
Gesundheit
Arzt <500m
Apotheke <500m
Klinik <500m
Krankenhaus <1.500m
Kinder & Schulen
Schule <500m
Kindergarten <500m
Universität <1.500m
Höhere Schule <1.500m
Nahversorgung
Supermarkt <500m
Bäckerei <500m
Einkaufszentrum <2.000m
Sonstige
Geldautomat <500m
Bank <500m
Post <500m
Polizei <500m
Verkehr
Bus <500m
U-Bahn <500m
Straßenbahn <500m
Bahnhof <500m
Autobahnanschluss <2.000m
Angaben Entfernung Luftlinie / Quelle: OpenStreetMap
Objektdaten
Ausstattung
- Zentralheizung
- Fern Befeuerung
- Personen Fahrstuhl
Dokumente / Links
Zustand
- Zustand
- GEPFLEGT
- Baujahr
- 1996
- HWB
- 49 kWh/m² pro Jahr
- Klasse HWB
- B
Flächen
- Anzahl der Zimmer
- 8
- Anzahl der sep. WCs
- 4
- Nutzfläche
- 265m²
Kosten
- Gesamtmiete Brutto
- € 5.159,33
- Kaution
- € 31.000,00
- Miete
- € 3.445,91
- Betriebskosten
- € 853,53
- Umsatzsteuer
- € 859,89
Verwaltung
- Verfügbar ab
- sofort
- Mietdauer
- bis 10,0 Jahre
Büros zum Mieten in Österreich
- Bezirk Gemeindebezirk Leopoldstadt
- Bezirk Gemeindebezirk Leopoldstadt
- Bezirk Gemeindebezirk Leopoldstadt
- Bezirk Gemeindebezirk Landstrasse
- Bezirk Gemeindebezirk Landstrasse
- Bezirk Gemeindebezirk Landstrasse
- Bezirk Gemeindebezirk Innere Stadt
- Bezirk Gemeindebezirk Innere Stadt
- Bezirk Gemeindebezirk Innere Stadt
- Bezirk Gemeindebezirk Wieden
Büros zum Mieten in Österreich
Büros zum Mieten in Österreich
Andere Besucher suchen nach...
- Grundstücke kaufen in 3400 Weidlingbach
- Wohnungen kaufen in 4663 Laakirchen
- Häuser in 7471 Rechnitz
- Wohnungen in 2410 Hainburg an der Donau
- Häuser kaufen in 2432 Schwadorf
- Wohnungen kaufen in 3002 Purkersdorf
- Häuser in 3150 Wilhelmsburg
- Wohnungen kaufen in 3470 Engelmannsbrunn
- Grundstücke kaufen im Bezirk Mattersburg
- Grundstücke kaufen im Bezirk Gmunden