Ordination/Geschäftslokal oder Büro mit Souterrain in TOP FREQUENZLAGE!
Beschreibung
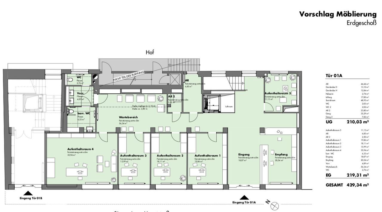
Diese vielseitig nutzbare Geschäftsfläche mit Lagermöglichkeit befindet sich in absoluter Toplage direkt in der Simmeringer Hauptstraße, unmittelbar der U3-Stadion Enkplatz.
Die Nutzflächen dieser Gewerbefläche sind wie folgt auf nachstehenden Etagen aufgeteilt: Erdgeschoß/Geschäftsfläche - 223,10 qm Untergeschoß - 210,40 qm
Weiters verfügt das Objekt über eine Schaufensterfront mit einer Länge von ca. 23 m, welche direkt an die Simmeringer Hauptstraße ausgerichtet ist. Somit bietet sich eine optimale Präsentation- und Werbefläche für Ihre Produkte.
Im Untergeschoß befindet sich auch ein ehemaliger Banktresor mit Schließfächern, welcher individuell ausbaubar ist.
Hofseitig verfügt das Objekt über 3 Kundenparkplätze.
Das Mietverhältnis wird auf unbestimmte Zeit abgeschlossen.
...Diese vielseitig nutzbare Geschäftsfläche mit Lagermöglichkeit befindet sich in absoluter Toplage direkt in der Simmeringer Hauptstraße, unmittelbar der U3-Stadion Enkplatz.
Die Nutzflächen dieser Gewerbefläche sind wie folgt auf nachstehenden Etagen aufgeteilt:
Erdgeschoß/Geschäftsfläche - 223,10 qm
Untergeschoß - 210,40 qm
Weiters verfügt das Objekt über eine Schaufensterfront mit einer Länge von ca. 23 m, welche direkt an die Simmeringer Hauptstraße ausgerichtet ist. Somit bietet sich eine optimale Präsentation- und Werbefläche für Ihre Produkte.
Im Untergeschoß befindet sich auch ein ehemaliger Banktresor mit Schließfächern, welcher individuell ausbaubar ist.
Hofseitig verfügt das Objekt über 3 Kundenparkplätze.
Das Mietverhältnis wird auf unbestimmte Zeit abgeschlossen.
Die Kosten für Strom, Heizung und Warmwasser sind im Mietpreis nicht inkludiert und deshalb direkt mit dem jeweiligen Energielieferanten zu verrechnen.
Kostenaufstellung:
Miete: 5.195,18 €
Betriebskosten: 1.654,59 €
Umsatzsteuer: 1.369,96 €
Gesamt: 8.219,73 €
Kaution: 49.300,- € (verhandelbar)
Provision: 3 Bruttomonatsmieten
Wenn Sie Fragen haben oder einen Besichtigungstermin wünschen, bin ich jederzeit gerne telefonisch unter +43 664 5215724 oder per Mail unter Olivia.grabenschweiger@gmx.at zu erreichen.
Der Energieausweis wird gerne auf Anfrage nachgereicht.
Hinweis gemäß Energieausweisvorlagegesetz: Ein Energieausweis wurde vom Eigentümer bzw. Verkäufer, nach unserer Aufklärung über die generell geltende Vorlagepflicht, sowie Aufforderung zu seiner Erstellung noch nicht vorgelegt. Daher gilt zumindest eine dem Alter und der Art des Gebäudes entsprechende Gesamtenergieeffizienz als vereinbart. Wir übernehmen keinerlei Gewähr oder Haftung für die tatsächliche Energieeffizienz der angebotenen Immobilie.
Wir weisen darauf hin, dass zwischen dem Vermittler und dem zu vermittelnden Dritten ein familiäres oder wirtschaftliches Naheverhältnis besteht.
Der Vermittler ist als Doppelmakler tätig.
Infrastruktur / Entfernungen
Gesundheit
Arzt <250m
Apotheke <250m
Klinik <1.000m
Krankenhaus <2.500m
Kinder & Schulen
Schule <250m
Kindergarten <250m
Universität <1.500m
Höhere Schule <1.500m
Nahversorgung
Supermarkt <250m
Bäckerei <250m
Einkaufszentrum <500m
Sonstige
Geldautomat <250m
Bank <250m
Post <250m
Polizei <250m
Verkehr
Bus <250m
U-Bahn <250m
Straßenbahn <250m
Bahnhof <250m
Autobahnanschluss <1.000m
Angaben Entfernung Luftlinie / Quelle: OpenStreetMap
Objektdaten
Ausstattung
- Klimatisiert
- Barrierefrei
- Seniorengerecht
- Zentralheizung
- Fern Befeuerung
- Personen Fahrstuhl
Flächen
- Nutzfläche
- 433m²
Kosten
- Gesamtmiete Brutto
- € 8.219,73
- Miete
- € 5.195,18
- Betriebskosten
- € 1.654,59
- Umsatzsteuer
- € 1.369,96
Büros zum Mieten in Österreich
- Bezirk Gemeindebezirk Simmering
- Bezirk Gemeindebezirk Simmering
- Bezirk Gemeindebezirk Simmering
- Bezirk Gemeindebezirk Favoriten
- Bezirk Gemeindebezirk Favoriten
- Bezirk Gemeindebezirk Favoriten
- Bezirk Gemeindebezirk Landstrasse
- Bezirk Gemeindebezirk Landstrasse
- Bezirk Gemeindebezirk Landstrasse
- Bezirk Gemeindebezirk Wieden
Büros zum Mieten in Österreich
Büros zum Mieten in Österreich
Andere Besucher suchen nach...
- Grundstücke kaufen in 3400 Weidlingbach
- Wohnungen kaufen in 4663 Laakirchen
- Häuser in 7471 Rechnitz
- Wohnungen in 2410 Hainburg an der Donau
- Häuser kaufen in 2432 Schwadorf
- Wohnungen kaufen in 3002 Purkersdorf
- Häuser in 3150 Wilhelmsburg
- Wohnungen kaufen in 3470 Engelmannsbrunn
- Grundstücke kaufen im Bezirk Mattersburg
- Grundstücke kaufen im Bezirk Gmunden