360° TOUR // HIETZINGER ALTBAU-VILLA
Beschreibung
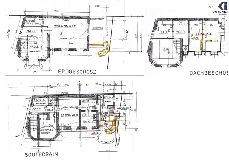
HIETZINGER ALTBAU-VILLA Die Stilvilla (ca. BJ 1915) in zentraler Lage von Hietzing, mit ca. 170m² Wohnfläche und 240m² Gartenfläche gliedert sich wie folgt: Raumaufteilung: Erdgeschoß: Entree und große Halle (ca. 29m²), Wohnzimmer (ca. 42m²) mit Ausgang auf die Terrasse und in den Garten; Untergeschoß: Gang, Eßzimmer (ca. 24m²), Vorraum & Küche (zusammen ca. 18m²), Speis, WC, Wirtschafts-/ Abstellraum, ein weiteres großes Schlafzimmer (ca. 15m²) mit Ausgang auf eine Terrasse in den Garten, Badezimmer, WC; Dachgeschoß:
Vorraum, Schlafzimmer (ca. 19m²), Badezimmer (ca. 6,50m²), begehbare Garderobe (ca. 10m²).
Ausstattung: • Teppichboden • gesamte Hauselektrik modernisiert • Gas-Zentralheizung Geschäfte des täglichen Bedarfs...
HIETZINGER ALTBAU-VILLA
Die Stilvilla (ca. BJ 1915) in zentraler Lage von Hietzing, mit ca. 170m² Wohnfläche und 240m² Gartenfläche gliedert sich wie folgt:
Raumaufteilung:
Erdgeschoß:
Entree und große Halle (ca. 29m²), Wohnzimmer (ca. 42m²) mit Ausgang auf die Terrasse und in den Garten;
Untergeschoß:
Gang, Eßzimmer (ca. 24m²), Vorraum & Küche (zusammen ca. 18m²), Speis, WC, Wirtschafts-/ Abstellraum,
ein weiteres großes Schlafzimmer (ca. 15m²) mit Ausgang auf eine Terrasse in den Garten, Badezimmer, WC;
Dachgeschoß:
Vorraum, Schlafzimmer (ca. 19m²), Badezimmer (ca. 6,50m²), begehbare Garderobe (ca. 10m²).
Ausstattung:
• Teppichboden
• gesamte Hauselektrik modernisiert
• Gas-Zentralheizung
Geschäfte des täglichen Bedarfs und die U-Bahnlinie (U4) sind fußläufig erreichbar.
Ein Energieausweis wurde vom Eigentümer angefordert und wird nachgereicht.
360° Tour:
https://360.kalandra.at/view/portal/id/VZZ7F
Infrastruktur / Entfernungen
Gesundheit
Arzt <500m
Apotheke <1.000m
Klinik <1.000m
Krankenhaus <2.000m
Kinder & Schulen
Schule <1.000m
Kindergarten <1.000m
Universität <2.000m
Höhere Schule <3.000m
Nahversorgung
Supermarkt <1.000m
Bäckerei <500m
Einkaufszentrum <2.500m
Sonstige
Geldautomat <1.000m
Bank <1.000m
Post <1.000m
Polizei <1.000m
Verkehr
Bus <500m
U-Bahn <1.000m
Straßenbahn <1.000m
Bahnhof <1.000m
Autobahnanschluss <3.000m
Angaben Entfernung Luftlinie / Quelle: OpenStreetMap
Objektdaten
Ausstattung
- Etage Heizung
- Befeuerung mit Gas
Dokumente / Links
Zustand
- Zustand
- NEUWERTIG
- Baujahr
- 1915
Flächen
- Anzahl der Zimmer
- 5
- Anzahl der Badezimmer
- 2
- Anzahl der sep. WCs
- 3
- Anzahl der Terrassen
- 2
- Wohnfläche
- 170m²
- Grundstücksfläche
- 337m²
- Terrassenfläche
- 2m²
Kosten
- Gesamtmiete Brutto
- € 4.950,00
- Miete
- € 4.000,00
- Betriebskosten
- € 500,00
- Umsatzsteuer
- € 450,00
Büros zum Mieten in Österreich
- Bezirk Gemeindebezirk Hietzing
- Bezirk Gemeindebezirk Hietzing
- Bezirk Gemeindebezirk Hietzing
- Bezirk Gemeindebezirk Penzing
- Bezirk Gemeindebezirk Penzing
- Bezirk Gemeindebezirk Penzing
- Bezirk Gemeindebezirk Meidling
- Bezirk Gemeindebezirk Meidling
- Bezirk Gemeindebezirk Meidling
- Bezirk Gemeindebezirk Rudolfsheim-Fünfhaus
Büros zum Mieten in Österreich
Büros zum Mieten in Österreich
Andere Besucher suchen nach...
- Grundstücke kaufen in 3400 Weidlingbach
- Wohnungen kaufen in 4663 Laakirchen
- Häuser in 7471 Rechnitz
- Wohnungen in 2410 Hainburg an der Donau
- Häuser kaufen in 2432 Schwadorf
- Wohnungen kaufen in 3002 Purkersdorf
- Häuser in 3150 Wilhelmsburg
- Wohnungen kaufen in 3470 Engelmannsbrunn
- Grundstücke kaufen im Bezirk Mattersburg
- Grundstücke kaufen im Bezirk Gmunden