Arbeiten in außergewöhnlichem Ambiente
Beschreibung
In einem außergewöhnlichen, historischen Ambiente, umgeben von einem ca. 2000m² großen, liebevoll angelegten Park, befindet sich dieses großzügige Büro.
Über das elegante Entrèe mit dem prächtigen Stiegenaufgang gelangt man in den 1. Stock in dem sich diese helle und lichtdurchflutete Büroräumlichkeiten mit einer Nutzfläche von ca. 75m² befinden, die in den Innenhof zeigen und absolut ruhig gelegen sind.
Über den Eingang kommt man in den ersten Büroteil, der mit praktischen Schrankwänden ausgestattet ist und drei Stufen führen in den unteren Bereich, der Platz für Schreibtische bietet und weiter führend in einen ca. 31m² großen Büroraum.
Die sanitären Anlagen sind auf...
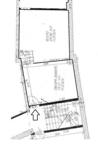
In einem außergewöhnlichen, historischen Ambiente, umgeben von einem ca. 2000m² großen, liebevoll angelegten Park, befindet sich dieses großzügige Büro.
Über das elegante Entrèe mit dem prächtigen Stiegenaufgang gelangt man in den 1. Stock in dem sich diese helle und lichtdurchflutete Büroräumlichkeiten mit einer Nutzfläche von ca. 75m² befinden, die in den Innenhof zeigen und absolut ruhig gelegen sind.
Über den Eingang kommt man in den ersten Büroteil, der mit praktischen Schrankwänden ausgestattet ist und drei Stufen führen in den unteren Bereich, der Platz für Schreibtische bietet und weiter führend in einen ca. 31m² großen Büroraum.
Die sanitären Anlagen sind auf dieser Ebene vorhanden und entsprechen dem modernen Zeitgeist, eine Teeküche steht ebenfalls zur Verfügung.
Die Räumlichkeit ist selbstverständlich auf dem neuesten, technischen Stand.
Die Beheizung erfolgt über Elektrokörper und wird separat nach Verbrauch verrechnet, sowie die Stromkosten.
Die öffentliche Verkehrsanbindung ist ausgezeichnet, in wenigen Gehminuten ist die Schnellbahnstation Weidlingau erreichbar, die Buslinien 50A und 447 sind vor der Türe vorzufinden. Das Auhofcenter ist auch zu Fuß in Kürze erreichbar.
Ausreichend Parkplätze stehen zur Verfügung!
Miete (netto): 962,00 EUR
Betriebskosten (netto): 253,08
Umsatzsteuer (gesamt): 243,12 EUR
Gesamtmiete: 1.458,10 EUR
Kaution: 4.375,00 EUR
FA-Vergebührung: 1.749,72 EUR
Provision: 4.375,00 EUR inkl. 20% USt.
Objektdaten
Ausstattung
- Teilmöbliert
- Kabel/SAT-TV
- DV Verkabelung
- Gäste-WC
- Fliesenboden
- Teppichboden
- Elektrische Befeuerung
Zustand
- Zustand
- NEUWERTIG
- Baujahr
- 1800
- Alter
- ALTBAU
- HWB
- 82.86 kWh/m² pro Jahr
- Klasse HWB
- C
- fGEE
- 1.22
- Klasse fGEE
- C
Flächen
- Anzahl der Zimmer
- 2
- Anzahl der sep. WCs
- 2
- Nutzfläche
- 75m²
- Bürofläche
- 75m²
Kosten
- Kaution
- € 3.645,24
- Miete
- € 962,00
- Betriebskosten
- € 253,08
Verwaltung
- Mietdauer
- bis 10,0 Jahre
Büros zum Mieten in Österreich
- Bezirk Gemeindebezirk Penzing
- Bezirk Gemeindebezirk Penzing
- Bezirk Gemeindebezirk Penzing
- Bezirk Gemeindebezirk Hietzing
- Bezirk Gemeindebezirk Hietzing
- Bezirk Gemeindebezirk Hietzing
- Bezirk Gemeindebezirk Rudolfsheim-Fünfhaus
- Bezirk Gemeindebezirk Rudolfsheim-Fünfhaus
- Bezirk Gemeindebezirk Rudolfsheim-Fünfhaus
- Bezirk Gemeindebezirk Döbling
Büros zum Mieten in Österreich
Büros zum Mieten in Österreich
Andere Besucher suchen nach...
- Grundstücke kaufen in 3400 Weidlingbach
- Wohnungen kaufen in 4663 Laakirchen
- Häuser in 7471 Rechnitz
- Wohnungen in 2410 Hainburg an der Donau
- Häuser kaufen in 2432 Schwadorf
- Wohnungen kaufen in 3002 Purkersdorf
- Häuser in 3150 Wilhelmsburg
- Wohnungen kaufen in 3470 Engelmannsbrunn
- Grundstücke kaufen im Bezirk Mattersburg
- Grundstücke kaufen im Bezirk Gmunden