360° TOUR // BÜRO / PRAXIS / STUDIO in GERSTHOFER RUHELAGE
€ 1.560 / Monat
€ 15 / m²
1180 Wien
-
sofort
Beschreibung
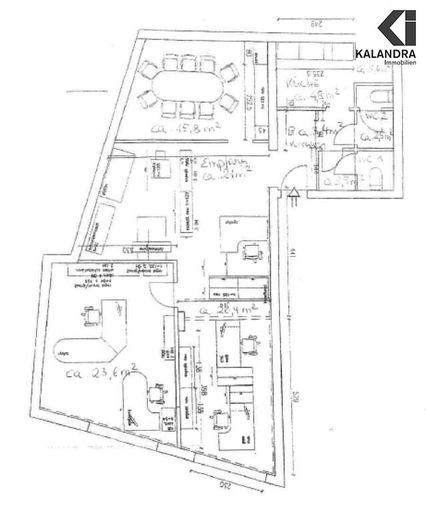
BÜROLOKAL - PRAXIS - STUDIO in GERSTHOF Diese gewerblich nutzbare Einheit mit ca. 105m² Nutzfläche befindet sich im Erdgeschoß eines gepflegten Neubaugebäudes (BJ. 1986) und bietet folgende Raumaufteilung: Eingang über das Stiegenhaus, Empfang/ Wartezimmer, 2 straßenseitige Räume, innenliegender Besprechungs-/ Raum durch 2 Lichtkuppeln tagesbelichtet, Küche mit Eßecke, WC mit Waschtisch, ein Duschbad. Ausstattung: - in den Büroräumen durchgehend Parkettboden - Sanitärräume weiß verfliest - Küche teilweise möbliert - Beleuchtungskörper & Jalousien, - Gas-Etagenheizung Ein Garagenplatz im Haus kann bei Bedarf und Verfügbarkeit um € 120,- + 20% USt. angemietet werden. Mietkonditionen: befristete Mietdauer: 5 - 10 Jahre Kündigungsverzicht: 2 Jahre...
BÜROLOKAL - PRAXIS - STUDIO in GERSTHOF
Diese gewerblich nutzbare Einheit mit ca. 105m² Nutzfläche befindet sich im Erdgeschoß eines gepflegten Neubaugebäudes (BJ. 1986) und bietet folgende
Raumaufteilung:
Eingang über das Stiegenhaus, Empfang/ Wartezimmer, 2 straßenseitige Räume, innenliegender Besprechungs-/ Raum durch 2 Lichtkuppeln tagesbelichtet, Küche mit Eßecke, WC mit Waschtisch, ein Duschbad.
Ausstattung:
- in den Büroräumen durchgehend Parkettboden
- Sanitärräume weiß verfliest
- Küche teilweise möbliert
- Beleuchtungskörper & Jalousien,
- Gas-Etagenheizung
Ein Garagenplatz im Haus kann bei Bedarf und Verfügbarkeit um € 120,- + 20% USt. angemietet werden.
Mietkonditionen:
befristete Mietdauer: 5 - 10 Jahre
Kündigungsverzicht: 2 Jahre (mieterseitig)
Kautionsbetrag: € 5.000,00 (Bankgarantie möglich)
360° Tour:
https://360.kalandra.at/view/portal/id/VV601
Diese gewerblich nutzbare Einheit mit ca. 105m² Nutzfläche befindet sich im Erdgeschoß eines gepflegten Neubaugebäudes (BJ. 1986) und bietet folgende
Raumaufteilung:
Eingang über das Stiegenhaus, Empfang/ Wartezimmer, 2 straßenseitige Räume, innenliegender Besprechungs-/ Raum durch 2 Lichtkuppeln tagesbelichtet, Küche mit Eßecke, WC mit Waschtisch, ein Duschbad.
Ausstattung:
- in den Büroräumen durchgehend Parkettboden
- Sanitärräume weiß verfliest
- Küche teilweise möbliert
- Beleuchtungskörper & Jalousien,
- Gas-Etagenheizung
Ein Garagenplatz im Haus kann bei Bedarf und Verfügbarkeit um € 120,- + 20% USt. angemietet werden.
Mietkonditionen:
befristete Mietdauer: 5 - 10 Jahre
Kündigungsverzicht: 2 Jahre (mieterseitig)
Kautionsbetrag: € 5.000,00 (Bankgarantie möglich)
360° Tour:
https://360.kalandra.at/view/portal/id/VV601
Infrastruktur / Entfernungen
Gesundheit
Arzt <500m
Apotheke <500m
Klinik <500m
Krankenhaus <1.500m
Kinder & Schulen
Schule <500m
Kindergarten <500m
Universität <1.500m
Höhere Schule <1.000m
Nahversorgung
Supermarkt <500m
Bäckerei <500m
Einkaufszentrum <2.000m
Sonstige
Geldautomat <1.000m
Bank <1.000m
Post <1.000m
Polizei <1.000m
Verkehr
Bus <500m
U-Bahn <1.500m
Straßenbahn <500m
Bahnhof <1.000m
Autobahnanschluss <3.500m
Angaben Entfernung Luftlinie / Quelle: OpenStreetMap
Objektdaten
Ausstattung
- Etage Heizung
- Befeuerung mit Gas
- Personen Fahrstuhl
Dokumente / Links
Zustand
- Zustand
- GEPFLEGT
- Baujahr
- 1986
Flächen
- Anzahl der Zimmer
- 3
- Anzahl der sep. WCs
- 1
- Nutzfläche
- 105m²
Kosten
- Gesamtmiete Brutto
- € 1.560,00
- Kaution
- € 5.000,00
- Miete
- € 1.100,00
- Betriebskosten
- € 200,00
- Umsatzsteuer
- € 260,00
Verwaltung
- Verfügbar ab
- sofort
- Mietdauer
- bis 10,0 Jahre
Büros zum Mieten in Österreich
- Bezirk Gemeindebezirk Döbling
- Bezirk Gemeindebezirk Döbling
- Bezirk Gemeindebezirk Döbling
- Bezirk Gemeindebezirk Alsergrund
- Bezirk Gemeindebezirk Alsergrund
- Bezirk Gemeindebezirk Alsergrund
- Bezirk Gemeindebezirk Brigittenau
- Bezirk Gemeindebezirk Brigittenau
- Bezirk Gemeindebezirk Brigittenau
- Bezirk Gemeindebezirk Penzing
Büros zum Mieten in Österreich
Büros zum Mieten in Österreich
Andere Besucher suchen nach...
- Grundstücke kaufen in 3400 Weidlingbach
- Wohnungen kaufen in 4663 Laakirchen
- Häuser in 7471 Rechnitz
- Wohnungen in 2410 Hainburg an der Donau
- Häuser kaufen in 2432 Schwadorf
- Wohnungen kaufen in 3002 Purkersdorf
- Häuser in 3150 Wilhelmsburg
- Wohnungen kaufen in 3470 Engelmannsbrunn
- Grundstücke kaufen im Bezirk Mattersburg
- Grundstücke kaufen im Bezirk Gmunden