Büro- und Geschäftsfläche ++ Nähe U1 ++ ERSTBEZUG!!
€ 4.098 / Monat
€ 27 / m²
1220 Wien
-
Erstbezug
-
2025
-
sofort
Beschreibung
BRANDNEUE BÜRO- UND GESCHÄFTSFLÄCHE ++ ERSTBEZUG Zur Miete wird diese neu errichtete Gewerbefläche in der Donau-City angeboten. Die Liegenschaft befindet sich im Erdgeschoß und hat einen eigenen Straßenzugang. Fußbodenheizung und Deckenkühlung sorgen ganzjährig für ein optimales Raumklima. Beste öffentliche Verkehrsanbindung ist durch die U1 Station Kaisermühlen/Vienna International Center in unmittelbarer Nähe gegeben. HIGHLIGHTS UND AUSSTATTUNGSMERKMALE • ERSTBEZUG • Flexible Raumaufteilung • Deckenkühlung • DV Verkabelung • Damen und Herren WC • Flexible Raumaufteilung in Absprache mit dem künftigen Mieter • Tiefgarage sowohl für Dauer- als auch für Kurzparker (je nach Verfügbarkeit anmietbar) • barrierefreie Zugänge • attraktive Gastronomie- und Nahversorgung...
BRANDNEUE BÜRO- UND GESCHÄFTSFLÄCHE ++ ERSTBEZUG
Zur Miete wird diese neu errichtete Gewerbefläche in der Donau-City angeboten.
Die Liegenschaft befindet sich im Erdgeschoß und hat einen eigenen Straßenzugang.
Fußbodenheizung und Deckenkühlung sorgen ganzjährig für ein optimales Raumklima.
Beste öffentliche Verkehrsanbindung ist durch die U1 Station Kaisermühlen/Vienna International Center in unmittelbarer Nähe gegeben.
HIGHLIGHTS UND AUSSTATTUNGSMERKMALE
• ERSTBEZUG
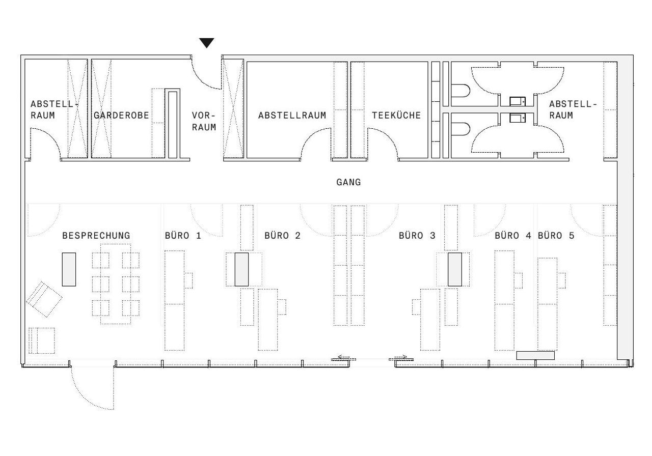
• Flexible Raumaufteilung
• Deckenkühlung
• DV Verkabelung
• Damen und Herren WC
• Flexible Raumaufteilung in Absprache mit dem künftigen Mieter
• Tiefgarage sowohl für Dauer- als auch für Kurzparker (je nach Verfügbarkeit anmietbar)
• barrierefreie Zugänge
• attraktive Gastronomie- und Nahversorgung
• unmittelbare U1 Nähe
SEHR GUTE ÖFFENTLICHE VERKEHRSANBINDUNG
• U-Bahn: U1 Kaisermühlen/ Vienna International Center
• Autobus: 90A, 91A, 92A, 20B
ERSTZAHLUNG UND KONDITIONEN
• Kaution: 6 BMM
• Provision: 3 BMM
• Vergebührung für das Finanzamt
• erste Monatsmiete
• Befristung 10J
• Kündigungsverzicht: 3 J
• Kündigungsfrist 6 M
• Akonto Heizung € 1,51/m² im Monat
• Akonto Kühlung € 0,17/m² im Monat
Gerne beantworte ich Ihre Fragen und freue mich über Ihre Kontaktaufnahme!
KONTAKT
Robert Fried
robert.fried@hubner-immobilien.com, +43 664 88 296 010
____
Zur Miete wird diese neu errichtete Gewerbefläche in der Donau-City angeboten.
Die Liegenschaft befindet sich im Erdgeschoß und hat einen eigenen Straßenzugang.
Fußbodenheizung und Deckenkühlung sorgen ganzjährig für ein optimales Raumklima.
Beste öffentliche Verkehrsanbindung ist durch die U1 Station Kaisermühlen/Vienna International Center in unmittelbarer Nähe gegeben.
HIGHLIGHTS UND AUSSTATTUNGSMERKMALE
• ERSTBEZUG
• Flexible Raumaufteilung
• Deckenkühlung
• DV Verkabelung
• Damen und Herren WC
• Flexible Raumaufteilung in Absprache mit dem künftigen Mieter
• Tiefgarage sowohl für Dauer- als auch für Kurzparker (je nach Verfügbarkeit anmietbar)
• barrierefreie Zugänge
• attraktive Gastronomie- und Nahversorgung
• unmittelbare U1 Nähe
SEHR GUTE ÖFFENTLICHE VERKEHRSANBINDUNG
• U-Bahn: U1 Kaisermühlen/ Vienna International Center
• Autobus: 90A, 91A, 92A, 20B
ERSTZAHLUNG UND KONDITIONEN
• Kaution: 6 BMM
• Provision: 3 BMM
• Vergebührung für das Finanzamt
• erste Monatsmiete
• Befristung 10J
• Kündigungsverzicht: 3 J
• Kündigungsfrist 6 M
• Akonto Heizung € 1,51/m² im Monat
• Akonto Kühlung € 0,17/m² im Monat
Gerne beantworte ich Ihre Fragen und freue mich über Ihre Kontaktaufnahme!
KONTAKT
Robert Fried
robert.fried@hubner-immobilien.com, +43 664 88 296 010
____
| Angaben gemäß gesetzlichem Erfordernis: | |||
| Miete | € | 2972 | zzgl 20% USt. |
| Betriebskosten | € | 442,82 | zzgl 20% USt. |
| Umsatzsteuer | € | 682,96 | |
| ------------------------------------------------------------------ | |||
| Gesamtbetrag | € | 4097,78 | |
| ------------------------------------------------------------------ | |||
| Heizwärmebedarf: | 67.7 kWh/(m²a) | ||
| Klasse Heizwärmebedarf: | C | ||
| Faktor Gesamtenergieeffizienz: | 1.52 | ||
| Klasse Faktor Gesamtenergieeffizienz: | C | ||
Objektdaten
Ausstattung
- Klimatisiert
- Zentralheizung
- Personen Fahrstuhl
- Bus
- Heizung/Klimaanlage
- Küche Möbliert
- Sonstiges
- U-Bahn
Dokumente / Links
Zustand
- Zustand
- ERSTBEZUG
- Baujahr
- 2025
- Alter
- NEUBAU
Flächen
- Anzahl der sep. WCs
- 2
- Nutzfläche
- 150m²
- Bürofläche
- 150m²
Kosten
- Kaltmiete
- € 4.097,78
- Nebenkosten
- € 531,38
- Kaution
- € 6.400,00
- Betriebskosten Brutto
- € 531,38
Verwaltung
- Verfügbar ab
- sofort
- Mietdauer
- bis 10,0 Jahre
Büros zum Mieten in Österreich
Büros zum Mieten in Österreich
Büros zum Mieten in Österreich
Andere Besucher suchen nach...
- Grundstücke kaufen in 3400 Weidlingbach
- Wohnungen kaufen in 4663 Laakirchen
- Häuser in 7471 Rechnitz
- Wohnungen in 2410 Hainburg an der Donau
- Häuser kaufen in 2432 Schwadorf
- Wohnungen kaufen in 3002 Purkersdorf
- Häuser in 3150 Wilhelmsburg
- Wohnungen kaufen in 3470 Engelmannsbrunn
- Grundstücke kaufen im Bezirk Mattersburg
- Grundstücke kaufen im Bezirk Gmunden