+ + + TECH GATE VIENNA - Bauteil GATE - Büros in der DONAU CITY + + +
Beschreibung
Objekt und Lage:
Das TECH GATE VIENNA ist eines der ersten Gebäude in der Donau-City und besteht aus dem Bauteil GATE und dem später errichteten Bauteil TOWER.
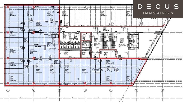
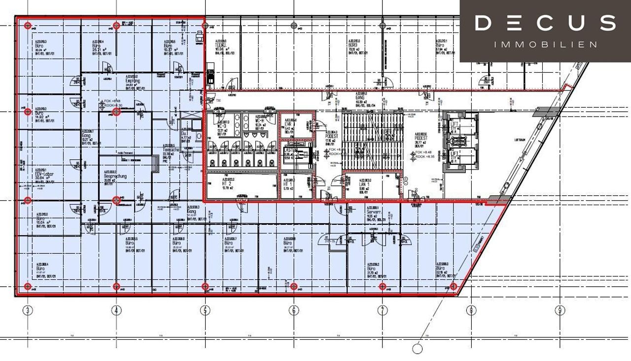
Das GATE (Flachbau) verfügt über eine gesamte Bürofläche von ca. 15.000 m² und wurde mit 7 Geschoßen errichtet.
Die kleinste Büroeinheit ist ca. 30 m² groß und ein Regelgeschoß bietet eine Fläche von bis zu ca. 2.400 m².
Der TOWER bietet eine Bürofläche von ca. 12.000 m² und hat 19 Stockwerke.
Die Flächengrößen reichen hier von ca. 30 m² bis ca. 700 m² im Regelgeschoß.
...
Objekt und Lage:
Das TECH GATE VIENNA ist eines der ersten Gebäude in der Donau-City und besteht aus dem Bauteil GATE und dem später errichteten Bauteil TOWER.
Das GATE (Flachbau) verfügt über eine gesamte Bürofläche von ca. 15.000 m² und wurde mit 7 Geschoßen errichtet.
Die kleinste Büroeinheit ist ca. 30 m² groß und ein Regelgeschoß bietet eine Fläche von bis zu ca. 2.400 m².
Der TOWER bietet eine Bürofläche von ca. 12.000 m² und hat 19 Stockwerke.
Die Flächengrößen reichen hier von ca. 30 m² bis ca. 700 m² im Regelgeschoß.
Die Betriebskosten in Höhe von € 6,50/m²/Monat/netto (inkl. Heizung, exkl. Strom in Höhe von ca. € 1,10/m²/Monat/netto) sind als zirka Angaben zu verstehen.
aktuell verfügbare Einheiten im Flachbau (Tech Gate Vienna):
Gate 1 | 2.OG ca. 552 m² (verfügbar ab sofort)
LED-Beleuchtung und neue FanCoils sind vorhanden. Im 2. Obergeschoss befanden sich bisher Schulungsräume. Die zugehörigen Nassräume befinden sich in den Allgemeinflächen des Gebäudes.
Gate 3 | 2.OG ca. 572 m² (verfügbar ab sofort)
Die Sanitärräumlichkeiten befinden sich in den Allgemeinteilen. Sie zählen damit nicht zur Mietfläche. Die Reinigung und Bestückung sind in den Betriebskosten des Hauses inkludiert. Die Bürofläche ist die einzige Mietfläche im Stockwerk, man kann damit von einer Alleinbenutzung ausgehen. Die Mietfläche hat eine vollausgestattete Küche und verfügt über LED-Beleuchtung.
FACTS TECH GATE VIENNA:
- Konferenzzentrum - Besprechungsräume im Gebäude
- SKY-Stage - repräsentative Veranstaltungsfläche im 19. OG des TOWERS - www.the-stage.at
- Lastenlift
- 24h-Portier
- Facility Management und Gebäudemanagement im Haus
- Tiefgarage im Haus (344 Stellplätze)
- Restaurant & Catering im EG des Gebäudes
- Barrierefreiheit im ganzen Haus
FACTS GATE:
- flexibel gestaltbare Büroflächen
- hohe Flächeneffizienz
- Kühlung mittels Fan-Coils
- offenbare Fenster
- Beleuchtungskonzept mittels LED
- individueller Sonnenschutz
- Personenlift
Hinweis: Innenfotos sind Beispielbilder
BESONDERHEIT IM GATE:
Die Flächen in diesem Bereich des Gebäudes sind sehr effizient nutzbar. Die zahlreich vorhandenen Sanitärräumlichkeiten müssen nicht angemietet werden und gehören zu den Allgemeinteilen, wodurch sich die Anzahl der anzumietenden Flächen reduziert. Die Reinigung und Bestückung der Toiletten ist in den Betriebskosten bereits enthalten.
Energieausweis liegt vor:
Heizwärmebedarf: 60kWh/m².a
Stellplätze:
Tiefgarage im Haus
Such-Stellplatz: € 136,00/Stellplatz/Monat/netto
Öffentliche E-Ladestationen sind vorhanden
Verkehrsanbindung:
Mit der U1-Station "VIC-Kaisermühlen" ist das Gebäude bestens an den öffentlichen Verkehr angebunden. Weiters gibt es hier eine Station der Autobuslinien 90A, 91A, 92A und 20B.
Auch an den individuellen Verkehr ist das Tech Gate Vienna bestens angebunden, da es direkt bei der Reichsbrücke liegt und sich die Anbindung an die A22 Donauuferautobahn in unmittelbarer Nähe befindet.
Alle Preisangaben verstehen sich zzgl. der gesetzl. Ust.
Alle Angaben ohne Gewähr, Irrtümer und Änderungen vorbehalten.
Wir weisen darauf hin, dass zwischen dem Vermittler und dem zu vermittelnden Dritten ein familiäres oder wirtschaftliches Naheverhältnis besteht.
Der Vermittler ist als Doppelmakler tätig.
DECUS Immobilien GmbH – Wir beleben Räume
Für weitere Informationen und Besichtigungen steht Ihnen gerne Frau Mag. (FH) Anita Kronaus-Buchegger unter der Mobilnummer +43 664 16 096 66 und per E-Mail unter kronaus@decus.at persönlich zur Verfügung.
www.decus.at | office@decus.at
Wichtige Informationen
Bitte beachten Sie, dass per 13.06.2014 eine neue Richtlinie für Fernabsatz- und Auswärtsgeschäfte in Kraft getreten ist.
Ab 1.4.2024 entfallen die Grundbuchs- und Pfandrechtseintragungsgebühren vorübergehend für Eigenheime bis zu einer Bemessungsgrundlage von EUR 500.000,-. Voraussetzung ist das dringende Wohnbedürfnis, ausgenommen davon sind vererbte oder geschenkte Immobilien. Die Befreiung ist jedoch für den Einzelfall zu prüfen, DECUS Immobilien übernimmt hierzu keine Haftung.
Ab 01.07.2023 gilt das Erstauftraggeber-Prinzip bei Wohnungsmietverträgen, ausgenommen davon sind Dienst-/Natural-/Werkswohnungen. Wir dürfen gem. § 17 Maklergesetz darauf hinweisen, dass wir auf die Doppelmaklertätigkeit gem. § 5 Maklergesetz bei Wohnungsmietverträgen verzichten und nur noch einseitig tätig sind (bei den restlichen Vermittlungsarten nicht) und ein wirtschaftliches Naheverhältnis zu unseren Auftraggebern besteht.
Im Falle eines Abschlusses mit Ihnen oder einem von Ihnen namhaft gemachten Dritten bzw. bei beidseitiger Willensübereinstimmung beträgt unser Honorar (lt. Honorarverordnung für Immobilienmakler) 2 Bruttomonatsmieten (BMM) bei Dienst-/Natural-/Werkwohnungen sowie Suchaufträgen, 3 BMM bei Gewerbe-, PKW-, Keller- und Lagermietverträgen sowie bei Kaufobjekten 3 % des Kaufpreises, zuzüglich der gesetzlichen Umsatzsteuer.
Dieses Objekt wird Ihnen unverbindlich und freibleibend angeboten. Oben angeführte Angaben basieren auf Informationen und Unterlagen des Eigentümers und sind unsererseits ohne Gewähr.
Nähere Informationen sowie unsere AGBs und die Nebenkostenübersichtsblatt finden Sie auf unserer Homepage www.decus.at unter "Service" - "Rechtliches zum FAGG" sowie im Anhang der zugesendeten Objekt-Exposés!
Infrastruktur / Entfernungen
Gesundheit
Arzt <500m
Apotheke <500m
Klinik <1.500m
Krankenhaus <2.500m
Kinder & Schulen
Schule <500m
Kindergarten <500m
Universität <2.000m
Höhere Schule <3.000m
Nahversorgung
Supermarkt <500m
Bäckerei <500m
Einkaufszentrum <2.000m
Sonstige
Geldautomat <500m
Bank <500m
Post <500m
Polizei <500m
Verkehr
Bus <500m
U-Bahn <500m
Straßenbahn <1.500m
Bahnhof <500m
Autobahnanschluss <500m
Angaben Entfernung Luftlinie / Quelle: OpenStreetMap
Objektdaten
Ausstattung
- Barrierefrei
Zustand
- Baujahr
- 2005
- Alter
- NEUBAU
- HWB
- 60 kWh/m² pro Jahr
- fGEE
- 1
Flächen
- Nutzfläche
- 552m²
Kosten
- Miete
- € 8.009,66
- Betriebskosten
- € 2.872,43
- Heizkosten
- € 718,11
Büros zum Mieten in Österreich
- Bezirk Gemeindebezirk Donaustadt
- Bezirk Gemeindebezirk Donaustadt
- Bezirk Gemeindebezirk Donaustadt
- Bezirk Gemeindebezirk Floridsdorf
- Bezirk Gemeindebezirk Floridsdorf
- Bezirk Gemeindebezirk Floridsdorf
- Bezirk Gemeindebezirk Leopoldstadt
- Bezirk Gemeindebezirk Leopoldstadt
- Bezirk Gemeindebezirk Leopoldstadt
- Bezirk Gemeindebezirk Landstrasse
Büros zum Mieten in Österreich
Büros zum Mieten in Österreich
Andere Besucher suchen nach...
- Grundstücke kaufen in 3400 Weidlingbach
- Wohnungen kaufen in 4663 Laakirchen
- Häuser in 7471 Rechnitz
- Wohnungen in 2410 Hainburg an der Donau
- Häuser kaufen in 2432 Schwadorf
- Wohnungen kaufen in 3002 Purkersdorf
- Häuser in 3150 Wilhelmsburg
- Wohnungen kaufen in 3470 Engelmannsbrunn
- Grundstücke kaufen im Bezirk Mattersburg
- Grundstücke kaufen im Bezirk Gmunden