Workbase - 100 m² Büro im EG
-
01.06.2026
Beschreibung
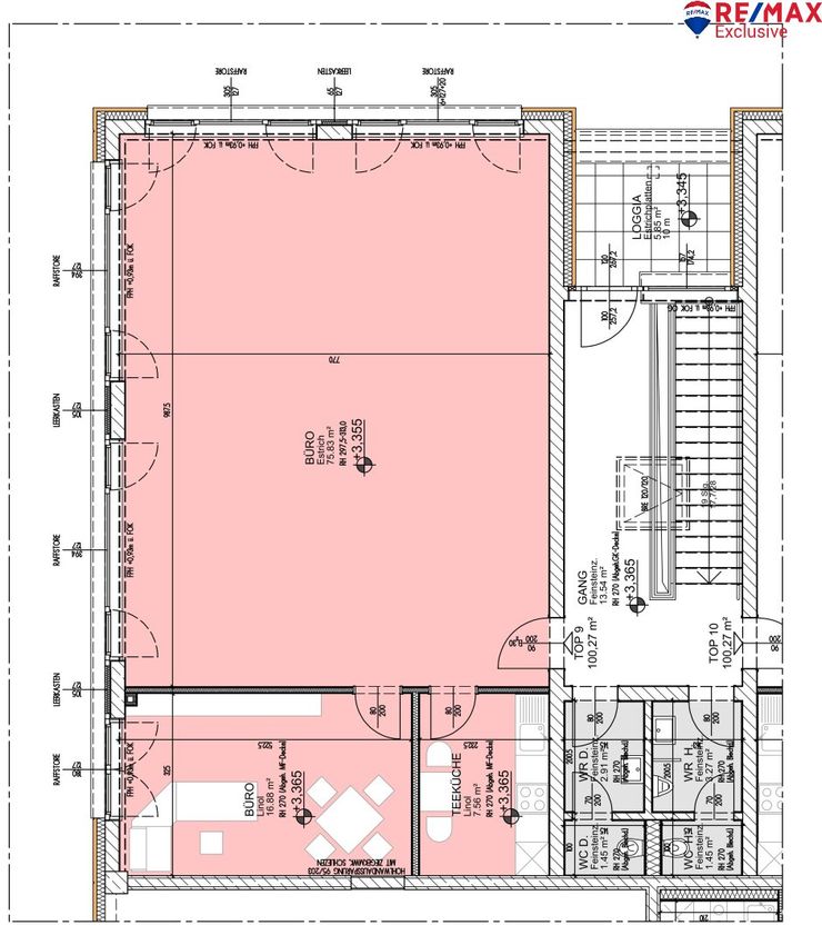
Workbase - 100 m² Büro im 1.OG
Zur Vermietung gelangt ein modernes, lichtdurchflutetes Büro im 2018 erbauten "workbase - der Wiirtschaftspark".
Das Objekt wird unmöbliert übergeben.
Das Büro im 1. OG verfügt über ca. 100 m² sowie einer Einbauküche.
Darüber hinaus wird geboten:
- LWL Anbindung direkt im Mietobjekt vorhanden
- umlaufende Kabelkanäle inkl. strukturierte IT Verkabelung und 19‘‘ Rack mit Patchfelder
- Klimatisierung: 3 Split- Klimageräte deckenintegriert
- Teppichboden im Hauptbüro
- Kleinküche voll ausgestattet inkl. Geschirrspüler, Kühlschrank, Backrohr & Weinkühlschrank
- Beschattung aller Fenster elektrisch
- LED Beleuchtung bildschirmarbeitsplatztauglich
- ein Parkplatz längsseits des Bürobereichs ist im Mietpreis enthalten ...
Workbase - 100 m² Büro im 1.OG
Zur Vermietung gelangt ein modernes, lichtdurchflutetes Büro im 2018 erbauten "workbase - der Wiirtschaftspark".
Das Objekt wird unmöbliert übergeben.
Das Büro im 1. OG verfügt über ca. 100 m² sowie einer Einbauküche.
Darüber hinaus wird geboten:
- LWL Anbindung direkt im Mietobjekt vorhanden
- umlaufende Kabelkanäle inkl. strukturierte IT Verkabelung und 19‘‘ Rack mit Patchfelder
- Klimatisierung: 3 Split- Klimageräte deckenintegriert
- Teppichboden im Hauptbüro
- Kleinküche voll ausgestattet inkl. Geschirrspüler, Kühlschrank, Backrohr & Weinkühlschrank
- Beschattung aller Fenster elektrisch
- LED Beleuchtung bildschirmarbeitsplatztauglich
- ein Parkplatz längsseits des Bürobereichs ist im Mietpreis enthalten
Die Nassgruppen sind grundsätzlich im Allgemeinbereich und werden mit dem danebenliegenden Top geteilt.
Gesamtmiete: € 1.836,92 inkl. BK, HK und USt.
Weitere Parkplätze können je nach Verfügbarkeit um netto € 40,-- zzgl. 20 % USt. je Parkplatz dazu gemietet werden.
Befristung: unbefristet
Kündigungsfrist: 6 Monate zum Quartalsende
Kündigungsverzicht: 3 Jahre
Kaution: 3 BMM
Provision: 3 BMM
Gewährleistung:
Die Verkäuferseite gewährleistet, dass der Vertragsgegenstand ihr unbeschränktes Eigentum und frei von Geldlasten, Bestandrechten und sonstigen Rechten Dritter ist.
Ansonsten wird jede Gewährleistung der Verkäuferseite ausgeschlossen und festgestellt, dass sich dieser Gewährleistungsausschluss sowohl auf bestimmte als auch auf gewöhnlich vorausgesetzte Eigenschaften des Vertragsgegenstandes wie beispielsweise Lage, Größe, Zustand, Abnützung, Widmung, Beschaffenheit, Ertrag und Verwendungsmöglichkeit bezieht.
Aufgrund der Nachweispflicht gegenüber dem Eigentümer ersuchen wir um Verständnis, dass nur Anfragen mit der Angabe der vollständigen Anschrift und Telefonnummer bearbeitet werden können.
Wir weisen auf Ihre 14-tägige Rücktrittsfrist (gemäß § 11 FAGG ) hin. Um Ihre Rechte zu wahren, können nur Anfragen mit vollständigen Kontaktdaten (Name, Adresse, Telefon, Email) beantwortet werden.
Vor Ablauf der 14-tägigen Rücktrittsfrist werden wir gerne für Sie tätig, wenn Sie gesetzeskonform (FAGG) uns ausdrücklich (am einfachsten per E-Mail) dazu auffordern.
Wenn der Kaufvertrag/der Mietvertrag nicht zustande kommt, bleibt unsere Tätigkeit für Sie vollkommen kostenlos.
Der Vermittler ist als Doppelmakler tätig.
Infrastruktur / Entfernungen
Gesundheit
Arzt <100m
Apotheke <625m
Klinik <650m
Krankenhaus <2.050m
Kinder & Schulen
Schule <450m
Kindergarten <450m
Höhere Schule <1.450m
Universität <4.450m
Nahversorgung
Supermarkt <475m
Bäckerei <1.275m
Einkaufszentrum <2.500m
Sonstige
Bank <625m
Geldautomat <1.250m
Post <1.275m
Polizei <325m
Verkehr
Bus <100m
Autobahnanschluss <1.550m
Bahnhof <1.275m
Flughafen <3.750m
Angaben Entfernung Luftlinie / Quelle: OpenStreetMap
Objektdaten
Ausstattung
- Teppichboden
- Kunststoffboden
- Massiv Bauweise
Dokumente / Links
Zustand
- Zustand
- GEPFLEGT
- Baujahr
- 2018
- Alter
- NEUBAU
- HWB
- 10.4 kWh/m² pro Jahr
- Klasse HWB
- C
- fGEE
- 0.66
Flächen
- Anzahl der Zimmer
- 2
- Stellplätze
- 1
- Nutzfläche
- 100m²
Kosten
- Gesamtmiete Brutto
- € 1.806,92
- Kaution
- € 5.511,00
- Miete
- € 1.314,77
- Betriebskosten
- € 191,00
- Heizkosten
- € 25,00
- Umsatzsteuer
- € 306,15
Verwaltung
- Verfügbar ab
- 01.06.2026
Büros zum Mieten in Österreich
Büros zum Mieten in Österreich
Andere Besucher suchen nach...
- Immobilien kaufen in 2601 Sollenau
- Immobilien in 4951 Polling im Innkreis, Oberösterreich
- Immobilien in 4742 Pram, Oberösterreich kaufen oder mieten
- Häuser kaufen in 2340 Mödling, Niederösterreich
- Häuser kaufen in 9421 Gemmersdorf, Kärnten
- Wohnungen / Eigentumswohnungen kaufen in 9431 St. Stefan, Kärnten
- Häuser kaufen in Bruck an der Leitha, Niederösterreich
- Immobilien mieten in Krems an der Donau, Niederösterreich
- Häuser zum Kaufen im Bezirk St. Pölten Land, Niederösterreich
- Büro / Praxen mieten in Rohrbach, Oberösterreich